|
|
|
| Larry Stein Oklahoma County Assessor (405) 713-1200 - Public Access System |
|
|
|
|
|
|
| Real Property Display - Screen Produced 4/4/2026 2:31:38 AM | ||||
|---|---|---|---|---|
| Account: R124071160 | Type: Residential | Location: |
2801 RED FERN RD |
|
| Building Name/Occupant: |
|
EDMOND |
||
| Owner Name 1: | POTTER LIV TRUST |
Parcel PIN#: |
4473-12-407-1160 |
|
| Owner Name 2: | 1/4 section #: |
4473 |
||
| Owner Name 3: | Parent Acct: |
|
||
| Billing Address: | 2801 RED FERN | Tax District: |
|
|
| City, State, Zip | EDMOND, OK 73034-6879 | School System: |
Edmond #12 |
|
|
Country: (If noted) |
Land Size: |
0.2233 Acres |
||
|
Land Value: 77,000 |
|
|||
|
Sect 19-T14N-R2W Qtr NE |
FAIRCLOUD HILLS TO EDMOND
Block
003
Lot
003
|
|||
| Full Legal Description: FAIRCLOUD HILLS TO EDMOND 003 003 |
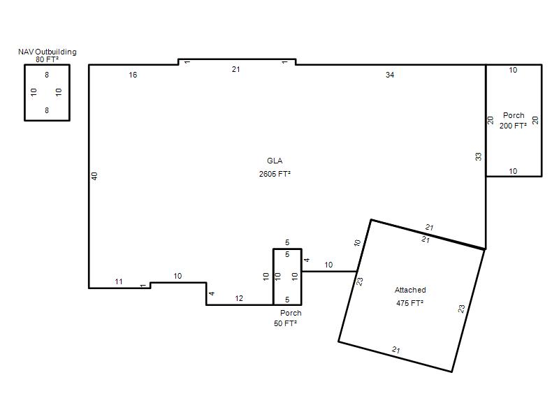
| Photo & Sketch (if available) | Comp Sales (ordered by relevancy) |
|
||||||||||||||||||
|
||||||||||||||||||||
| Value History (*The County Treasurer 405-713-1300 posts & collects actual tax amounts. Contact information HERE) | |||||||||||||
|---|---|---|---|---|---|---|---|---|---|---|---|---|---|
| Year | Market Value | Taxable Mkt Value | Gross Assessed | Exemption | Net Assessed | Millage | Est. Tax | Tax Savings | |||||
|
2026 |
378,000 |
306,626 |
33,728 |
1,000 |
32,728 |
105.16 |
$3,442 |
$931 |
|||||
|
2025 |
374,500 |
297,696 |
32,745 |
1,000 |
31,745 |
105.16 |
$3,338 |
$994 |
|||||
|
2024 |
365,500 |
289,026 |
31,791 |
1,000 |
30,791 |
105.03 |
$3,234 |
$989 |
|||||
|
2023 |
351,000 |
280,608 |
30,866 |
1,000 |
29,866 |
104.24 |
$3,113 |
$911 |
|||||
|
2022 |
297,500 |
272,435 |
29,967 |
1,000 |
28,967 |
104.64 |
$3,031 |
$393 |
|||||
| Property Account Status/Adjustments/Exemptions | ||
|---|---|---|
| Account # | Exemption Description | Amount |
|
R124071160 |
3% Cap Homestead |
0 |
|
R124071160 |
Homestead |
1,000 |
| Property Deed Transaction History (Recorded in the County Clerk's Office) | ||||||||||
|---|---|---|---|---|---|---|---|---|---|---|
| Date | Type | Book | Page | Price | Grantor | Grantee | ||||
|
9/29/2025 |
|
Deeds |
$0 |
POTTER SCOTT D & KARON K |
POTTER LIV TRUST |
|||||
|
5/24/2006 |
|
Deeds |
$50,000 |
JOHNSTON OTIS A & LYNDA C |
POTTER SCOTT D & KARON K |
|||||
|
3/22/2004 |
|
Deeds |
$190,000 |
FORD ROBERT M & JUDITH A |
JOHNSTON OTIS A & LYNDA C |
|||||
|
4/13/1993 |
|
Historical |
$155,500 |
BLASKOWSKY DOUGLAS WAYNE |
FORD ROBERT M & JUDITH A |
|||||
|
8/1/1989 |
|
Historical |
$169,500 |
REALTY CONSTRUCTION INC |
BLASKOWSKY DOUGLAS WAYNE |
|||||
| Last Mailed Notice of Value (N.O.V.) Information/History | ||||||||
|---|---|---|---|---|---|---|---|---|
| Year | Date | Market Value | Taxable Market Value | Gross Assessed | Exemption | Net Assessed | ||
|
2026 |
02/06/2026 |
378,000 |
306,626 |
33,728 |
1,000 |
32,728 |
||
|
2025 |
01/31/2025 |
374,500 |
297,696 |
32,745 |
1,000 |
31,745 |
||
|
2024 |
01/22/2024 |
365,500 |
289,026 |
31,791 |
1,000 |
30,791 |
||
|
2023 |
01/23/2023 |
351,000 |
280,608 |
30,866 |
1,000 |
29,866 |
||
|
2022 |
02/22/2022 |
297,500 |
272,435 |
29,967 |
1,000 |
28,967 |
||
| Property Building Permit History | |||||||||||
|---|---|---|---|---|---|---|---|---|---|---|---|
| Issued | Permit # | Provided by | Bldg # | Description | Est Construction Cost | Status | |||||
| No Building Permit records returned. | |||||||||||
| Click button on building number to access detailed information: | ||||||
|---|---|---|---|---|---|---|
| Bldg # | Vacant/Improved Land | Bldg Description | Year Built | SqFt | # Stories | |
|
1 |
Improved |
Ranch 1 Story |
1989 |
2,605 |
1 Stories |
|