|
|
|
| Larry Stein Oklahoma County Assessor (405) 713-1200 - Public Access System |
|
|
|
|
|
|
| Real Property Display - Screen Produced 4/9/2026 6:57:31 PM | ||||
|---|---|---|---|---|
| Account: R181584200 | Type: Residential | Location: |
2320 N COLTRANE RD |
|
| Building Name/Occupant: |
|
EDMOND |
||
| Owner Name 1: | DREAM BIG PROPERTIES & INVESTMENTS LLC |
Parcel PIN#: |
4480-18-158-4200 |
|
| Owner Name 2: | 1/4 section #: |
4480 |
||
| Owner Name 3: | Parent Acct: |
|
||
| Billing Address: | 1801 RISING STAR LN | Tax District: |
|
|
| City, State, Zip | EDMOND, OK 73034-6572 | School System: |
Edmond #12 |
|
|
Country: (If noted) |
Land Size: |
0.8600 Acres |
||
|
Land Value: 33,798 |
|
|||
|
Sect 20-T14N-R2W Qtr NW |
UNPLTD PT SEC 20 14N 2W
Block
000
Lot
000
|
|||
| Full Legal Description: UNPLTD PT SEC 20 14N 2W 000 000 PT NW4 SEC 20 14N 2W BEG 33FT E & 1197.5FT S OF NW/C OF NW4 E312FT S121FT W312FT N121FT TO BEG |
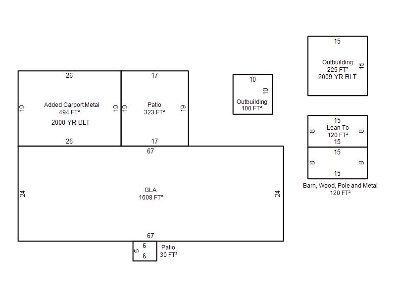
| Photo & Sketch (if available) | Comp Sales (ordered by relevancy) |
|
||||||||||||||||||
|
||||||||||||||||||||
| Value History (*The County Treasurer 405-713-1300 posts & collects actual tax amounts. Contact information HERE) | |||||||||||||
|---|---|---|---|---|---|---|---|---|---|---|---|---|---|
| Year | Market Value | Taxable Mkt Value | Gross Assessed | Exemption | Net Assessed | Millage | Est. Tax | Tax Savings | |||||
|
2026 |
317,500 |
109,730 |
12,069 |
0 |
12,069 |
105.16 |
$1,269 |
$2,403 |
|||||
|
2025 |
259,500 |
104,505 |
11,494 |
1,000 |
10,494 |
105.16 |
$1,104 |
$1,898 |
|||||
|
2024 |
256,500 |
101,462 |
11,160 |
1,000 |
10,160 |
105.03 |
$1,067 |
$1,896 |
|||||
|
2023 |
237,500 |
98,507 |
10,835 |
1,000 |
9,835 |
104.24 |
$1,025 |
$1,698 |
|||||
|
2022 |
187,000 |
95,638 |
10,519 |
1,000 |
9,519 |
104.64 |
$996 |
$1,156 |
|||||
| Property Account Status/Adjustments/Exemptions | ||
|---|---|---|
| Account # | Exemption Description | Amount |
|
R181584200 |
5% Capped Account |
0 |
| Property Deed Transaction History (Recorded in the County Clerk's Office) | ||||||||||
|---|---|---|---|---|---|---|---|---|---|---|
| Date | Type | Book | Page | Price | Grantor | Grantee | ||||
|
1/7/2026 |
|
Deeds |
$132,500 |
LAWSON RICHARD LEON & SHERRI L |
LAWSON SHERRY L |
|||||
|
1/7/2026 |
|
Deeds |
$132,500 |
LAWSON RICHARD LEON & SHERRI L |
DREAM BIG PROPERTIES & INVESTMENTS LLC |
|||||
|
6/19/2000 |
|
Hmstd Off & |
$0 |
LAWSON RICHARD & SHERRI |
LAWSON RICHARD LEON & SHERRI L |
|||||
|
6/9/2000 |
|
Hmstd Off & |
$0 |
LAWSON KENNETH R LAWSON SHIRLEY LEE |
LAWSON JERRY DALE LAWSON KENNETH R |
|||||
|
6/9/2000 |
|
Hmstd Off & |
$0 |
LAWSON JERRY D & CAROLYN |
LAWSON RICHARD LEON & SHERRI |
|||||
| Last Mailed Notice of Value (N.O.V.) Information/History | ||||||||
|---|---|---|---|---|---|---|---|---|
| Year | Date | Market Value | Taxable Market Value | Gross Assessed | Exemption | Net Assessed | ||
|
2026 |
02/06/2026 |
317,500 |
107,640 |
11,839 |
1,000 |
10,839 |
||
|
2026 |
03/30/2026 |
317,500 |
109,730 |
12,069 |
0 |
12,069 |
||
|
2025 |
01/31/2025 |
259,500 |
104,505 |
11,494 |
1,000 |
10,494 |
||
|
2024 |
01/22/2024 |
256,500 |
101,462 |
11,160 |
1,000 |
10,160 |
||
|
2023 |
01/23/2023 |
237,500 |
98,507 |
10,835 |
1,000 |
9,835 |
||
| Property Building Permit History | ||||||
|---|---|---|---|---|---|---|
| Issued | Permit # | Provided by | Bldg # | Description | Est Construction Cost | Status |
|
2/29/2012 |
10438938 |
EDMOND |
1 |
Add On |
45,000 |
Inactive |
|
1/30/2009 |
10371790 |
OKLAHOMA CITY |
1 |
Storage Buil |
7,000 |
Inactive |
| Click button on building number to access detailed information: | ||||||
|---|---|---|---|---|---|---|
| Bldg # | Vacant/Improved Land | Bldg Description | Year Built | SqFt | # Stories | |
|
1 |
Improved |
Ranch 1 Story |
1963 |
1,608 |
1 Stories |
|