|
|
|
| Larry Stein Oklahoma County Assessor (405) 713-1200 - Public Access System |
|
|
|
|
|
|
| Real Property Display - Screen Produced 4/4/2026 3:54:50 AM | ||||
|---|---|---|---|---|
| Account: R189211140 | Type: Residential | Location: |
5420 INDIAN HILL RD |
|
| Building Name/Occupant: |
|
EDMOND |
||
| Owner Name 1: | FOX FAMILY TRUST |
Parcel PIN#: |
4509-18-921-1140 |
|
| Owner Name 2: | 1/4 section #: |
4509 |
||
| Owner Name 3: | Parent Acct: |
|
||
| Billing Address: | 5420 INDIAN HILL RD | Tax District: |
|
|
| City, State, Zip | EDMOND, OK 73034-7520 | School System: |
Edmond #12 |
|
|
Country: (If noted) |
Land Size: |
2.2800 Acres |
||
|
Land Value: 68,400 |
|
|||
|
Sect 28-T14N-R2W Qtr NE |
UNPLTD PT SEC 28 14N 2W
Block
000
Lot
000
|
|||
| Full Legal Description: UNPLTD PT NE4 SEC 28 14N 2W BEG 1986.31FT S & 657.64FT W OF NE/C NE4 TH S663.04FT W164.41FT N663.04FT E164.41FT TO BEG EX N30FT |
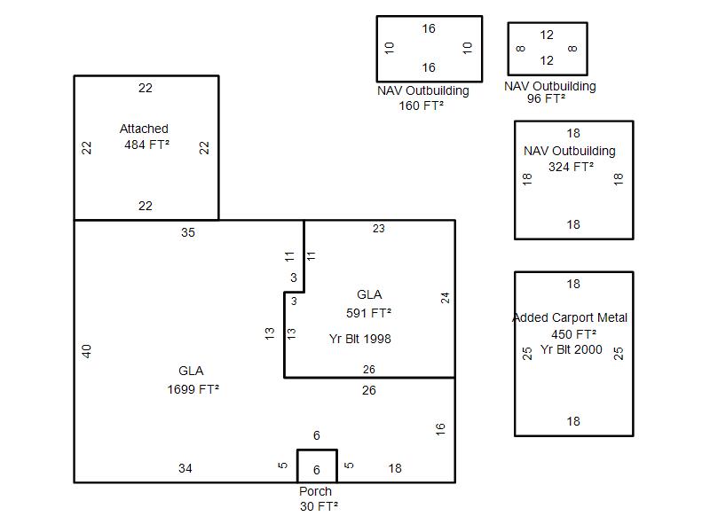
| Photo & Sketch (if available) | Comp Sales (ordered by relevancy) |
|
||||||||||||||||||
|
||||||||||||||||||||
| Value History (*The County Treasurer 405-713-1300 posts & collects actual tax amounts. Contact information HERE) | |||||||||||||
|---|---|---|---|---|---|---|---|---|---|---|---|---|---|
| Year | Market Value | Taxable Mkt Value | Gross Assessed | Exemption | Net Assessed | Millage | Est. Tax | Tax Savings | |||||
| No PropertyValuation records returned. | |||||||||||||
| Property Account Status/Adjustments/Exemptions | ||
|---|---|---|
| Account # | Exemption Description | Amount |
|
R189211140 |
5% Capped Account |
0 |
| Property Deed Transaction History (Recorded in the County Clerk's Office) | ||||||||||
|---|---|---|---|---|---|---|---|---|---|---|
| Date | Type | Book | Page | Price | Grantor | Grantee | ||||
|
3/22/2024 |
|
Deeds |
$430,000 |
DUCKSWORTH INVESTMENTS LLC |
FOX FAMILY TRUST |
|||||
|
2/14/2024 |
|
Deeds |
$0 |
DUCKSWORTH INVESTMENTS LLC |
DUCKSWORTH INVESTMENTS LLC |
|||||
|
10/20/2023 |
|
Deeds |
$375,000 |
CHAMBERS SHAUN M & MARIKA |
DUCKSWORTH INVESTMENTS LLC |
|||||
|
12/31/2018 |
|
Hmstd Off & |
$0 |
MCVAY LARRY J |
MCVAY BOB & DARLENE REV LIV TRUST |
|||||
|
12/27/2018 |
|
Deeds |
$270,000 |
MCVAY BOB & DARLENE REV LIV TRUST |
CHAMBERS SHAUN M & MARIKA |
|||||
| Last Mailed Notice of Value (N.O.V.) Information/History | ||||||||
|---|---|---|---|---|---|---|---|---|
| Year | Date | Market Value | Taxable Market Value | Gross Assessed | Exemption | Net Assessed | ||
| No Notice of Value N.O.V. records returned. | ||||||||
| Property Building Permit History | ||||||
|---|---|---|---|---|---|---|
| Issued | Permit # | Provided by | Bldg # | Description | Est Construction Cost | Status |
|
10/2/2023 |
|
|
1 |
Remodeled |
|
Inactive |
|
8/1/1998 |
10261232 |
EDMOND |
1 |
Add On |
22,000 |
Inactive |
| Click button on building number to access detailed information: | ||||||
|---|---|---|---|---|---|---|
| Bldg # | Vacant/Improved Land | Bldg Description | Year Built | SqFt | # Stories | |
|
1 |
Improved |
Ranch 1 Story |
1972 |
2,290 |
1 Stories |
|