|
|
|
| Larry Stein Oklahoma County Assessor (405) 713-1200 - Public Access System |
|
|
|
|
|
|
| Real Property Display - Screen Produced 3/26/2026 12:23:50 PM | ||||
|---|---|---|---|---|
| Account: R126531180 | Type: Residential | Location: |
825 BAY HILL PL |
|
| Building Name/Occupant: |
|
EDMOND |
||
| Owner Name 1: | SIKES DON & SONDI TRS |
Parcel PIN#: |
4517-12-653-1180 |
|
| Owner Name 2: | SIKES 2024 REV TRUST | 1/4 section #: |
4517 |
|
| Owner Name 3: | Parent Acct: |
|
||
| Billing Address: | 825 BAY HILL PL | Tax District: |
|
|
| City, State, Zip | EDMOND, OK 73034-3053 | School System: |
Edmond #12 |
|
|
Country: (If noted) |
Land Size: |
0.2732 Acres |
||
|
Land Value: 77,350 |
|
|||
|
Sect 30-T14N-R2W Qtr NE |
FAIRWAY ESTATES TO EDMOND
Block
002
Lot
027
|
|||
| Full Legal Description: FAIRWAY ESTATES TO EDMOND 002 027 |
| Photo & Sketch (if available) | Comp Sales (ordered by relevancy) |
|
||||||||||||||||||
|
||||||||||||||||||||
| Value History (*The County Treasurer 405-713-1300 posts & collects actual tax amounts. Contact information HERE) | |||||||||||||
|---|---|---|---|---|---|---|---|---|---|---|---|---|---|
| Year | Market Value | Taxable Mkt Value | Gross Assessed | Exemption | Net Assessed | Millage | Est. Tax | Tax Savings | |||||
|
2026 |
676,000 |
552,628 |
60,788 |
0 |
60,788 |
105.16 |
$6,393 |
$1,427 |
|||||
|
2025 |
657,500 |
526,313 |
57,893 |
0 |
57,893 |
105.16 |
$6,088 |
$1,518 |
|||||
|
2024 |
631,500 |
501,251 |
55,137 |
0 |
55,137 |
105.03 |
$5,791 |
$1,505 |
|||||
|
2023 |
587,000 |
477,382 |
52,511 |
0 |
52,511 |
104.24 |
$5,474 |
$1,257 |
|||||
|
2022 |
473,000 |
454,650 |
50,011 |
0 |
50,011 |
104.64 |
$5,233 |
$211 |
|||||
| Property Account Status/Adjustments/Exemptions | ||
|---|---|---|
| Account # | Exemption Description | Amount |
|
R126531180 |
5% Capped Account |
0 |
| Property Deed Transaction History (Recorded in the County Clerk's Office) | ||||||||||
|---|---|---|---|---|---|---|---|---|---|---|
| Date | Type | Book | Page | Price | Grantor | Grantee | ||||
|
12/16/2024 |
|
Hmstd Off & |
$0 |
SIKES DON K & SONDRA A |
SIKES DON & SONDI TRS |
|||||
|
9/29/2014 |
|
Deeds |
$0 |
SIKES DONALD & SONDRA |
SIKES DON K & SONDRA A |
|||||
|
9/16/2013 |
|
Deeds |
$60,500 |
OWENS RICKEY L & VIRGINIA A |
SIKES DONALD & SONDRA |
|||||
|
6/27/2013 |
|
Deeds |
$57,000 |
BRUCE MULFORD PROPERTIES LLC |
OWENS RICKEY L & VIRGINIA A |
|||||
|
3/8/2013 |
|
Deeds |
$44,500 |
HILTON MYRON S |
BRUCE MULFORD PROPERTIES LLC |
|||||
| Last Mailed Notice of Value (N.O.V.) Information/History | ||||||||
|---|---|---|---|---|---|---|---|---|
| Year | Date | Market Value | Taxable Market Value | Gross Assessed | Exemption | Net Assessed | ||
|
2026 |
02/06/2026 |
676,000 |
552,628 |
60,788 |
0 |
60,788 |
||
|
2025 |
01/31/2025 |
657,500 |
526,313 |
57,893 |
0 |
57,893 |
||
|
2024 |
01/22/2024 |
631,500 |
501,251 |
55,137 |
0 |
55,137 |
||
|
2023 |
01/23/2023 |
587,000 |
477,382 |
52,511 |
0 |
52,511 |
||
|
2022 |
02/22/2022 |
473,000 |
454,650 |
50,011 |
0 |
50,011 |
||
| Property Building Permit History | ||||||
|---|---|---|---|---|---|---|
| Issued | Permit # | Provided by | Bldg # | Description | Est Construction Cost | Status |
|
2/10/2014 |
10461532 |
EDMOND |
1 |
Main Dwellin |
335,000 |
Inactive |
| Click button on building number to access detailed information: | ||||||
|---|---|---|---|---|---|---|
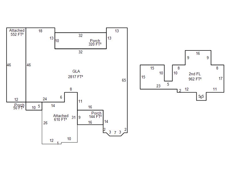
| Bldg # | Vacant/Improved Land | Bldg Description | Year Built | SqFt | # Stories | |
|
1 |
Improved |
1½ Story Fin |
2014 |
3,779 |
1.5 Stories |
|