|
|
|
| Larry Stein Oklahoma County Assessor (405) 713-1200 - Public Access System |
|
|
|
|
|
|
| Real Property Display - Screen Produced 3/26/2026 7:48:50 AM | ||||
|---|---|---|---|---|
| Account: R129891090 | Type: Residential | Location: |
2281 BAY HILL PL |
|
| Building Name/Occupant: |
|
EDMOND |
||
| Owner Name 1: | JANSSEN RACHEL C |
Parcel PIN#: |
4517-12-989-1090 |
|
| Owner Name 2: | 1/4 section #: |
4517 |
||
| Owner Name 3: | Parent Acct: |
|
||
| Billing Address: | 2281 BAY HILL PL | Tax District: |
|
|
| City, State, Zip | EDMOND, OK 73034 | School System: |
Edmond #12 |
|
|
Country: (If noted) |
Land Size: |
0.3857 Acres |
||
|
Land Value: 109,200 |
|
|||
|
Sect 30-T14N-R2W Qtr NE |
FAIRWAY ESTATES 3RD
Block
007
Lot
007
|
|||
| Full Legal Description: FAIRWAY ESTATES 3RD 007 007 |
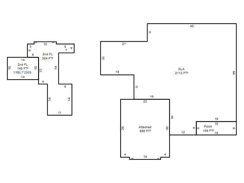
| Photo & Sketch (if available) | Comp Sales (ordered by relevancy) |
|
||||||||||||||||||
|
||||||||||||||||||||
| Value History (*The County Treasurer 405-713-1300 posts & collects actual tax amounts. Contact information HERE) | |||||||||||||
|---|---|---|---|---|---|---|---|---|---|---|---|---|---|
| Year | Market Value | Taxable Mkt Value | Gross Assessed | Exemption | Net Assessed | Millage | Est. Tax | Tax Savings | |||||
|
2026 |
444,500 |
368,068 |
40,487 |
1,000 |
39,487 |
105.16 |
$4,153 |
$989 |
|||||
|
2025 |
419,500 |
357,348 |
39,307 |
1,000 |
38,307 |
105.16 |
$4,028 |
$824 |
|||||
|
2024 |
412,000 |
346,940 |
38,162 |
1,000 |
37,162 |
105.03 |
$3,903 |
$857 |
|||||
|
2023 |
413,500 |
336,835 |
37,051 |
1,000 |
36,051 |
104.24 |
$3,758 |
$983 |
|||||
|
2022 |
369,500 |
327,025 |
35,972 |
1,000 |
34,972 |
104.64 |
$3,660 |
$594 |
|||||
| Property Account Status/Adjustments/Exemptions | ||
|---|---|---|
| Account # | Exemption Description | Amount |
|
R129891090 |
3% Cap Homestead |
0 |
|
R129891090 |
Homestead |
1,000 |
| Property Deed Transaction History (Recorded in the County Clerk's Office) | ||||||||||
|---|---|---|---|---|---|---|---|---|---|---|
| Date | Type | Book | Page | Price | Grantor | Grantee | ||||
|
5/31/2019 |
|
Deeds |
$0 |
THOMPSON JOSHUA D & SHARON G |
THOMPSON JOSHUA D & SHARON G TRS |
|||||
|
5/31/2019 |
|
Deeds |
$326,000 |
THOMPSON JOSHUA D & SHARON G TRS |
JANSSEN RACHEL C |
|||||
|
2/6/2013 |
|
Deeds |
$0 |
THOMPSON JOSHUA DERRICK THOMPSON SHARON GAIL |
THOMPSON JOSHUA D & SHARON G TRS |
|||||
|
9/30/2010 |
|
Deeds |
$282,000 |
GRAY THOMAS F & SHERRI J |
THOMPSON JOSHUA DERRICK THOMPSON SHARON GAIL |
|||||
|
7/21/2003 |
|
Deeds |
$0 |
GRAY THOMAS F & SHERRI J TRS GRAY FAMILY TRUST |
GRAY THOMAS F & SHERRI J |
|||||
| Last Mailed Notice of Value (N.O.V.) Information/History | ||||||||
|---|---|---|---|---|---|---|---|---|
| Year | Date | Market Value | Taxable Market Value | Gross Assessed | Exemption | Net Assessed | ||
|
2026 |
02/06/2026 |
444,500 |
368,068 |
40,487 |
1,000 |
39,487 |
||
|
2025 |
01/31/2025 |
419,500 |
357,348 |
39,307 |
1,000 |
38,307 |
||
|
2024 |
01/22/2024 |
412,000 |
346,940 |
38,162 |
1,000 |
37,162 |
||
|
2023 |
01/23/2023 |
413,500 |
336,835 |
37,051 |
1,000 |
36,051 |
||
|
2022 |
02/22/2022 |
369,500 |
327,025 |
35,972 |
1,000 |
34,972 |
||
| Property Building Permit History | ||||||
|---|---|---|---|---|---|---|
| Issued | Permit # | Provided by | Bldg # | Description | Est Construction Cost | Status |
|
2/28/2009 |
10374953 |
OKLAHOMA CITY |
1 |
Add On |
25,000 |
Inactive |
|
1/1/2001 |
10227313 |
OKLAHOMA CITY |
1 |
Under Constr |
2,001 |
Inactive |
| Click button on building number to access detailed information: | ||||||
|---|---|---|---|---|---|---|
| Bldg # | Vacant/Improved Land | Bldg Description | Year Built | SqFt | # Stories | |
|
1 |
Improved |
1½ Story Fin |
2001 |
2,637 |
1.5 Stories |
|