|
|
|
| Larry Stein Oklahoma County Assessor (405) 713-1200 - Public Access System |
|
|
|
|
|
|
| Real Property Display - Screen Produced 3/24/2026 12:43:38 PM | ||||
|---|---|---|---|---|
| Account: R189235510 | Type: Commercial | Location: |
1809 E 2ND ST |
|
| Building Name/Occupant: |
AMERICAN BEST VALUE INN |
EDMOND |
||
| Owner Name 1: | LAL & LAL ENTERPRISES INC |
Parcel PIN#: |
4519-18-923-5510 |
|
| Owner Name 2: | 1/4 section #: |
4519 |
||
| Owner Name 3: | Parent Acct: |
|
||
| Billing Address: | 4300 S COLTRANE RD | Tax District: |
|
|
| City, State, Zip | EDMOND, OK 73013-8102 | School System: |
Edmond #12 |
|
|
Country: (If noted) |
Land Size: |
41,227.0000 Square Feet |
||
|
Land Value: 756,328 |
|
|||
|
Sect 30-T14N-R2W Qtr SW |
UNPLTD PT SEC 30 14N 2W
Block
000
Lot
000
|
|||
| Full Legal Description: UNPLTD PT SEC 30 14N 2W 000 000 PT SW4 SEC 30 14N 2W BEG 1155FT E & 50FT N OF SW/C SW4 TH N258FT E160FT S258FT W160FT TO BEG CONT .9476ACRS MORE OR LESS |
| No comparable sales report available. | ||||||||||||||||||||||
|
||||||||||||||||||||||
| Value History (*The County Treasurer 405-713-1300 posts & collects actual tax amounts. Contact information HERE) | |||||||||||||
|---|---|---|---|---|---|---|---|---|---|---|---|---|---|
| Year | Market Value | Taxable Mkt Value | Gross Assessed | Exemption | Net Assessed | Millage | Est. Tax | Tax Savings | |||||
|
2025 |
1,050,542 |
908,597 |
99,945 |
0 |
99,945 |
105.16 |
$10,510 |
$1,642 |
|||||
|
2024 |
1,050,542 |
865,331 |
95,185 |
0 |
95,185 |
105.03 |
$9,997 |
$2,140 |
|||||
|
2023 |
901,137 |
824,125 |
90,652 |
0 |
90,652 |
104.24 |
$9,450 |
$883 |
|||||
|
2022 |
784,881 |
784,881 |
86,336 |
0 |
86,336 |
104.64 |
$9,034 |
$0 |
|||||
|
2021 |
800,289 |
800,289 |
88,031 |
0 |
88,031 |
104.15 |
$9,169 |
$0 |
|||||
| Property Account Status/Adjustments/Exemptions | ||
|---|---|---|
| Account # | Exemption Description | Amount |
|
R189235510 |
5% Capped Account |
0 |
| Property Deed Transaction History (Recorded in the County Clerk's Office) | |||||||
|---|---|---|---|---|---|---|---|
| Date | Type | Book | Page | Price | Grantor | Grantee | |
|
6/8/1990 |
|
Historical |
$0 |
UNIFIRST BANK FOR SAVINGS FA |
LAL & LAL ENTERPRISES INC |
||
|
10/11/1988 |
|
Historical |
$0 |
WILLIAMSBURG INVESTMENT CORP |
UNIFIRST BANK FOR SAVINGS FA |
||
|
10/1/1985 |
|
Historical |
$0 |
|
WILLIAMSBURG INVESTMENT CORP |
||
| Last Mailed Notice of Value (N.O.V.) Information/History | ||||||||
|---|---|---|---|---|---|---|---|---|
| Year | Date | Market Value | Taxable Market Value | Gross Assessed | Exemption | Net Assessed | ||
|
2026 |
03/23/2026 |
1,073,500 |
954,026 |
104,942 |
0 |
104,942 |
||
|
2025 |
03/14/2025 |
1,050,542 |
908,597 |
99,945 |
0 |
99,945 |
||
|
2024 |
03/12/2024 |
1,050,542 |
865,331 |
95,185 |
0 |
95,185 |
||
|
2023 |
03/13/2023 |
901,137 |
824,125 |
90,652 |
0 |
90,652 |
||
|
2020 |
03/16/2020 |
813,272 |
807,156 |
88,787 |
0 |
88,787 |
||
| Property Building Permit History | |||||||||||
|---|---|---|---|---|---|---|---|---|---|---|---|
| Issued | Permit # | Provided by | Bldg # | Description | Est Construction Cost | Status | |||||
| No Building Permit records returned. | |||||||||||
| Click button on building number to access detailed information: | ||||||
|---|---|---|---|---|---|---|
| Bldg # | Vacant/Improved Land | Bldg Description | Year Built | SqFt | # Stories | |
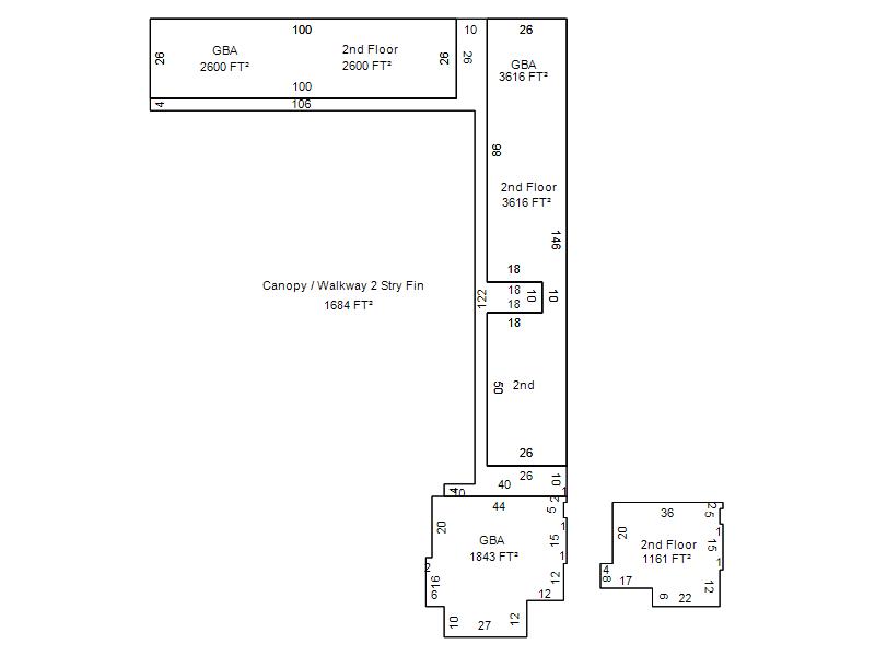
|
1 |
Improved |
Motel |
1984 |
15,436 |
2 Stories |
|