|
|
|
| Larry Stein Oklahoma County Assessor (405) 713-1200 - Public Access System |
|
|
|
|
|
|
| Real Property Display - Screen Produced 4/2/2026 3:31:53 PM | ||||
|---|---|---|---|---|
| Account: R128511160 | Type: Residential | Location: |
833 S FOX RUN TRL |
|
| Building Name/Occupant: |
|
EDMOND |
||
| Owner Name 1: | THOMAS JARED |
Parcel PIN#: |
4525-12-851-1160 |
|
| Owner Name 2: | THOMAS KINSEY | 1/4 section #: |
4525 |
|
| Owner Name 3: | Parent Acct: |
|
||
| Billing Address: | 833 FOX RUN TRL | Tax District: |
|
|
| City, State, Zip | EDMOND, OK 73034-7361 | School System: |
Edmond #12 |
|
|
Country: (If noted) |
Land Size: |
0.2851 Acres |
||
|
Land Value: 84,456 |
|
|||
|
Sect 32-T14N-R2W Qtr NE |
FOX LAKE 8TH ADDN TO EDMOND
Block
008
Lot
018
|
|||
| Full Legal Description: FOX LAKE 8TH ADDN TO EDMOND 008 018 |
| Photo & Sketch (if available) | Comp Sales (ordered by relevancy) |
|
||||||||||||||||||
|
||||||||||||||||||||
| Value History (*The County Treasurer 405-713-1300 posts & collects actual tax amounts. Contact information HERE) | |||||||||||||
|---|---|---|---|---|---|---|---|---|---|---|---|---|---|
| Year | Market Value | Taxable Mkt Value | Gross Assessed | Exemption | Net Assessed | Millage | Est. Tax | Tax Savings | |||||
|
2026 |
518,000 |
421,228 |
46,334 |
1,000 |
45,334 |
105.16 |
$4,767 |
$1,225 |
|||||
|
2025 |
514,000 |
408,960 |
44,985 |
1,000 |
43,985 |
105.16 |
$4,626 |
$1,320 |
|||||
|
2024 |
500,000 |
397,049 |
43,675 |
1,000 |
42,675 |
105.03 |
$4,482 |
$1,294 |
|||||
|
2023 |
480,500 |
385,485 |
42,403 |
1,000 |
41,403 |
104.24 |
$4,316 |
$1,194 |
|||||
|
2022 |
410,500 |
374,258 |
41,168 |
1,000 |
40,168 |
104.64 |
$4,203 |
$522 |
|||||
| Property Account Status/Adjustments/Exemptions | ||
|---|---|---|
| Account # | Exemption Description | Amount |
|
R128511160 |
3% Cap Homestead |
0 |
|
R128511160 |
Homestead |
1,000 |
| Property Deed Transaction History (Recorded in the County Clerk's Office) | ||||||||||
|---|---|---|---|---|---|---|---|---|---|---|
| Date | Type | Book | Page | Price | Grantor | Grantee | ||||
|
9/20/2013 |
|
Hmstd Off & |
$0 |
SINGER JANET M TRS SINGER JANET M REV TRUST |
SINGER HARRY SUC TRS CRUM RALPH W SUC TRS |
|||||
|
9/20/2013 |
|
Deeds |
$330,000 |
SINGER HARRY SUC TRS CRUM RALPH W SUC TRS |
THOMAS JARED |
|||||
|
7/23/2009 |
|
Deeds |
$0 |
SINGER JANET M |
SINGER JANET M TRS SINGER JANET M REV TRUST |
|||||
|
3/5/2001 |
|
Deeds |
$0 |
STUMBAUGH CHARLES C SINGER JANET M |
SINGER JANET M |
|||||
|
12/1/1998 |
|
Historical |
$270,000 |
SCHWARTZ JOANI H |
STUMBAUGH CHARLES C |
|||||
| Last Mailed Notice of Value (N.O.V.) Information/History | ||||||||
|---|---|---|---|---|---|---|---|---|
| Year | Date | Market Value | Taxable Market Value | Gross Assessed | Exemption | Net Assessed | ||
|
2026 |
02/06/2026 |
518,000 |
421,228 |
46,334 |
1,000 |
45,334 |
||
|
2025 |
01/31/2025 |
514,000 |
408,960 |
44,985 |
1,000 |
43,985 |
||
|
2024 |
01/22/2024 |
500,000 |
397,049 |
43,675 |
1,000 |
42,675 |
||
|
2023 |
01/23/2023 |
480,500 |
385,485 |
42,403 |
1,000 |
41,403 |
||
|
2022 |
02/22/2022 |
410,500 |
374,258 |
41,168 |
1,000 |
40,168 |
||
| Property Building Permit History | ||||||
|---|---|---|---|---|---|---|
| Issued | Permit # | Provided by | Bldg # | Description | Est Construction Cost | Status |
|
10/1/1996 |
10222094 |
EDMOND |
1 |
Main Dwellin |
250,000 |
Inactive |
| Click button on building number to access detailed information: | ||||||
|---|---|---|---|---|---|---|
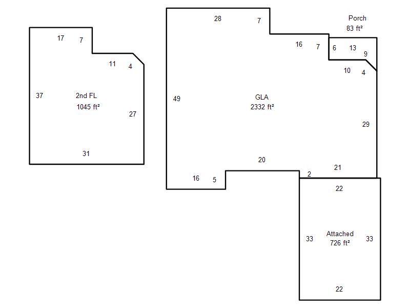
| Bldg # | Vacant/Improved Land | Bldg Description | Year Built | SqFt | # Stories | |
|
1 |
Improved |
1½ Story Fin |
1997 |
3,377 |
1.5 Stories |
|