|
|
|
| Larry Stein Oklahoma County Assessor (405) 713-1200 - Public Access System |
|
|
|
|
|
|
| Real Property Display - Screen Produced 3/12/2026 11:35:52 AM | ||||
|---|---|---|---|---|
| Account: R267025125 | Type: Residential | Location: |
1249 WOODCREST DR |
|
| Building Name/Occupant: |
|
UNINCORPORATED |
||
| Owner Name 1: | BROWN MATTHEW BRYCE |
Parcel PIN#: |
1007-26-702-5125 |
|
| Owner Name 2: | MORRIS JORDAN ASHLEY | 1/4 section #: |
1007 |
|
| Owner Name 3: | Parent Acct: |
|
||
| Billing Address: | 1249 WOODCREST DR | Tax District: |
|
|
| City, State, Zip | HARRAH, OK 73045-6411 | School System: |
Harrah #7 |
|
|
Country: (If noted) |
Land Size: |
5.0000 Acres |
||
|
Land Value: 48,775 |
|
|||
|
Sect 2-T11N-R1E Qtr SW |
POTTAWATOMIE TOWNSHIP
Block
000
Lot
000
|
|||
| Full Legal Description: POTTAWATOMIE TOWNSHIP PT SW4 SEC 2 11N 1E BEG 1315FT W & 713FT N OF SE/C N516.5FT E422FT S516.5FT W422FT ALSO KNOWN AS TR 32 OF UNREC PLTD ROLLING HILLS |
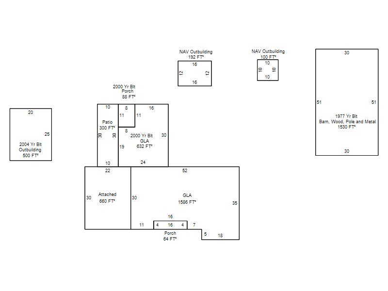
| Photo & Sketch (if available) | Comp Sales (ordered by relevancy) |
|
||||||||||||||||||
|
||||||||||||||||||||
| Value History (*The County Treasurer 405-713-1300 posts & collects actual tax amounts. Contact information HERE) | |||||||||||||
|---|---|---|---|---|---|---|---|---|---|---|---|---|---|
| Year | Market Value | Taxable Mkt Value | Gross Assessed | Exemption | Net Assessed | Millage | Est. Tax | Tax Savings | |||||
|
2025 |
423,500 |
423,500 |
46,585 |
0 |
46,585 |
107.54 |
$5,010 |
$0 |
|||||
|
2024 |
400,000 |
228,506 |
25,135 |
1,000 |
24,135 |
110.62 |
$2,670 |
$2,197 |
|||||
|
2023 |
377,000 |
221,851 |
24,402 |
1,000 |
23,402 |
97.88 |
$2,291 |
$1,768 |
|||||
|
2022 |
313,000 |
215,390 |
23,692 |
1,000 |
22,692 |
99.50 |
$2,258 |
$1,168 |
|||||
|
2021 |
259,500 |
209,117 |
23,001 |
1,000 |
22,001 |
99.52 |
$2,190 |
$651 |
|||||
| Property Account Status/Adjustments/Exemptions | ||
|---|---|---|
| Account # | Exemption Description | Amount |
|
R267025125 |
5% Capped Account |
0 |
| Property Deed Transaction History (Recorded in the County Clerk's Office) | ||||||||||
|---|---|---|---|---|---|---|---|---|---|---|
| Date | Type | Book | Page | Price | Grantor | Grantee | ||||
|
12/11/2024 |
|
Deeds |
$455,000 |
KEARN NATHANIEL THOMAS CO TRS |
BROWN MATTHEW BRYCE |
|||||
|
6/2/2021 |
|
Deeds |
$0 |
KEARN TERRY L & KELLEY S |
KEARN NATHANIEL THOMAS CO TRS |
|||||
|
7/2/1996 |
|
Historical |
$104,000 |
BEAM CYNTHIA C & GREGORY |
KEARN TERRY L & KELLEY S |
|||||
|
6/16/1994 |
|
Historical |
$85,000 |
MASONER DENNIS R & STEPHANIE J |
BEAM CYNTHIA C & GREGORY |
|||||
|
5/8/1992 |
|
Historical |
$76,000 |
ORVIG NORMAN |
MASONER DENNIS R & STEPHANIE J |
|||||
| Last Mailed Notice of Value (N.O.V.) Information/History | ||||||||
|---|---|---|---|---|---|---|---|---|
| Year | Date | Market Value | Taxable Market Value | Gross Assessed | Exemption | Net Assessed | ||
|
2025 |
01/31/2025 |
423,500 |
423,500 |
46,585 |
1,000 |
45,585 |
||
|
2024 |
01/22/2024 |
400,000 |
228,506 |
25,135 |
1,000 |
24,135 |
||
|
2023 |
01/23/2023 |
377,000 |
221,851 |
24,402 |
1,000 |
23,402 |
||
|
2022 |
02/22/2022 |
313,000 |
215,390 |
23,691 |
1,000 |
22,691 |
||
|
2021 |
02/24/2021 |
259,500 |
209,117 |
23,002 |
1,000 |
22,002 |
||
| Property Building Permit History | |||||||||||
|---|---|---|---|---|---|---|---|---|---|---|---|
| Issued | Permit # | Provided by | Bldg # | Description | Est Construction Cost | Status | |||||
| No Building Permit records returned. | |||||||||||
| Click button on building number to access detailed information: | ||||||
|---|---|---|---|---|---|---|
| Bldg # | Vacant/Improved Land | Bldg Description | Year Built | SqFt | # Stories | |
|
1 |
Improved |
Ranch 1 Story |
1977 |
2,218 |
1 Stories |
|