|
|
|
| Larry Stein Oklahoma County Assessor (405) 713-1200 - Public Access System |
|
|
|
|
|
|
| Real Property Display - Screen Produced 4/2/2026 11:17:18 PM | ||||
|---|---|---|---|---|
| Account: R123591080 | Type: Residential | Location: |
717 ABERDEEN RD |
|
| Building Name/Occupant: |
|
EDMOND |
||
| Owner Name 1: | KUYKENDALL LUNSFORD KELLY |
Parcel PIN#: |
4607-12-359-1080 |
|
| Owner Name 2: | LUNSFORD JAMES ANTHONY | 1/4 section #: |
4607 |
|
| Owner Name 3: | Parent Acct: |
|
||
| Billing Address: | 5083 LAKE BREEZE RD | Tax District: |
|
|
| City, State, Zip | GROVE, OK 74344-7840 | School System: |
Edmond #12 |
|
|
Country: (If noted) |
Land Size: |
0.1108 Acres |
||
|
Land Value: 50,963 |
|
|||
|
Sect 2-T14N-R3W Qtr SW |
THE HIGHLANDS OF OAK TREE 2
Block
001
Lot
013
|
|||
| Full Legal Description: THE HIGHLANDS OF OAK TREE 2 001 013 |
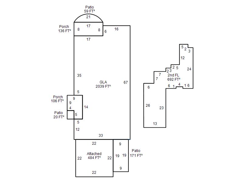
| Photo & Sketch (if available) | Comp Sales (ordered by relevancy) |
|
||||||||||||||||||
|
||||||||||||||||||||
| Value History (*The County Treasurer 405-713-1300 posts & collects actual tax amounts. Contact information HERE) | |||||||||||||
|---|---|---|---|---|---|---|---|---|---|---|---|---|---|
| Year | Market Value | Taxable Mkt Value | Gross Assessed | Exemption | Net Assessed | Millage | Est. Tax | Tax Savings | |||||
|
2026 |
440,500 |
440,500 |
48,455 |
0 |
48,455 |
105.16 |
$5,096 |
$0 |
|||||
|
2025 |
453,500 |
450,975 |
49,607 |
0 |
49,607 |
105.16 |
$5,217 |
$29 |
|||||
|
2024 |
429,500 |
429,500 |
47,245 |
0 |
47,245 |
105.03 |
$4,962 |
$0 |
|||||
|
2023 |
409,500 |
409,500 |
45,045 |
0 |
45,045 |
104.24 |
$4,695 |
$0 |
|||||
|
2022 |
337,000 |
308,700 |
33,957 |
0 |
33,957 |
104.64 |
$3,553 |
$326 |
|||||
| Property Account Status/Adjustments/Exemptions | ||
|---|---|---|
| Account # | Exemption Description | Amount |
|
R123591080 |
5% Capped Account |
0 |
| Property Deed Transaction History (Recorded in the County Clerk's Office) | ||||||||||
|---|---|---|---|---|---|---|---|---|---|---|
| Date | Type | Book | Page | Price | Grantor | Grantee | ||||
|
3/22/2022 |
|
Deeds |
$390,000 |
KUYKENDALL HALBERT G JR & DEBRA |
KUYKENDALL LUNSFORD KELLY |
|||||
|
9/6/2017 |
|
Hmstd Off & |
$0 |
SMITH MATTHEW M |
SMITH ROBIN |
|||||
|
9/1/2017 |
|
Deeds |
$281,000 |
SMITH MATTHEW M & ROBIN |
KUYKENDALL HALBERT G JR & DEBRA |
|||||
|
3/4/2016 |
|
Deeds |
$319,000 |
VERDEAUX CLAYTON G & ANNETTE |
SMITH MATTHEW M & ROBIN |
|||||
|
5/1/2015 |
|
Deeds |
$310,000 |
COPLEN ERNEST B JR CO TRS COPLEN BOBBIE JO CO TRS |
VERDEAUX CLAYTON G & ANNETTE |
|||||
| Last Mailed Notice of Value (N.O.V.) Information/History | ||||||||
|---|---|---|---|---|---|---|---|---|
| Year | Date | Market Value | Taxable Market Value | Gross Assessed | Exemption | Net Assessed | ||
|
2025 |
01/31/2025 |
453,500 |
450,975 |
49,607 |
0 |
49,607 |
||
|
2024 |
01/22/2024 |
429,500 |
429,500 |
47,245 |
0 |
47,245 |
||
|
2023 |
01/23/2023 |
409,500 |
409,500 |
45,045 |
0 |
45,045 |
||
|
2022 |
02/22/2022 |
337,000 |
308,700 |
33,957 |
0 |
33,957 |
||
|
2019 |
02/26/2019 |
299,000 |
299,000 |
32,890 |
0 |
32,890 |
||
| Property Building Permit History | |||||||||||
|---|---|---|---|---|---|---|---|---|---|---|---|
| Issued | Permit # | Provided by | Bldg # | Description | Est Construction Cost | Status | |||||
| No Building Permit records returned. | |||||||||||
| Click button on building number to access detailed information: | ||||||
|---|---|---|---|---|---|---|
| Bldg # | Vacant/Improved Land | Bldg Description | Year Built | SqFt | # Stories | |
|
1 |
Improved |
Duplex One half Story |
2000 |
2,731 |
1.5 Stories |
|