|
|
|
| Larry Stein Oklahoma County Assessor (405) 713-1200 - Public Access System |
|
|
|
|
|
|
| Real Property Display - Screen Produced 4/1/2026 5:27:17 AM | ||||
|---|---|---|---|---|
| Account: R124911980 | Type: Residential | Location: |
1509 PEACHTREE CT |
|
| Building Name/Occupant: |
|
EDMOND |
||
| Owner Name 1: | CURRAN JOAN C |
Parcel PIN#: |
4638-12-491-1980 |
|
| Owner Name 2: | 1/4 section #: |
4638 |
||
| Owner Name 3: | Parent Acct: |
|
||
| Billing Address: | 1509 PEACHTREE CT | Tax District: |
|
|
| City, State, Zip | EDMOND, OK 73025 | School System: |
Edmond #12 |
|
|
Country: (If noted) |
Land Size: |
0.2211 Acres |
||
|
Land Value: 58,647 |
|
|||
|
Sect 10-T14N-R3W Qtr SE |
OAKTREE PARK 1ST TO EDMOND
Block
005
Lot
020
|
|||
| Full Legal Description: OAKTREE PARK 1ST TO EDMOND 005 020 |
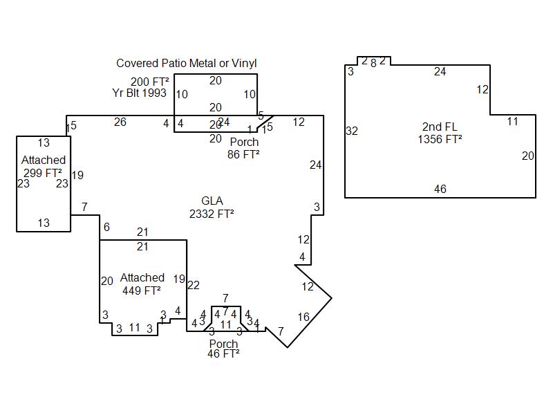
| Photo & Sketch (if available) | Comp Sales (ordered by relevancy) |
|
||||||||||||||||||
|
||||||||||||||||||||
| Value History (*The County Treasurer 405-713-1300 posts & collects actual tax amounts. Contact information HERE) | |||||||||||||
|---|---|---|---|---|---|---|---|---|---|---|---|---|---|
| Year | Market Value | Taxable Mkt Value | Gross Assessed | Exemption | Net Assessed | Millage | Est. Tax | Tax Savings | |||||
|
2026 |
583,000 |
459,201 |
50,511 |
1,000 |
49,511 |
105.16 |
$5,207 |
$1,537 |
|||||
|
2025 |
578,000 |
445,827 |
49,040 |
1,000 |
48,040 |
105.16 |
$5,052 |
$1,634 |
|||||
|
2024 |
564,500 |
432,842 |
47,611 |
1,000 |
46,611 |
105.03 |
$4,896 |
$1,626 |
|||||
|
2023 |
536,000 |
420,235 |
46,225 |
1,000 |
45,225 |
104.24 |
$4,714 |
$1,432 |
|||||
|
2022 |
459,000 |
407,996 |
44,879 |
1,000 |
43,879 |
104.64 |
$4,592 |
$692 |
|||||
| Property Account Status/Adjustments/Exemptions | ||
|---|---|---|
| Account # | Exemption Description | Amount |
|
R124911980 |
3% Cap Homestead |
0 |
|
R124911980 |
Homestead |
1,000 |
| Property Deed Transaction History (Recorded in the County Clerk's Office) | ||||||||||
|---|---|---|---|---|---|---|---|---|---|---|
| Date | Type | Book | Page | Price | Grantor | Grantee | ||||
|
10/24/2022 |
|
Deeds |
$0 |
CURRAN JEFFREY A |
CURRAN JOAN C |
|||||
|
5/7/1998 |
|
Historical |
$282,000 |
BLAIK ROBERT E & DEDEE R |
CURRAN JEFFREY A |
|||||
|
5/27/1994 |
|
Historical |
$262,500 |
JIM QUIGLEY PROPERTIES INC |
BLAIK ROBERT E & DEDEE R |
|||||
|
12/10/1992 |
|
Historical |
$0 |
FIRST OKLAHOMA MORTGAGE |
JIM QUIGLEY PROPERTIES INC |
|||||
|
1/1/1987 |
|
Historical |
$0 |
OAKTREE PARK DEVEL INC |
FIRST OKLAHOMA MORTGAGE |
|||||
| Last Mailed Notice of Value (N.O.V.) Information/History | ||||||||
|---|---|---|---|---|---|---|---|---|
| Year | Date | Market Value | Taxable Market Value | Gross Assessed | Exemption | Net Assessed | ||
|
2026 |
02/06/2026 |
583,000 |
459,201 |
50,511 |
1,000 |
49,511 |
||
|
2025 |
01/31/2025 |
578,000 |
445,827 |
49,040 |
1,000 |
48,040 |
||
|
2024 |
01/22/2024 |
564,500 |
432,842 |
47,611 |
1,000 |
46,611 |
||
|
2023 |
01/23/2023 |
536,000 |
420,235 |
46,225 |
1,000 |
45,225 |
||
|
2022 |
02/22/2022 |
459,000 |
407,996 |
44,879 |
1,000 |
43,879 |
||
| Property Building Permit History | ||||||
|---|---|---|---|---|---|---|
| Issued | Permit # | Provided by | Bldg # | Description | Est Construction Cost | Status |
|
1/16/1993 |
10212750 |
EDMOND |
1 |
Main Dwellin |
175,000 |
Inactive |
| Click button on building number to access detailed information: | ||||||
|---|---|---|---|---|---|---|
| Bldg # | Vacant/Improved Land | Bldg Description | Year Built | SqFt | # Stories | |
|
1 |
Improved |
1½ Story Fin |
1993 |
3,688 |
1.5 Stories |
|