|
|
|
| Larry Stein Oklahoma County Assessor (405) 713-1200 - Public Access System |
|
|
|
|
|
|
| Real Property Display - Screen Produced 4/8/2026 8:15:17 AM | ||||
|---|---|---|---|---|
| Account: R181791170 | Type: Residential | Location: |
1716 MILL CREEK RD |
|
| Building Name/Occupant: |
|
EDMOND |
||
| Owner Name 1: | HIRST CHARLES K |
Parcel PIN#: |
4640-18-179-1170 |
|
| Owner Name 2: | HIRST CHRISTINA M | 1/4 section #: |
4640 |
|
| Owner Name 3: | Parent Acct: |
|
||
| Billing Address: | 1716 MILL CREEK RD | Tax District: |
|
|
| City, State, Zip | EDMOND, OK 73025 | School System: |
Deer Creek #6 |
|
|
Country: (If noted) |
Land Size: |
2.1900 Acres |
||
|
Land Value: 62,544 |
|
|||
|
Sect 10-T14N-R3W Qtr NW |
SORGHUM MILL ESTATES SEC 2
Block
004
Lot
029
|
|||
| Full Legal Description: SORGHUM MILL ESTATES SEC 2 004 029 |
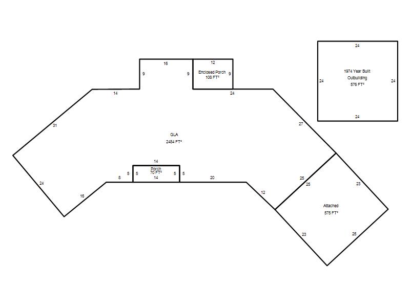
| Photo & Sketch (if available) | Comp Sales (ordered by relevancy) |
|
||||||||||||||||||
|
||||||||||||||||||||
| Value History (*The County Treasurer 405-713-1300 posts & collects actual tax amounts. Contact information HERE) | |||||||||||||
|---|---|---|---|---|---|---|---|---|---|---|---|---|---|
| Year | Market Value | Taxable Mkt Value | Gross Assessed | Exemption | Net Assessed | Millage | Est. Tax | Tax Savings | |||||
|
2026 |
396,000 |
349,023 |
38,392 |
0 |
38,392 |
114.35 |
$4,390 |
$591 |
|||||
|
2025 |
398,000 |
332,403 |
36,564 |
0 |
36,564 |
114.35 |
$4,181 |
$825 |
|||||
|
2024 |
371,000 |
316,575 |
34,823 |
0 |
34,823 |
116.19 |
$4,046 |
$696 |
|||||
|
2023 |
301,500 |
301,500 |
33,165 |
0 |
33,165 |
116.77 |
$3,873 |
$0 |
|||||
|
2022 |
318,000 |
318,000 |
34,980 |
0 |
34,980 |
114.81 |
$4,016 |
$0 |
|||||
| Property Account Status/Adjustments/Exemptions | ||
|---|---|---|
| Account # | Exemption Description | Amount |
|
R181791170 |
5% Capped Account |
0 |
| Property Deed Transaction History (Recorded in the County Clerk's Office) | |||||||
|---|---|---|---|---|---|---|---|
| Date | Type | Book | Page | Price | Grantor | Grantee | |
|
1/28/2022 |
|
Deeds |
$300,000 |
SIMPLY SELL LLC |
HIRST CHARLES K |
||
|
10/5/2021 |
|
Deeds |
$225,000 |
HACK GARY W |
SIMPLY SELL LLC |
||
|
6/19/2007 |
|
Deeds |
$85,000 |
NEESE CHESTER C & MARJORIE D |
HACK GARY W |
||
|
12/1/1973 |
|
Historical |
$0 |
|
NEESE CHESTER C & MARJORIE D |
||
| Last Mailed Notice of Value (N.O.V.) Information/History | ||||||||
|---|---|---|---|---|---|---|---|---|
| Year | Date | Market Value | Taxable Market Value | Gross Assessed | Exemption | Net Assessed | ||
|
2026 |
02/06/2026 |
396,000 |
349,023 |
38,392 |
0 |
38,392 |
||
|
2025 |
01/31/2025 |
398,000 |
332,403 |
36,564 |
0 |
36,564 |
||
|
2024 |
01/22/2024 |
371,000 |
316,575 |
34,823 |
0 |
34,823 |
||
|
2023 |
01/23/2023 |
301,500 |
301,500 |
33,165 |
0 |
33,165 |
||
|
2022 |
02/22/2022 |
318,000 |
318,000 |
34,980 |
0 |
34,980 |
||
| Property Building Permit History | |||||||||||
|---|---|---|---|---|---|---|---|---|---|---|---|
| Issued | Permit # | Provided by | Bldg # | Description | Est Construction Cost | Status | |||||
| No Building Permit records returned. | |||||||||||
| Click button on building number to access detailed information: | ||||||
|---|---|---|---|---|---|---|
| Bldg # | Vacant/Improved Land | Bldg Description | Year Built | SqFt | # Stories | |
|
1 |
Improved |
Ranch 1 Story |
1974 |
2,484 |
1 Stories |
|