|
|
|
| Larry Stein Oklahoma County Assessor (405) 713-1200 - Public Access System |
|
|
|
|
|
|
| Real Property Display - Screen Produced 4/8/2026 8:11:52 AM | ||||
|---|---|---|---|---|
| Account: R181791190 | Type: Residential | Location: |
1904 MILL CREEK RD |
|
| Building Name/Occupant: |
|
EDMOND |
||
| Owner Name 1: | TESKE REV TRUST |
Parcel PIN#: |
4640-18-179-1190 |
|
| Owner Name 2: | 1/4 section #: |
4640 |
||
| Owner Name 3: | Parent Acct: |
|
||
| Billing Address: | 1904 MILL CREEK RD | Tax District: |
|
|
| City, State, Zip | EDMOND , OK 73025-2830 | School System: |
Deer Creek #6 |
|
|
Country: (If noted) |
Land Size: |
2.9900 Acres |
||
|
Land Value: 85,391 |
|
|||
|
Sect 10-T14N-R3W Qtr NW |
SORGHUM MILL ESTATES SEC 2
Block
004
Lot
031
|
|||
| Full Legal Description: SORGHUM MILL ESTATES SEC 2 004 031 |
| Photo & Sketch (if available) | Comp Sales (ordered by relevancy) |
|
||||||||||||||||||
|
||||||||||||||||||||
| Value History (*The County Treasurer 405-713-1300 posts & collects actual tax amounts. Contact information HERE) | |||||||||||||
|---|---|---|---|---|---|---|---|---|---|---|---|---|---|
| Year | Market Value | Taxable Mkt Value | Gross Assessed | Exemption | Net Assessed | Millage | Est. Tax | Tax Savings | |||||
|
2026 |
500,000 |
432,019 |
47,521 |
0 |
47,521 |
114.35 |
$5,434 |
$855 |
|||||
|
2025 |
503,000 |
411,447 |
45,259 |
0 |
45,259 |
114.35 |
$5,175 |
$1,152 |
|||||
|
2024 |
473,000 |
391,855 |
43,103 |
0 |
43,103 |
116.19 |
$5,008 |
$1,037 |
|||||
|
2023 |
440,000 |
373,196 |
41,050 |
0 |
41,050 |
116.77 |
$4,794 |
$858 |
|||||
|
2022 |
400,000 |
355,425 |
39,096 |
0 |
39,096 |
114.81 |
$4,489 |
$563 |
|||||
| Property Account Status/Adjustments/Exemptions | ||
|---|---|---|
| Account # | Exemption Description | Amount |
|
R181791190 |
5% Capped Account |
0 |
| Property Deed Transaction History (Recorded in the County Clerk's Office) | ||||||||||
|---|---|---|---|---|---|---|---|---|---|---|
| Date | Type | Book | Page | Price | Grantor | Grantee | ||||
|
7/26/2019 |
|
Hmstd Off & |
$0 |
TESKE PAUL D & LAURINA |
TESKE REV TRUST |
|||||
|
6/27/2013 |
|
Deeds |
$291,000 |
VINCENT DANENE |
TESKE PAUL D & LAURINA |
|||||
|
7/23/2010 |
|
Deeds |
$0 |
VINCENT MARK M & DANENE |
VINCENT DANENE |
|||||
|
5/22/2003 |
|
Deeds |
$197,000 |
MAXWELL RALEIGH G & CAROLYN S |
VINCENT MARK M & DANENE |
|||||
|
8/17/1988 |
|
Historical |
$115,000 |
BOSE ESTHER R |
MAXWELL RALEIGH G & CAROLYN S |
|||||
| Last Mailed Notice of Value (N.O.V.) Information/History | ||||||||
|---|---|---|---|---|---|---|---|---|
| Year | Date | Market Value | Taxable Market Value | Gross Assessed | Exemption | Net Assessed | ||
|
2026 |
02/06/2026 |
500,000 |
432,019 |
47,521 |
0 |
47,521 |
||
|
2025 |
01/31/2025 |
503,000 |
411,447 |
45,259 |
0 |
45,259 |
||
|
2024 |
01/22/2024 |
473,000 |
391,855 |
43,103 |
0 |
43,103 |
||
|
2023 |
01/23/2023 |
440,000 |
373,196 |
41,050 |
0 |
41,050 |
||
|
2022 |
02/22/2022 |
400,000 |
355,425 |
39,096 |
0 |
39,096 |
||
| Property Building Permit History | |||||||||||
|---|---|---|---|---|---|---|---|---|---|---|---|
| Issued | Permit # | Provided by | Bldg # | Description | Est Construction Cost | Status | |||||
| No Building Permit records returned. | |||||||||||
| Click button on building number to access detailed information: | ||||||
|---|---|---|---|---|---|---|
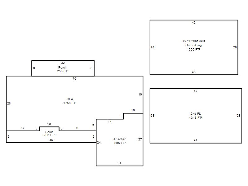
| Bldg # | Vacant/Improved Land | Bldg Description | Year Built | SqFt | # Stories | |
|
1 |
Improved |
2 Story |
1974 |
3,082 |
2 Stories |
|