|
|
|
| Larry Stein Oklahoma County Assessor (405) 713-1200 - Public Access System |
|
|
|
|
|
|
| Real Property Display - Screen Produced 4/8/2026 8:16:17 AM | ||||
|---|---|---|---|---|
| Account: R183351080 | Type: Residential | Location: |
1800 MESA TRL |
|
| Building Name/Occupant: |
|
EDMOND |
||
| Owner Name 1: | DEMIER SERGIO & DEBRA K |
Parcel PIN#: |
4640-18-335-1080 |
|
| Owner Name 2: | 1/4 section #: |
4640 |
||
| Owner Name 3: | Parent Acct: |
|
||
| Billing Address: | 1800 MESA TRL | Tax District: |
|
|
| City, State, Zip | EDMOND, OK 73025-2844 | School System: |
Deer Creek #6 |
|
|
Country: (If noted) |
Land Size: |
2.4600 Acres |
||
|
Land Value: 70,255 |
|
|||
|
Sect 10-T14N-R3W Qtr NW |
SORGHUM MILL ESTATES
Block
002
Lot
001
|
|||
| Full Legal Description: SORGHUM MILL ESTATES 002 001 |
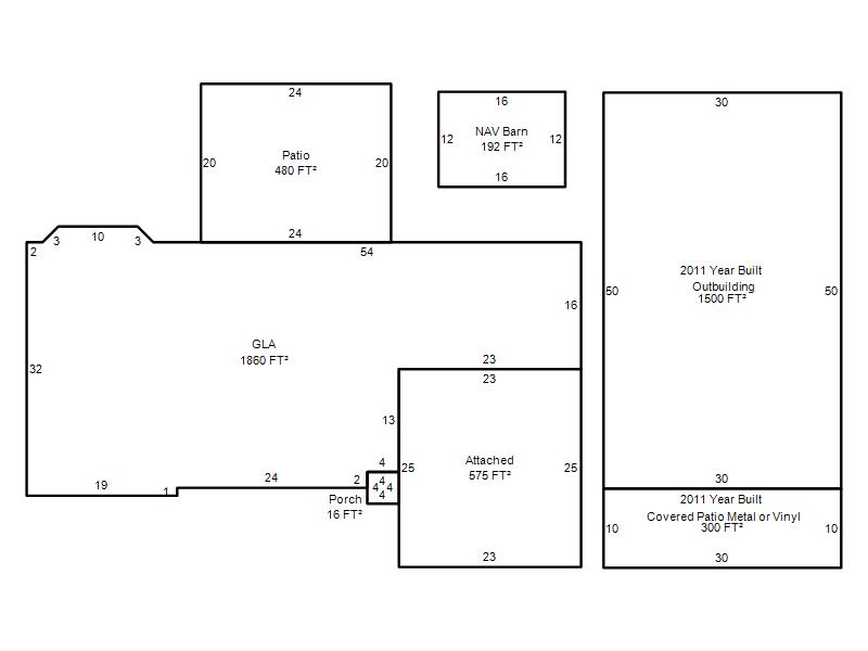
| Photo & Sketch (if available) | Comp Sales (ordered by relevancy) |
|
||||||||||||||||||
|
||||||||||||||||||||
| Value History (*The County Treasurer 405-713-1300 posts & collects actual tax amounts. Contact information HERE) | |||||||||||||
|---|---|---|---|---|---|---|---|---|---|---|---|---|---|
| Year | Market Value | Taxable Mkt Value | Gross Assessed | Exemption | Net Assessed | Millage | Est. Tax | Tax Savings | |||||
|
2026 |
384,000 |
278,052 |
30,584 |
1,000 |
29,584 |
114.35 |
$3,383 |
$1,447 |
|||||
|
2025 |
362,000 |
269,954 |
29,694 |
1,000 |
28,694 |
114.35 |
$3,281 |
$1,272 |
|||||
|
2024 |
346,500 |
262,092 |
28,829 |
1,000 |
27,829 |
116.19 |
$3,234 |
$1,195 |
|||||
|
2023 |
295,500 |
254,459 |
27,990 |
1,000 |
26,990 |
116.77 |
$3,152 |
$644 |
|||||
|
2022 |
263,000 |
247,048 |
27,174 |
1,000 |
26,174 |
114.81 |
$3,005 |
$316 |
|||||
| Property Account Status/Adjustments/Exemptions | ||
|---|---|---|
| Account # | Exemption Description | Amount |
|
R183351080 |
Homestead |
1,000 |
|
R183351080 |
3% Cap Homestead |
0 |
| Property Deed Transaction History (Recorded in the County Clerk's Office) | |||||||
|---|---|---|---|---|---|---|---|
| Date | Type | Book | Page | Price | Grantor | Grantee | |
|
11/22/2005 |
|
Deeds |
$152,500 |
DUNCAN JO T TRS DUNCAN JO T FAMILY TRUST |
DEMIER SERGIO & DEBRA K |
||
|
3/29/1995 |
|
Historical |
$0 |
DUNCAN JO T |
DUNCAN JO T TRS |
||
|
3/30/1988 |
|
Historical |
$0 |
DUNCAN MARION CLAUDE & JO T |
DUNCAN JO T |
||
|
10/1/1973 |
|
Historical |
$0 |
|
DUNCAN MARION CLAUDE & JO T |
||
| Last Mailed Notice of Value (N.O.V.) Information/History | ||||||||
|---|---|---|---|---|---|---|---|---|
| Year | Date | Market Value | Taxable Market Value | Gross Assessed | Exemption | Net Assessed | ||
|
2026 |
02/06/2026 |
384,000 |
278,052 |
30,584 |
1,000 |
29,584 |
||
|
2025 |
01/31/2025 |
362,000 |
269,954 |
29,694 |
1,000 |
28,694 |
||
|
2024 |
01/22/2024 |
346,500 |
262,092 |
28,829 |
1,000 |
27,829 |
||
|
2023 |
01/23/2023 |
295,500 |
254,459 |
27,990 |
1,000 |
26,990 |
||
|
2022 |
02/22/2022 |
263,000 |
247,048 |
27,174 |
1,000 |
26,174 |
||
| Property Building Permit History | ||||||
|---|---|---|---|---|---|---|
| Issued | Permit # | Provided by | Bldg # | Description | Est Construction Cost | Status |
|
12/1/2010 |
10417392 |
EDMOND |
1 |
Storage Buil |
19,000 |
Inactive |
| Click button on building number to access detailed information: | ||||||
|---|---|---|---|---|---|---|
| Bldg # | Vacant/Improved Land | Bldg Description | Year Built | SqFt | # Stories | |
|
1 |
Improved |
Ranch 1 Story |
1973 |
1,860 |
1 Stories |
|