|
|
|
| Larry Stein Oklahoma County Assessor (405) 713-1200 - Public Access System |
|
|
|
|
|
|
| Real Property Display - Screen Produced 4/8/2026 8:16:25 AM | ||||
|---|---|---|---|---|
| Account: R183351200 | Type: Residential | Location: |
2121 MESA TRL |
|
| Building Name/Occupant: |
|
EDMOND |
||
| Owner Name 1: | ANDERSON BILL R & JOYCE G |
Parcel PIN#: |
4640-18-335-1200 |
|
| Owner Name 2: | 1/4 section #: |
4640 |
||
| Owner Name 3: | Parent Acct: |
|
||
| Billing Address: | PO BOX 30117 | Tax District: |
|
|
| City, State, Zip | EDMOND, OK 73003-0002 | School System: |
Deer Creek #6 |
|
|
Country: (If noted) |
Land Size: |
2.9800 Acres |
||
|
Land Value: 85,106 |
|
|||
|
Sect 10-T14N-R3W Qtr NW |
SORGHUM MILL ESTATES
Block
003
Lot
004
|
|||
| Full Legal Description: SORGHUM MILL ESTATES 003 004 |
| Photo & Sketch (if available) | Comp Sales (ordered by relevancy) |
|
||||||||||||||||||
|
||||||||||||||||||||
| Value History (*The County Treasurer 405-713-1300 posts & collects actual tax amounts. Contact information HERE) | |||||||||||||
|---|---|---|---|---|---|---|---|---|---|---|---|---|---|
| Year | Market Value | Taxable Mkt Value | Gross Assessed | Exemption | Net Assessed | Millage | Est. Tax | Tax Savings | |||||
|
2026 |
428,000 |
273,698 |
30,105 |
1,000 |
29,105 |
114.35 |
$3,328 |
$2,055 |
|||||
|
2025 |
403,500 |
265,727 |
29,229 |
1,000 |
28,229 |
114.35 |
$3,228 |
$1,847 |
|||||
|
2024 |
372,500 |
257,988 |
28,378 |
1,000 |
27,378 |
116.19 |
$3,181 |
$1,580 |
|||||
|
2023 |
329,000 |
250,474 |
27,551 |
1,000 |
26,551 |
116.77 |
$3,100 |
$1,125 |
|||||
|
2022 |
282,000 |
243,179 |
26,749 |
1,000 |
25,749 |
114.81 |
$2,956 |
$605 |
|||||
| Property Account Status/Adjustments/Exemptions | ||
|---|---|---|
| Account # | Exemption Description | Amount |
|
R183351200 |
Homestead |
1,000 |
|
R183351200 |
3% Cap Homestead |
0 |
| Property Deed Transaction History (Recorded in the County Clerk's Office) | |||||||
|---|---|---|---|---|---|---|---|
| Date | Type | Book | Page | Price | Grantor | Grantee | |
|
6/24/1992 |
|
Historical |
$0 |
ANDERSON JOYCE GAYLE |
ANDERSON BILL R & JOYCE G |
||
|
6/29/1988 |
|
Historical |
$0 |
ANDERSON BILL R & JOYCE G |
ANDERSON JOYCE GAYLE |
||
|
3/1/1976 |
|
Historical |
$0 |
|
ANDERSON BILL R & JOYCE G |
||
| Last Mailed Notice of Value (N.O.V.) Information/History | ||||||||
|---|---|---|---|---|---|---|---|---|
| Year | Date | Market Value | Taxable Market Value | Gross Assessed | Exemption | Net Assessed | ||
|
2026 |
02/06/2026 |
428,000 |
273,698 |
30,105 |
1,000 |
29,105 |
||
|
2025 |
01/31/2025 |
403,500 |
265,727 |
29,229 |
1,000 |
28,229 |
||
|
2024 |
01/22/2024 |
372,500 |
257,988 |
28,378 |
1,000 |
27,378 |
||
|
2023 |
01/23/2023 |
329,000 |
250,474 |
27,551 |
1,000 |
26,551 |
||
|
2022 |
02/22/2022 |
282,000 |
243,179 |
26,749 |
1,000 |
25,749 |
||
| Property Building Permit History | |||||||||||
|---|---|---|---|---|---|---|---|---|---|---|---|
| Issued | Permit # | Provided by | Bldg # | Description | Est Construction Cost | Status | |||||
| No Building Permit records returned. | |||||||||||
| Click button on building number to access detailed information: | ||||||
|---|---|---|---|---|---|---|
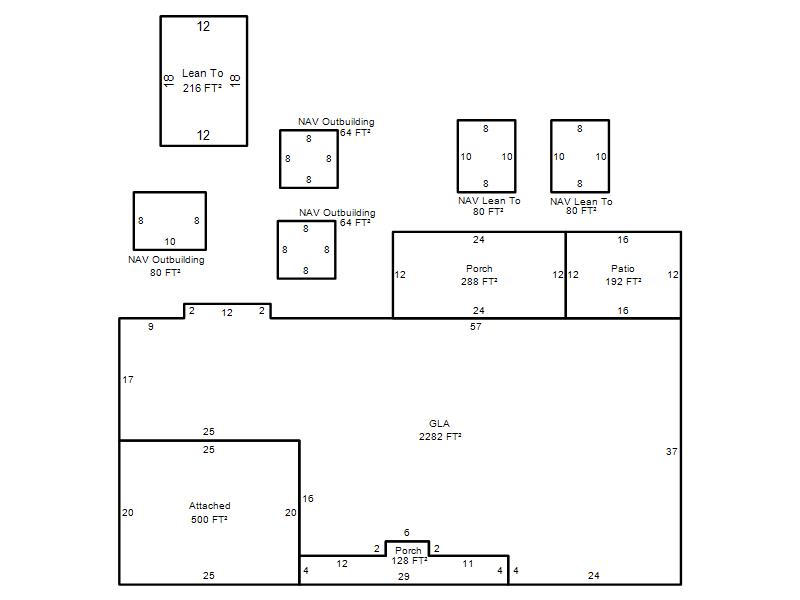
| Bldg # | Vacant/Improved Land | Bldg Description | Year Built | SqFt | # Stories | |
|
1 |
Improved |
Ranch 1 Story |
1974 |
2,282 |
1 Stories |
|