|
|
|
| Larry Stein Oklahoma County Assessor (405) 713-1200 - Public Access System |
|
|
|
|
|
|
| Real Property Display - Screen Produced 4/8/2026 8:15:17 AM | ||||
|---|---|---|---|---|
| Account: R183351420 | Type: Residential | Location: |
2212 W SORGHUM MILL RD |
|
| Building Name/Occupant: |
|
EDMOND |
||
| Owner Name 1: | GILL RICHARD LEE |
Parcel PIN#: |
4640-18-335-1420 |
|
| Owner Name 2: | 1/4 section #: |
4640 |
||
| Owner Name 3: | Parent Acct: |
|
||
| Billing Address: | 4550 SEVEN COVES RD | Tax District: |
|
|
| City, State, Zip | TEMPLE, TX 76502 | School System: |
Deer Creek #6 |
|
|
Country: (If noted) |
UNITED STATES |
Land Size: |
2.5500 Acres |
|
|
Land Value: 72,825 |
|
|||
|
Sect 10-T14N-R3W Qtr NW |
SORGHUM MILL ESTATES
Block
004
Lot
001
|
|||
| Full Legal Description: SORGHUM MILL ESTATES 004 001 |
| Photo & Sketch (if available) | Comp Sales (ordered by relevancy) |
|
||||||||||||||||||
|
||||||||||||||||||||
| Value History (*The County Treasurer 405-713-1300 posts & collects actual tax amounts. Contact information HERE) | |||||||||||||
|---|---|---|---|---|---|---|---|---|---|---|---|---|---|
| Year | Market Value | Taxable Mkt Value | Gross Assessed | Exemption | Net Assessed | Millage | Est. Tax | Tax Savings | |||||
|
2026 |
508,000 |
417,342 |
45,907 |
0 |
45,907 |
114.35 |
$5,250 |
$1,140 |
|||||
|
2025 |
483,000 |
397,469 |
43,720 |
0 |
43,720 |
114.35 |
$5,000 |
$1,076 |
|||||
|
2024 |
447,500 |
378,542 |
41,638 |
0 |
41,638 |
116.19 |
$4,838 |
$881 |
|||||
|
2023 |
392,500 |
360,517 |
39,656 |
0 |
39,656 |
116.77 |
$4,631 |
$411 |
|||||
|
2022 |
346,000 |
343,350 |
37,768 |
0 |
37,768 |
114.81 |
$4,336 |
$33 |
|||||
| Property Account Status/Adjustments/Exemptions | ||
|---|---|---|
| Account # | Exemption Description | Amount |
|
R183351420 |
5% Capped Account |
0 |
| Property Deed Transaction History (Recorded in the County Clerk's Office) | ||||||||||
|---|---|---|---|---|---|---|---|---|---|---|
| Date | Type | Book | Page | Price | Grantor | Grantee | ||||
|
7/12/2016 |
|
Hmstd Off & |
$0 |
GILL DANNIELLE DLYNN |
GILL RICHARD LEE |
|||||
|
7/21/2014 |
|
Deeds |
$280,000 |
TATE NORMAN & TINA |
GILL RICHARD LEE |
|||||
|
11/29/2001 |
|
Deeds |
$0 |
TATE NORMAN GRIFFITH RUTH |
TATE NORMAN & TINA |
|||||
|
12/18/2000 |
|
Hmstd Off & |
$0 |
TOLLETT ALTA FAYE |
TATE NORMAN GRIFFITH RUTH |
|||||
|
10/28/1999 |
|
Deeds |
$0 |
TOLLETT C E & ALTA F TOLLETT C E & ALTA F |
TOLLETT ALTA FAYE |
|||||
| Last Mailed Notice of Value (N.O.V.) Information/History | ||||||||
|---|---|---|---|---|---|---|---|---|
| Year | Date | Market Value | Taxable Market Value | Gross Assessed | Exemption | Net Assessed | ||
|
2026 |
02/06/2026 |
508,000 |
417,342 |
45,907 |
0 |
45,907 |
||
|
2025 |
01/31/2025 |
483,000 |
397,469 |
43,720 |
0 |
43,720 |
||
|
2024 |
01/22/2024 |
447,500 |
378,542 |
41,638 |
0 |
41,638 |
||
|
2023 |
01/23/2023 |
392,500 |
360,517 |
39,656 |
0 |
39,656 |
||
|
2022 |
02/22/2022 |
346,000 |
343,350 |
37,768 |
0 |
37,768 |
||
| Property Building Permit History | |||||||||||
|---|---|---|---|---|---|---|---|---|---|---|---|
| Issued | Permit # | Provided by | Bldg # | Description | Est Construction Cost | Status | |||||
| No Building Permit records returned. | |||||||||||
| Click button on building number to access detailed information: | ||||||
|---|---|---|---|---|---|---|
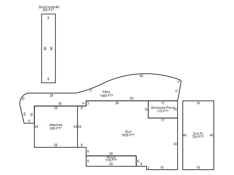
| Bldg # | Vacant/Improved Land | Bldg Description | Year Built | SqFt | # Stories | |
|
1 |
Improved |
1½ Story Fin |
1975 |
2,546 |
1.5 Stories |
|