|
|
|
| Larry Stein Oklahoma County Assessor (405) 713-1200 - Public Access System |
|
|
|
|
|
|
| Real Property Display - Screen Produced 4/8/2026 8:13:43 AM | ||||
|---|---|---|---|---|
| Account: R183351560 | Type: Residential | Location: |
1921 FOREST RD |
|
| Building Name/Occupant: |
|
EDMOND |
||
| Owner Name 1: | SHIELDS CARENZA A & STEVEN D |
Parcel PIN#: |
4640-18-335-1560 |
|
| Owner Name 2: | 1/4 section #: |
4640 |
||
| Owner Name 3: | Parent Acct: |
|
||
| Billing Address: | 1921 FOREST RD | Tax District: |
|
|
| City, State, Zip | EDMOND, OK 73025-2862 | School System: |
Deer Creek #6 |
|
|
Country: (If noted) |
Land Size: |
2.2900 Acres |
||
|
Land Value: 65,400 |
|
|||
|
Sect 10-T14N-R3W Qtr NW |
SORGHUM MILL ESTATES
Block
004
Lot
008
|
|||
| Full Legal Description: SORGHUM MILL ESTATES 004 008 |
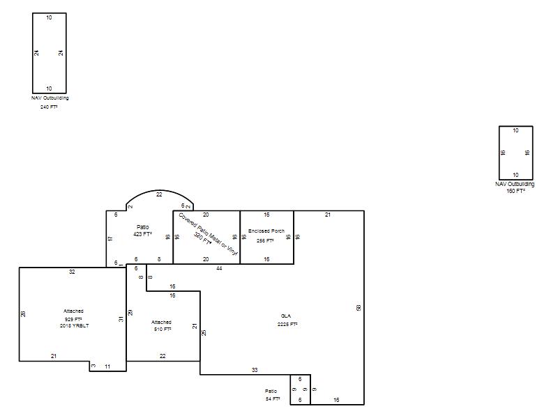
| Photo & Sketch (if available) | Comp Sales (ordered by relevancy) |
|
||||||||||||||||||
|
||||||||||||||||||||
| Value History (*The County Treasurer 405-713-1300 posts & collects actual tax amounts. Contact information HERE) | |||||||||||||
|---|---|---|---|---|---|---|---|---|---|---|---|---|---|
| Year | Market Value | Taxable Mkt Value | Gross Assessed | Exemption | Net Assessed | Millage | Est. Tax | Tax Savings | |||||
|
2026 |
479,500 |
332,456 |
36,570 |
1,000 |
35,570 |
114.35 |
$4,067 |
$1,964 |
|||||
|
2025 |
453,500 |
322,773 |
35,504 |
1,000 |
34,504 |
114.35 |
$3,946 |
$1,759 |
|||||
|
2024 |
415,000 |
313,372 |
34,469 |
1,000 |
33,469 |
116.19 |
$3,889 |
$1,415 |
|||||
|
2023 |
367,000 |
304,245 |
33,466 |
1,000 |
32,466 |
116.77 |
$3,791 |
$923 |
|||||
|
2022 |
319,500 |
295,384 |
32,491 |
1,000 |
31,491 |
114.81 |
$3,616 |
$419 |
|||||
| Property Account Status/Adjustments/Exemptions | ||
|---|---|---|
| Account # | Exemption Description | Amount |
|
R183351560 |
Homestead |
1,000 |
|
R183351560 |
3% Cap Homestead |
0 |
| Property Deed Transaction History (Recorded in the County Clerk's Office) | |||||||
|---|---|---|---|---|---|---|---|
| Date | Type | Book | Page | Price | Grantor | Grantee | |
|
2/8/2014 |
|
Hmstd Off & |
$0 |
HIGH POINT LLC |
SHIELDS CARENZA A & STEVEN D |
||
|
12/28/2012 |
|
Deeds |
$130,000 |
VERMILYEA ROBERT M & ELIZABETH |
HIGH POINT LLC |
||
|
4/3/1987 |
|
Historical |
$125,000 |
KILLORIN BERNARD H JR & R S |
VERMILYEA ROBERT M & ELIZABETH |
||
|
10/1/1978 |
|
Historical |
$0 |
|
KILLORIN BERNARD H JR & R S |
||
| Last Mailed Notice of Value (N.O.V.) Information/History | ||||||||
|---|---|---|---|---|---|---|---|---|
| Year | Date | Market Value | Taxable Market Value | Gross Assessed | Exemption | Net Assessed | ||
|
2026 |
02/06/2026 |
479,500 |
332,456 |
36,570 |
1,000 |
35,570 |
||
|
2025 |
01/31/2025 |
453,500 |
322,773 |
35,504 |
1,000 |
34,504 |
||
|
2024 |
01/22/2024 |
415,000 |
313,372 |
34,469 |
1,000 |
33,469 |
||
|
2023 |
01/23/2023 |
367,000 |
304,245 |
33,466 |
1,000 |
32,466 |
||
|
2022 |
02/22/2022 |
319,500 |
295,384 |
32,491 |
1,000 |
31,491 |
||
| Property Building Permit History | ||||||
|---|---|---|---|---|---|---|
| Issued | Permit # | Provided by | Bldg # | Description | Est Construction Cost | Status |
|
8/14/2017 |
10496854 |
EDMOND |
1 |
Garage |
100,000 |
Inactive |
|
6/5/2013 |
10452791 |
EDMOND |
1 |
Remodeled |
15,000 |
Inactive |
| Click button on building number to access detailed information: | ||||||
|---|---|---|---|---|---|---|
| Bldg # | Vacant/Improved Land | Bldg Description | Year Built | SqFt | # Stories | |
|
1 |
Improved |
Ranch 1 Story |
1973 |
2,225 |
1 Stories |
|