|
|
|
| Larry Stein Oklahoma County Assessor (405) 713-1200 - Public Access System |
|
|
|
|
|
|
| Real Property Display - Screen Produced 4/8/2026 8:16:24 AM | ||||
|---|---|---|---|---|
| Account: R183351600 | Type: Residential | Location: |
1821 FOREST RD |
|
| Building Name/Occupant: |
|
EDMOND |
||
| Owner Name 1: | PARKER JOSEPH B & STEPHANIE A |
Parcel PIN#: |
4640-18-335-1600 |
|
| Owner Name 2: | 1/4 section #: |
4640 |
||
| Owner Name 3: | Parent Acct: |
|
||
| Billing Address: | 1821 FOREST RD | Tax District: |
|
|
| City, State, Zip | EDMOND, OK 73025-2855 | School System: |
Deer Creek #6 |
|
|
Country: (If noted) |
Land Size: |
2.4000 Acres |
||
|
Land Value: 68,542 |
|
|||
|
Sect 10-T14N-R3W Qtr NW |
SORGHUM MILL ESTATES
Block
004
Lot
010
|
|||
| Full Legal Description: SORGHUM MILL ESTATES 004 010 |
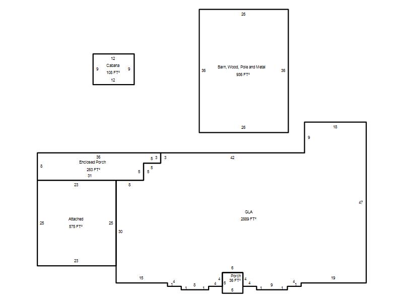
| Photo & Sketch (if available) | Comp Sales (ordered by relevancy) |
|
||||||||||||||||||
|
||||||||||||||||||||
| Value History (*The County Treasurer 405-713-1300 posts & collects actual tax amounts. Contact information HERE) | |||||||||||||
|---|---|---|---|---|---|---|---|---|---|---|---|---|---|
| Year | Market Value | Taxable Mkt Value | Gross Assessed | Exemption | Net Assessed | Millage | Est. Tax | Tax Savings | |||||
|
2026 |
573,500 |
573,500 |
63,085 |
0 |
63,085 |
114.35 |
$7,214 |
$0 |
|||||
|
2025 |
537,500 |
221,243 |
24,336 |
1,000 |
23,336 |
114.35 |
$2,669 |
$4,092 |
|||||
|
2024 |
502,000 |
221,243 |
24,336 |
1,000 |
23,336 |
116.19 |
$2,711 |
$3,705 |
|||||
|
2023 |
449,500 |
221,243 |
24,336 |
1,000 |
23,336 |
116.77 |
$2,725 |
$3,049 |
|||||
|
2022 |
394,500 |
221,243 |
24,336 |
1,000 |
23,336 |
114.81 |
$2,679 |
$2,303 |
|||||
| Property Account Status/Adjustments/Exemptions | ||||||
|---|---|---|---|---|---|---|
| Account # | Exemption Description | Amount | ||||
| No adjustment/exemption records returned. | ||||||
| Property Deed Transaction History (Recorded in the County Clerk's Office) | |||||||
|---|---|---|---|---|---|---|---|
| Date | Type | Book | Page | Price | Grantor | Grantee | |
|
11/14/2025 |
|
Deeds |
$286,000 |
PRICE J L & BILLIE JEANNE TRS |
PARKER JOSEPH B & STEPHANIE A |
||
|
8/21/2009 |
|
Deeds |
$0 |
PRICE J L & BILLIE JEANNE |
PRICE J L & BILLIE JEANNE TRS |
||
|
1/29/2003 |
|
Deeds |
$0 |
PRICE J L BILLIE JEANNE |
PRICE J L BILLIE JEANE |
||
|
11/10/1987 |
|
Historical |
$0 |
PRICE BILLIE J |
PRICE J L & BILLIE JEANNE |
||
|
6/1/1978 |
|
Historical |
$0 |
|
PRICE BILLIE J |
||
| Last Mailed Notice of Value (N.O.V.) Information/History | ||||||||
|---|---|---|---|---|---|---|---|---|
| Year | Date | Market Value | Taxable Market Value | Gross Assessed | Exemption | Net Assessed | ||
|
2026 |
02/06/2026 |
573,500 |
573,500 |
63,085 |
0 |
63,085 |
||
|
2025 |
01/31/2025 |
537,500 |
221,243 |
24,336 |
1,000 |
23,336 |
||
|
2024 |
01/22/2024 |
502,000 |
221,243 |
24,336 |
1,000 |
23,336 |
||
|
2023 |
01/23/2023 |
449,500 |
221,243 |
24,336 |
1,000 |
23,336 |
||
|
2022 |
02/22/2022 |
394,500 |
221,243 |
24,336 |
1,000 |
23,336 |
||
| Property Building Permit History | |||||||||||
|---|---|---|---|---|---|---|---|---|---|---|---|
| Issued | Permit # | Provided by | Bldg # | Description | Est Construction Cost | Status | |||||
| No Building Permit records returned. | |||||||||||
| Click button on building number to access detailed information: | ||||||
|---|---|---|---|---|---|---|
| Bldg # | Vacant/Improved Land | Bldg Description | Year Built | SqFt | # Stories | |
|
1 |
Improved |
Ranch 1 Story |
1973 |
2,889 |
1 Stories |
|