|
|
|
| Larry Stein Oklahoma County Assessor (405) 713-1200 - Public Access System |
|
|
|
|
|
|
| Real Property Display - Screen Produced 4/7/2026 8:31:42 AM | ||||
|---|---|---|---|---|
| Account: R202841070 | Type: Residential | Location: |
2908 CEDARBEND CT |
|
| Building Name/Occupant: |
|
EDMOND |
||
| Owner Name 1: | BOWERS KT THOMPSON TRS |
Parcel PIN#: |
4654-20-284-1070 |
|
| Owner Name 2: | DEFIORE JENNIFER DAWN TRUST | 1/4 section #: |
4654 |
|
| Owner Name 3: | Parent Acct: |
4654-16-859-0279 |
||
| Billing Address: | 2600 LILLEHAMMER DR | Tax District: |
|
|
| City, State, Zip | EDMOND, OK 73034 | School System: |
Edmond #12 |
|
|
Country: (If noted) |
Land Size: |
0.2297 Acres |
||
|
Land Value: 48,100 |
|
|||
|
Sect 14-T14N-R3W Qtr SE |
STONEBROOK II AT COFFEE CREEK
Block
001
Lot
008
|
|||
| Full Legal Description: STONEBROOK II AT COFFEE CREEK 001 008 |
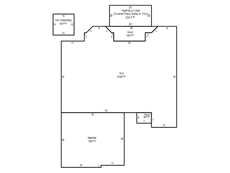
| Photo & Sketch (if available) | Comp Sales (ordered by relevancy) |
|
||||||||||||||||||
|
||||||||||||||||||||
| Value History (*The County Treasurer 405-713-1300 posts & collects actual tax amounts. Contact information HERE) | |||||||||||||
|---|---|---|---|---|---|---|---|---|---|---|---|---|---|
| Year | Market Value | Taxable Mkt Value | Gross Assessed | Exemption | Net Assessed | Millage | Est. Tax | Tax Savings | |||||
|
2026 |
351,500 |
313,963 |
34,535 |
0 |
34,535 |
105.16 |
$3,632 |
$434 |
|||||
|
2025 |
344,500 |
299,013 |
32,891 |
0 |
32,891 |
105.16 |
$3,459 |
$526 |
|||||
|
2024 |
332,500 |
284,775 |
31,324 |
0 |
31,324 |
105.03 |
$3,290 |
$551 |
|||||
|
2023 |
324,500 |
271,215 |
29,833 |
0 |
29,833 |
104.24 |
$3,110 |
$611 |
|||||
|
2022 |
283,500 |
258,300 |
28,413 |
0 |
28,413 |
104.64 |
$2,973 |
$290 |
|||||
| Property Account Status/Adjustments/Exemptions | ||
|---|---|---|
| Account # | Exemption Description | Amount |
|
R202841070 |
5% Capped Account |
0 |
| Property Deed Transaction History (Recorded in the County Clerk's Office) | ||||||||||
|---|---|---|---|---|---|---|---|---|---|---|
| Date | Type | Book | Page | Price | Grantor | Grantee | ||||
|
9/8/2017 |
|
Deeds |
$235,000 |
HEROD SHELLY RENEE TRS HEROD SHELLY RENEE REV TRUST |
PORTER JENNIFER A |
|||||
|
9/8/2017 |
|
Hmstd Off & |
$0 |
PORTER JENNIFER A |
BOWERS KT THOMPSON TRS |
|||||
|
1/7/2016 |
|
Deeds |
$0 |
HEROD SHELLY R |
HEROD SHELLY RENEE TRS HEROD SHELLY RENEE REV TRUST |
|||||
|
2/4/2015 |
|
Deeds |
$0 |
HEROD PETER A & SHELLY R |
HEROD SHELLY R |
|||||
|
8/30/2013 |
|
Deeds |
$225,000 |
MURRY KIM |
HEROD PETER A & SHELLY R |
|||||
| Last Mailed Notice of Value (N.O.V.) Information/History | ||||||||
|---|---|---|---|---|---|---|---|---|
| Year | Date | Market Value | Taxable Market Value | Gross Assessed | Exemption | Net Assessed | ||
|
2026 |
02/06/2026 |
351,500 |
313,963 |
34,535 |
0 |
34,535 |
||
|
2025 |
01/31/2025 |
344,500 |
299,013 |
32,891 |
0 |
32,891 |
||
|
2024 |
01/22/2024 |
332,500 |
284,775 |
31,324 |
0 |
31,324 |
||
|
2023 |
01/23/2023 |
324,500 |
271,215 |
29,833 |
0 |
29,833 |
||
|
2022 |
02/22/2022 |
283,500 |
258,300 |
28,413 |
0 |
28,413 |
||
| Property Building Permit History | ||||||
|---|---|---|---|---|---|---|
| Issued | Permit # | Provided by | Bldg # | Description | Est Construction Cost | Status |
|
1/1/2003 |
10275341 |
EDMOND |
1 |
Main Dwellin |
2,003 |
Inactive |
|
9/30/2002 |
10275342 |
EDMOND |
1 |
Main Dwellin |
150,000 |
Inactive |
| Click button on building number to access detailed information: | ||||||
|---|---|---|---|---|---|---|
| Bldg # | Vacant/Improved Land | Bldg Description | Year Built | SqFt | # Stories | |
|
1 |
Improved |
Ranch 1 Story |
2002 |
2,129 |
1 Stories |
|