|
|
|
| Larry Stein Oklahoma County Assessor (405) 713-1200 - Public Access System |
|
|
|
|
|
|
| Real Property Display - Screen Produced 3/31/2026 11:37:34 PM | ||||
|---|---|---|---|---|
| Account: R204341130 | Type: Residential | Location: |
21970 PLEASANT RIDGE RD |
|
| Building Name/Occupant: |
|
UNINCORPORATED |
||
| Owner Name 1: | APPLING WILLIAM T |
Parcel PIN#: |
4668-20-434-1130 |
|
| Owner Name 2: | 1/4 section #: |
4668 |
||
| Owner Name 3: | Parent Acct: |
4668-25-917-2000 |
||
| Billing Address: | 21970 PLEASANT RIDGE RD | Tax District: |
|
|
| City, State, Zip | EDMOND, OK 73012 | School System: |
Deer Creek #6 |
|
|
Country: (If noted) |
Land Size: |
0.1553 Acres |
||
|
Land Value: 29,563 |
|
|||
|
Sect 17-T14N-R3W Qtr NW |
SETTLERS CROSSING NORTH
Block
005
Lot
015
|
|||
| Full Legal Description: SETTLERS CROSSING NORTH 005 015 |
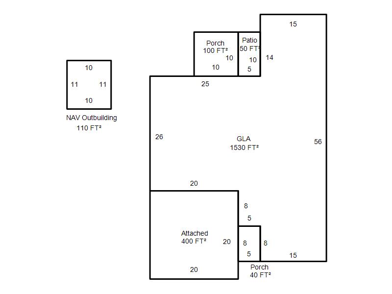
| Photo & Sketch (if available) | Comp Sales (ordered by relevancy) |
|
||||||||||||||||||
|
||||||||||||||||||||
| Value History (*The County Treasurer 405-713-1300 posts & collects actual tax amounts. Contact information HERE) | |||||||||||||
|---|---|---|---|---|---|---|---|---|---|---|---|---|---|
| Year | Market Value | Taxable Mkt Value | Gross Assessed | Exemption | Net Assessed | Millage | Est. Tax | Tax Savings | |||||
|
2026 |
250,000 |
250,000 |
27,500 |
1,000 |
26,500 |
114.35 |
$3,030 |
$114 |
|||||
|
2025 |
250,000 |
246,128 |
27,073 |
1,000 |
26,073 |
114.35 |
$2,982 |
$163 |
|||||
|
2024 |
243,500 |
238,960 |
26,285 |
1,000 |
25,285 |
116.19 |
$2,938 |
$174 |
|||||
|
2023 |
232,000 |
232,000 |
25,520 |
1,000 |
24,520 |
116.77 |
$2,863 |
$117 |
|||||
|
2022 |
196,500 |
186,873 |
20,555 |
0 |
20,555 |
114.81 |
$2,360 |
$122 |
|||||
| Property Account Status/Adjustments/Exemptions | ||
|---|---|---|
| Account # | Exemption Description | Amount |
|
R204341130 |
3% Cap Homestead |
0 |
|
R204341130 |
Homestead |
1,000 |
| Property Deed Transaction History (Recorded in the County Clerk's Office) | ||||||||||
|---|---|---|---|---|---|---|---|---|---|---|
| Date | Type | Book | Page | Price | Grantor | Grantee | ||||
|
8/17/2022 |
|
Deeds |
$244,000 |
CAMPBELL GRETCHEN |
APPLING WILLIAM T |
|||||
|
3/15/2019 |
|
Hmstd Off & |
$0 |
CAMPBELL PAUL M |
CAMPBELL GRETCHEN |
|||||
|
3/15/2019 |
|
Hmstd Off & |
$0 |
CAMPBELL PAUL |
CAMPBELL GRETCHEN |
|||||
|
11/30/2016 |
|
Deeds |
$156,000 |
COOK KATHLEEN E |
CAMPBELL PAUL M |
|||||
|
7/16/2003 |
|
Mult Parcel |
$480,000 |
SETTLERS CROSSING LLC |
COLONY HOMES INC |
|||||
| Last Mailed Notice of Value (N.O.V.) Information/History | ||||||||
|---|---|---|---|---|---|---|---|---|
| Year | Date | Market Value | Taxable Market Value | Gross Assessed | Exemption | Net Assessed | ||
|
2026 |
02/06/2026 |
250,000 |
250,000 |
27,500 |
1,000 |
26,500 |
||
|
2025 |
01/31/2025 |
250,000 |
246,128 |
27,073 |
1,000 |
26,073 |
||
|
2024 |
01/22/2024 |
243,500 |
238,960 |
26,285 |
1,000 |
25,285 |
||
|
2023 |
01/23/2023 |
232,000 |
232,000 |
25,520 |
1,000 |
24,520 |
||
|
2022 |
02/22/2022 |
196,500 |
186,873 |
20,555 |
0 |
20,555 |
||
| Property Building Permit History | ||||||
|---|---|---|---|---|---|---|
| Issued | Permit # | Provided by | Bldg # | Description | Est Construction Cost | Status |
|
8/13/2003 |
10282556 |
COUNTY |
1 |
Main Dwellin |
87,200 |
Inactive |
| Click button on building number to access detailed information: | ||||||
|---|---|---|---|---|---|---|
| Bldg # | Vacant/Improved Land | Bldg Description | Year Built | SqFt | # Stories | |
|
1 |
Improved |
Ranch 1 Story |
2003 |
1,530 |
1 Stories |
|