Larry Stein Oklahoma County Assessor (405) 713-1200 - Public Access System
Home Contact Us Guest Book Map Search New Search
Real Property Display - Screen Produced   4/27/2026 8:36:28 AM 
Account: R143769050  Type: Residential

  

Location:

4300 S INDIAN MERIDIAN RD

Building Name/Occupant:

 

OKLAHOMA CITY

Owner Name 1:  LATIMER MARGARET S

Parcel PIN#:

1071-14-376-9050

Owner Name 2:    1/4 section #:

1071

Owner Name 3:    Parent Acct:

 

Billing Address:  4300 S INDIAN MERIDIAN Tax District:

City, State, Zip  CHOCTAW, OK  73020-6042 School System:

Choctaw #4

Country: (If noted)

  

Land Size:

5.0100  Acres

Personal Property

Land Value: 28,056 

Treasurer:

Sect 18-T11N-R1E Qtr SW

 UNPLTD PT SEC 18 11N 1E   Block 000  Lot 000   Subdivision Sales
 Full Legal Description:  UNPLTD PT SEC 18 11N 1E BLK 000 LOT 000 PT SW4 SEC 18 11N 1E BEG 527.40FT N OF SW/C SW4 TH N263.70FT E827.60FT S263.70FT W827.60FT TO BEG CONT 5.01ACRS MORE OR LESS SUBJ TO ESMTS OF RECORD AKA TR 21 CHERRY STONE UNREC

NOTE:  The following sales may or may not be used to determine Fair Market Value

Photo & Sketch (if available) Sales  Sales Report

 17117 SE 59TH ST OKLAHOMA CITY, OK

06/13/2025

 $305,000 

 16715 SE 59TH ST OKLAHOMA CITY, OK

04/22/2022

 $267,500 

 17733 SE 44TH ST OKLAHOMA CITY, OK

11/02/2022

 $195,000 

 4406 MAXINE DR OKLAHOMA CITY, OK

10/13/2023

 $210,000 

 5612 PERMIAN DR OKLAHOMA CITY, OK

07/16/2024

 $282,000 

 16020 CHEROKEE DR CHOCTAW, OK

01/23/2025

 $200,000 

Value History  (*The County Treasurer 405-713-1300 posts & collects actual tax amounts.  Contact information  HERE)
Year Market Value Taxable Mkt Value Gross Assessed Exemption Net Assessed Millage Est. Tax Tax Savings

2026

280,000 

177,463 

19,520 

19,520 

132.37 

$2,584 

$1,493 

2025

291,000 

169,013 

18,591 

18,591 

132.37 

$2,461 

$1,776 

2024

274,000 

160,965 

17,706 

17,706 

131.28 

$2,324 

$1,632 

[1/10]
Property Account Status/Adjustments/Exemptions
Account # Exemption Description Amount

R143769050

5% Capped Account

Property Deed Transaction History   (Recorded in the County Clerk's Office)
Date Type Book Page Price Grantor Grantee

11/12/2019

Deeds

14187

391

 $145,000 

POTHORST DARRELL R

LATIMER MARGARET S

7/11/2013

Deeds

12306

1020

 $140,000 

WYNN ROBERT R & PATRICIA E

POTHORST DARRELL R

9/7/2001

Deeds

8216

122

 $50,000 

FAIRBANKS CAPITAL CORP

WYNN ROBERT R

[1/3]
Last Mailed Notice of Value (N.O.V.) Information/History
Year Date Market Value Taxable Market Value Gross Assessed Exemption Net Assessed

2026

02/06/2026

280,000 

177,463 

19,520 

19,520 

2025

01/31/2025

291,000 

169,013 

18,591 

18,591 

2024

01/22/2024

274,000 

160,965 

17,706 

17,706 

[1/4]
Property Building Permit History
Issued Permit # Provided by Bldg # Description Est Construction Cost Status

10/14/2020

BLDR-2020-05921

1

Other

2,000 

Inactive

10/14/2020

BLDR-2020-05922

1

Other

2,000 

Inactive

4/20/1998

10238118

OKLAHOMA CITY

1

Main Dwellin

106,810 

Inactive

Click button below to access detailed information and additional property photos:
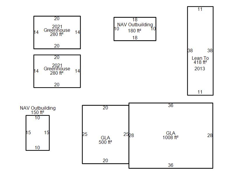
  Bldg # Vacant/Improved Land Bldg Description Year Built SqFt # Stories

Click

1

Improved

Ranch 1 Story

1988

1,508 

1 Stories