|
|
|
| Larry Stein Oklahoma County Assessor (405) 713-1200 - Public Access System |
|
|
|
|
|
|
| Real Property Display - Screen Produced 3/20/2026 6:43:55 PM | ||||
|---|---|---|---|---|
| Account: R206371750 | Type: Residential | Location: |
19400 STONE CRESS CT |
|
| Building Name/Occupant: |
|
OKLAHOMA CITY |
||
| Owner Name 1: | JANDA CHRIS |
Parcel PIN#: |
4683-20-637-1750 |
|
| Owner Name 2: | 1/4 section #: |
4683 |
||
| Owner Name 3: | Parent Acct: |
4683-16-859-0334 |
||
| Billing Address: | 19400 STONE CRESS CT | Tax District: |
|
|
| City, State, Zip | EDMOND , OK 73012-3502 | School System: |
Edmond #12 |
|
|
Country: (If noted) |
Land Size: |
0.2640 Acres |
||
|
Land Value: 55,000 |
|
|||
|
Sect 21-T14N-R3W Qtr SW |
STONEBRIAR SEC ONE
Block
005
Lot
020
|
|||
| Full Legal Description: STONEBRIAR SEC ONE 005 020 |
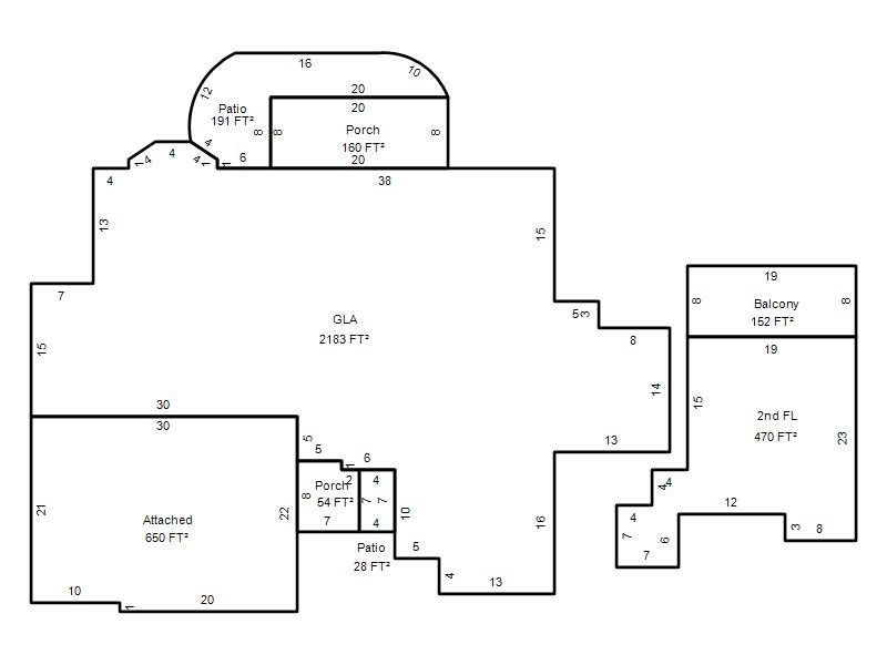
| Photo & Sketch (if available) | Comp Sales (ordered by relevancy) |
|
||||||||||||||||||
|
||||||||||||||||||||
| Value History (*The County Treasurer 405-713-1300 posts & collects actual tax amounts. Contact information HERE) | |||||||||||||
|---|---|---|---|---|---|---|---|---|---|---|---|---|---|
| Year | Market Value | Taxable Mkt Value | Gross Assessed | Exemption | Net Assessed | Millage | Est. Tax | Tax Savings | |||||
|
2025 |
480,500 |
441,227 |
48,534 |
0 |
48,534 |
120.32 |
$5,840 |
$520 |
|||||
|
2024 |
479,500 |
420,217 |
46,223 |
0 |
46,223 |
119.96 |
$5,545 |
$782 |
|||||
|
2023 |
466,000 |
400,207 |
44,022 |
0 |
44,022 |
119.02 |
$5,240 |
$861 |
|||||
|
2022 |
404,000 |
381,150 |
41,926 |
0 |
41,926 |
120.10 |
$5,035 |
$302 |
|||||
|
2021 |
363,000 |
363,000 |
39,930 |
0 |
39,930 |
118.88 |
$4,747 |
$0 |
|||||
| Property Account Status/Adjustments/Exemptions | ||
|---|---|---|
| Account # | Exemption Description | Amount |
|
R206371750 |
5% Capped Account |
0 |
| Property Deed Transaction History (Recorded in the County Clerk's Office) | |||||||
|---|---|---|---|---|---|---|---|
| Date | Type | Book | Page | Price | Grantor | Grantee | |
|
2/5/2018 |
|
Deeds |
$345,000 |
NORAT DIANNE M |
JANDA CHRIS |
||
|
3/20/2009 |
|
Deeds |
$295,000 |
NEAL MCGEE HOMES INC |
NORAT DIANNE M |
||
|
4/24/2008 |
|
Deeds |
$44,000 |
STONEBRIAR DEVELOPMENT LLC |
NEAL MCGEE HOMES INC |
||
| Last Mailed Notice of Value (N.O.V.) Information/History | ||||||||
|---|---|---|---|---|---|---|---|---|
| Year | Date | Market Value | Taxable Market Value | Gross Assessed | Exemption | Net Assessed | ||
|
2026 |
02/06/2026 |
471,000 |
463,288 |
50,960 |
0 |
50,960 |
||
|
2025 |
01/31/2025 |
480,500 |
441,227 |
48,534 |
0 |
48,534 |
||
|
2024 |
01/22/2024 |
479,500 |
420,217 |
46,223 |
0 |
46,223 |
||
|
2023 |
01/23/2023 |
466,000 |
400,207 |
44,022 |
0 |
44,022 |
||
|
2022 |
02/22/2022 |
404,000 |
381,150 |
41,926 |
0 |
41,926 |
||
| Property Building Permit History | ||||||
|---|---|---|---|---|---|---|
| Issued | Permit # | Provided by | Bldg # | Description | Est Construction Cost | Status |
|
6/1/2008 |
10355270 |
OKLAHOMA CITY |
1 |
Foundation |
250,000 |
Inactive |
| Click button on building number to access detailed information: | ||||||
|---|---|---|---|---|---|---|
| Bldg # | Vacant/Improved Land | Bldg Description | Year Built | SqFt | # Stories | |
|
1 |
Improved |
1½ Story Fin |
2008 |
2,653 |
1.5 Stories |
|