|
|
|
| Larry Stein Oklahoma County Assessor (405) 713-1200 - Public Access System |
|
|
|
|
|
|
| Real Property Display - Screen Produced 3/20/2026 8:29:29 PM | ||||
|---|---|---|---|---|
| Account: R207291190 | Type: Residential | Location: |
19533 FIELDSHIRE DR |
|
| Building Name/Occupant: |
|
OKLAHOMA CITY |
||
| Owner Name 1: | ALTERS DAVID G |
Parcel PIN#: |
4683-20-729-1190 |
|
| Owner Name 2: | KENDALL REBECCA | 1/4 section #: |
4683 |
|
| Owner Name 3: | Parent Acct: |
4683-16-859-0334 |
||
| Billing Address: | 19533 FIELDSHIRE DR | Tax District: |
|
|
| City, State, Zip | EDMOND , OK 73012-3579 | School System: |
Edmond #12 |
|
|
Country: (If noted) |
Land Size: |
0.2434 Acres |
||
|
Land Value: 69,549 |
|
|||
|
Sect 21-T14N-R3W Qtr SW |
STONEBRIAR SEC TWO
Block
001
Lot
020
|
|||
| Full Legal Description: STONEBRIAR SEC TWO 001 020 |
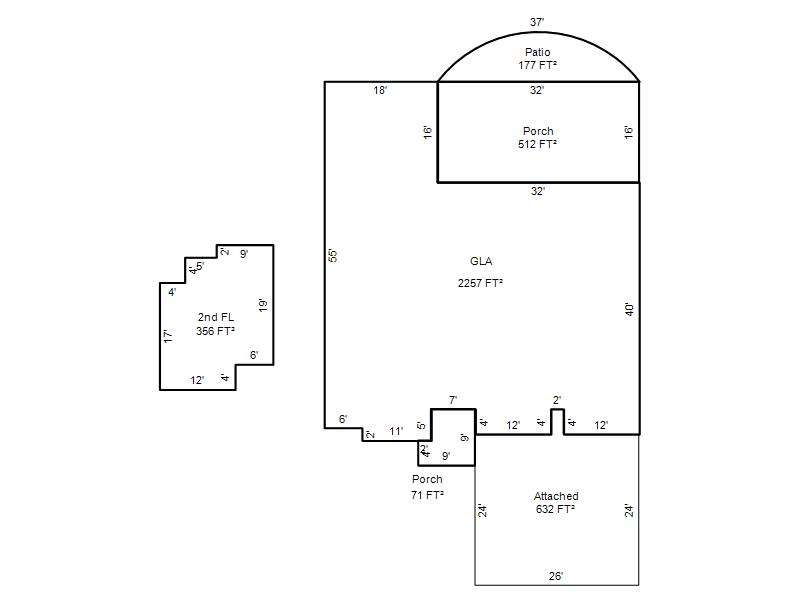
| Photo & Sketch (if available) | Comp Sales (ordered by relevancy) |
|
||||||||||||||||||
|
||||||||||||||||||||
| Value History (*The County Treasurer 405-713-1300 posts & collects actual tax amounts. Contact information HERE) | |||||||||||||
|---|---|---|---|---|---|---|---|---|---|---|---|---|---|
| Year | Market Value | Taxable Mkt Value | Gross Assessed | Exemption | Net Assessed | Millage | Est. Tax | Tax Savings | |||||
|
2025 |
463,000 |
377,341 |
41,506 |
1,000 |
40,506 |
120.32 |
$4,874 |
$1,254 |
|||||
|
2024 |
457,000 |
366,351 |
40,297 |
1,000 |
39,297 |
119.96 |
$4,714 |
$1,316 |
|||||
|
2023 |
431,500 |
355,681 |
39,124 |
1,000 |
38,124 |
119.02 |
$4,538 |
$1,112 |
|||||
|
2022 |
376,000 |
345,322 |
37,985 |
1,000 |
36,985 |
120.10 |
$4,442 |
$525 |
|||||
|
2021 |
336,500 |
335,265 |
36,879 |
1,000 |
35,879 |
118.88 |
$4,265 |
$135 |
|||||
| Property Account Status/Adjustments/Exemptions | ||
|---|---|---|
| Account # | Exemption Description | Amount |
|
R207291190 |
3% Cap Homestead |
0 |
|
R207291190 |
Homestead |
1,000 |
| Property Deed Transaction History (Recorded in the County Clerk's Office) | |||||||
|---|---|---|---|---|---|---|---|
| Date | Type | Book | Page | Price | Grantor | Grantee | |
|
11/25/2019 |
|
Deeds |
$337,000 |
SEITZ SOMER |
ALTERS DAVID G |
||
|
8/1/2013 |
|
Deeds |
$300,000 |
RICE CUSTOM HOMES LLC |
SEITZ SOMER |
||
|
1/10/2013 |
|
Deeds |
$50,000 |
PQR STONEBRIAR LLC |
RICE CUSTOM HOMES LLC |
||
|
12/28/2012 |
|
Mult Parcel |
$150,000 |
STONEBRIAR DEVELOPMENT LLC |
PQR STONEBRIAR LLC |
||
| Last Mailed Notice of Value (N.O.V.) Information/History | ||||||||
|---|---|---|---|---|---|---|---|---|
| Year | Date | Market Value | Taxable Market Value | Gross Assessed | Exemption | Net Assessed | ||
|
2026 |
02/06/2026 |
452,500 |
388,661 |
42,752 |
1,000 |
41,752 |
||
|
2025 |
01/31/2025 |
463,000 |
377,341 |
41,506 |
1,000 |
40,506 |
||
|
2024 |
01/22/2024 |
457,000 |
366,351 |
40,297 |
1,000 |
39,297 |
||
|
2023 |
01/23/2023 |
431,500 |
355,681 |
39,124 |
1,000 |
38,124 |
||
|
2022 |
02/22/2022 |
376,000 |
345,322 |
37,985 |
1,000 |
36,985 |
||
| Property Building Permit History | ||||||
|---|---|---|---|---|---|---|
| Issued | Permit # | Provided by | Bldg # | Description | Est Construction Cost | Status |
|
3/12/2013 |
10451736 |
OKLAHOMA CITY |
1 |
Main Dwellin |
300,000 |
Inactive |
| Click button on building number to access detailed information: | ||||||
|---|---|---|---|---|---|---|
| Bldg # | Vacant/Improved Land | Bldg Description | Year Built | SqFt | # Stories | |
|
1 |
Improved |
1½ Story Fin |
2013 |
2,613 |
1.5 Stories |
|