|
|
|
| Larry Stein Oklahoma County Assessor (405) 713-1200 - Public Access System |
|
|
|
|
|
|
| Real Property Display - Screen Produced 3/25/2026 6:51:39 AM | ||||
|---|---|---|---|---|
| Account: R208661040 | Type: Residential | Location: |
19517 BROOKSHIRE CT |
|
| Building Name/Occupant: |
|
OKLAHOMA CITY |
||
| Owner Name 1: | NEVEZ KARLY |
Parcel PIN#: |
4683-20-866-1040 |
|
| Owner Name 2: | 1/4 section #: |
4683 |
||
| Owner Name 3: | Parent Acct: |
4683-16-859-0334 |
||
| Billing Address: | 19517 BROOKSHIRE CT | Tax District: |
|
|
| City, State, Zip | EDMOND, OK 73012-9765 | School System: |
Edmond #12 |
|
|
Country: (If noted) |
Land Size: |
0.2315 Acres |
||
|
Land Value: 51,439 |
|
|||
|
Sect 21-T14N-R3W Qtr SW |
STONEBRIAR SEC FOUR
Block
002
Lot
001
|
|||
| Full Legal Description: STONEBRIAR SEC FOUR 002 001 |
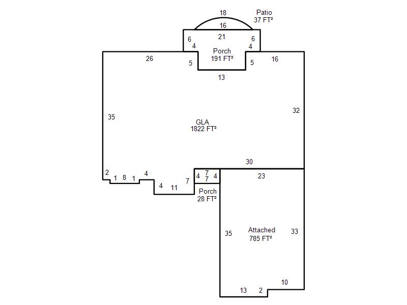
| Photo & Sketch (if available) | Comp Sales (ordered by relevancy) |
|
||||||||||||||||||
|
||||||||||||||||||||
| Value History (*The County Treasurer 405-713-1300 posts & collects actual tax amounts. Contact information HERE) | |||||||||||||
|---|---|---|---|---|---|---|---|---|---|---|---|---|---|
| Year | Market Value | Taxable Mkt Value | Gross Assessed | Exemption | Net Assessed | Millage | Est. Tax | Tax Savings | |||||
|
2025 |
345,500 |
345,500 |
38,005 |
1,000 |
37,005 |
120.32 |
$4,452 |
$120 |
|||||
|
2024 |
339,500 |
275,748 |
30,331 |
1,000 |
29,331 |
119.96 |
$3,519 |
$961 |
|||||
|
2023 |
323,500 |
267,717 |
29,448 |
1,000 |
28,448 |
119.02 |
$3,386 |
$849 |
|||||
|
2022 |
284,000 |
259,920 |
28,590 |
1,000 |
27,590 |
120.10 |
$3,314 |
$438 |
|||||
|
2021 |
253,500 |
252,350 |
27,758 |
1,000 |
26,758 |
118.88 |
$3,181 |
$134 |
|||||
| Property Account Status/Adjustments/Exemptions | ||
|---|---|---|
| Account # | Exemption Description | Amount |
|
R208661040 |
3% Cap Homestead |
0 |
|
R208661040 |
Homestead |
1,000 |
| Property Deed Transaction History (Recorded in the County Clerk's Office) | |||||||
|---|---|---|---|---|---|---|---|
| Date | Type | Book | Page | Price | Grantor | Grantee | |
|
7/18/2024 |
|
Deeds |
$326,000 |
LEWIS PAUL STEPHEN |
NEVEZ KARLY |
||
|
7/11/2023 |
|
Hmstd Off & |
$0 |
LEWIS PAUL S |
LEWIS PAUL STEPHEN |
||
|
10/30/2015 |
|
Deeds |
$234,500 |
CARRIS JORDAN M & KATHRYN K |
LEWIS PAUL S |
||
|
12/10/2010 |
|
Deeds |
$217,500 |
BRASS BRICK HOMES III LLC |
CARRIS JORDAN M & KATHRYN K |
||
|
3/4/2010 |
|
Deeds |
$41,500 |
STONEBRIAR DEVELOPMENT LLC |
BRASS BRICK HOMES III LLC |
||
| Last Mailed Notice of Value (N.O.V.) Information/History | ||||||||
|---|---|---|---|---|---|---|---|---|
| Year | Date | Market Value | Taxable Market Value | Gross Assessed | Exemption | Net Assessed | ||
|
2025 |
01/31/2025 |
345,500 |
345,500 |
38,005 |
0 |
38,005 |
||
|
2024 |
01/22/2024 |
339,500 |
275,748 |
30,331 |
1,000 |
29,331 |
||
|
2024 |
03/01/2024 |
339,500 |
275,748 |
30,331 |
1,000 |
29,331 |
||
|
2023 |
01/23/2023 |
323,500 |
267,717 |
29,448 |
1,000 |
28,448 |
||
|
2022 |
02/22/2022 |
284,000 |
259,920 |
28,590 |
1,000 |
27,590 |
||
| Property Building Permit History | ||||||
|---|---|---|---|---|---|---|
| Issued | Permit # | Provided by | Bldg # | Description | Est Construction Cost | Status |
|
3/26/2010 |
10404894 |
OKLAHOMA CITY |
1 |
Main Dwellin |
235,000 |
Inactive |
| Click button on building number to access detailed information: | ||||||
|---|---|---|---|---|---|---|
| Bldg # | Vacant/Improved Land | Bldg Description | Year Built | SqFt | # Stories | |
|
1 |
Improved |
Ranch 1 Story |
2010 |
1,822 |
1 Stories |
|