|
|
|
| Larry Stein Oklahoma County Assessor (405) 713-1200 - Public Access System |
|
|
|
|
|
|
| Real Property Display - Screen Produced 4/1/2026 9:40:49 AM | ||||
|---|---|---|---|---|
| Account: R201061030 | Type: Residential | Location: |
1905 FAIR MEADOW DR |
|
| Building Name/Occupant: |
|
EDMOND |
||
| Owner Name 1: | HOME SFR BORROWER LLC |
Parcel PIN#: |
4688-20-106-1030 |
|
| Owner Name 2: | 1/4 section #: |
4688 |
||
| Owner Name 3: | C/O HAVENBROOK HOMES | Parent Acct: |
|
|
| Billing Address: | PO BOX 31236 | Tax District: |
|
|
| City, State, Zip | SALT LAKE CITY, UT 84131-0236 | School System: |
Edmond #12 |
|
|
Country: (If noted) |
UNITED STATES |
Land Size: |
0.1515 Acres |
|
|
Land Value: 35,838 |
|
|||
|
Sect 22-T14N-R3W Qtr NW |
CEDAR POINTE II
Block
006
Lot
004
|
|||
| Full Legal Description: CEDAR POINTE II 006 004 |
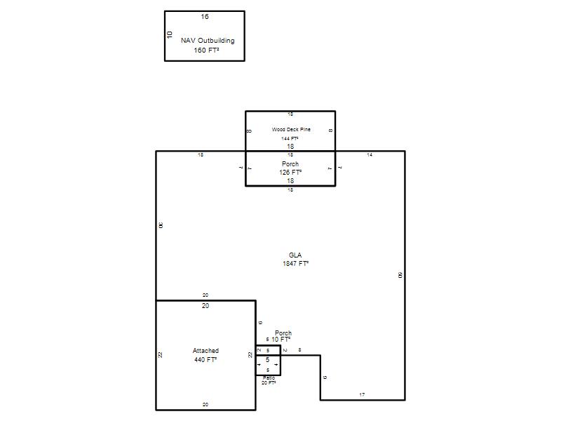
| Photo & Sketch (if available) | Comp Sales (ordered by relevancy) |
|
||||||||||||||||||
|
||||||||||||||||||||
| Value History (*The County Treasurer 405-713-1300 posts & collects actual tax amounts. Contact information HERE) | |||||||||||||
|---|---|---|---|---|---|---|---|---|---|---|---|---|---|
| Year | Market Value | Taxable Mkt Value | Gross Assessed | Exemption | Net Assessed | Millage | Est. Tax | Tax Savings | |||||
|
2026 |
280,500 |
257,808 |
28,358 |
0 |
28,358 |
105.16 |
$2,982 |
$262 |
|||||
|
2025 |
283,000 |
245,532 |
27,008 |
0 |
27,008 |
105.16 |
$2,840 |
$433 |
|||||
|
2024 |
275,500 |
233,840 |
25,721 |
0 |
25,721 |
105.03 |
$2,702 |
$481 |
|||||
|
2023 |
264,500 |
222,705 |
24,497 |
0 |
24,497 |
104.24 |
$2,554 |
$479 |
|||||
|
2022 |
229,000 |
212,100 |
23,331 |
0 |
23,331 |
104.64 |
$2,441 |
$195 |
|||||
| Property Account Status/Adjustments/Exemptions | ||
|---|---|---|
| Account # | Exemption Description | Amount |
|
R201061030 |
5% Capped Account |
0 |
| Property Deed Transaction History (Recorded in the County Clerk's Office) | ||||||||||
|---|---|---|---|---|---|---|---|---|---|---|
| Date | Type | Book | Page | Price | Grantor | Grantee | ||||
|
9/26/2016 |
|
Hmstd Off & |
$0 |
BTRA V LLC |
HOME SFR BORROWER LLC |
|||||
|
5/21/2014 |
|
Deeds |
$185,000 |
ESTEP TORRIE |
BTRA V LLC |
|||||
|
11/19/2004 |
|
Deeds |
$149,000 |
CAT ENTERPRISES |
ESTEP TORRIE |
|||||
|
9/17/2004 |
|
Deeds |
$126,500 |
CHEEK KELLEY A |
CAT ENTERPRISES |
|||||
|
8/31/1999 |
|
Deeds |
$125,500 |
BELL CORPORATION DBA BELL AMERICAN HOMES |
CHEEK KELLEY A |
|||||
| Last Mailed Notice of Value (N.O.V.) Information/History | ||||||||
|---|---|---|---|---|---|---|---|---|
| Year | Date | Market Value | Taxable Market Value | Gross Assessed | Exemption | Net Assessed | ||
|
2026 |
02/06/2026 |
280,500 |
257,808 |
28,358 |
0 |
28,358 |
||
|
2026 |
03/30/2026 |
280,500 |
257,808 |
28,358 |
0 |
28,358 |
||
|
2025 |
01/31/2025 |
283,000 |
245,532 |
27,008 |
0 |
27,008 |
||
|
2024 |
01/22/2024 |
275,500 |
233,840 |
25,721 |
0 |
25,721 |
||
|
2023 |
01/23/2023 |
264,500 |
222,705 |
24,497 |
0 |
24,497 |
||
| Property Building Permit History | ||||||
|---|---|---|---|---|---|---|
| Issued | Permit # | Provided by | Bldg # | Description | Est Construction Cost | Status |
|
6/30/2004 |
10295869 |
EDMOND |
1 |
Main Dwellin |
123,565 |
Inactive |
|
4/30/1999 |
10268735 |
EDMOND |
1 |
Main Dwellin |
100,000 |
Inactive |
| Click button on building number to access detailed information: | ||||||
|---|---|---|---|---|---|---|
| Bldg # | Vacant/Improved Land | Bldg Description | Year Built | SqFt | # Stories | |
|
1 |
Improved |
Ranch 1 Story |
1999 |
1,847 |
1 Stories |
|