|
|
|
| Larry Stein Oklahoma County Assessor (405) 713-1200 - Public Access System |
|
|
|
|
|
|
| Real Property Display - Screen Produced 3/20/2026 11:40:18 PM | ||||
|---|---|---|---|---|
| Account: R189551050 | Type: Residential | Location: |
1601 TIMBER RIDGE RD |
|
| Building Name/Occupant: |
|
EDMOND |
||
| Owner Name 1: | KMGE PROPERTIES LLC |
Parcel PIN#: |
4695-18-955-1050 |
|
| Owner Name 2: | 1/4 section #: |
4695 |
||
| Owner Name 3: | Parent Acct: |
|
||
| Billing Address: | PO BOX 30864 | Tax District: |
|
|
| City, State, Zip | EDMOND, OK 73003-0015 | School System: |
Edmond #12 |
|
|
Country: (If noted) |
Land Size: |
0.2562 Acres |
||
|
Land Value: 41,738 |
|
|||
|
Sect 24-T14N-R3W Qtr SW |
TIMBER RIDGE 2ND
Block
004
Lot
000
|
|||
| Full Legal Description: TIMBER RIDGE 2ND 004 000 LOT 1 EX N4.1FT |
| Photo & Sketch (if available) | Comp Sales (ordered by relevancy) |
|
||||||||||||||||||
|
||||||||||||||||||||
| Value History (*The County Treasurer 405-713-1300 posts & collects actual tax amounts. Contact information HERE) | |||||||||||||
|---|---|---|---|---|---|---|---|---|---|---|---|---|---|
| Year | Market Value | Taxable Mkt Value | Gross Assessed | Exemption | Net Assessed | Millage | Est. Tax | Tax Savings | |||||
|
2025 |
279,500 |
252,571 |
27,781 |
0 |
27,781 |
105.16 |
$2,922 |
$312 |
|||||
|
2024 |
277,000 |
240,544 |
26,458 |
0 |
26,458 |
105.03 |
$2,779 |
$421 |
|||||
|
2023 |
272,000 |
229,090 |
25,198 |
0 |
25,198 |
104.24 |
$2,627 |
$492 |
|||||
|
2022 |
236,000 |
218,181 |
23,999 |
0 |
23,999 |
104.64 |
$2,511 |
$205 |
|||||
|
2021 |
208,000 |
207,792 |
22,856 |
0 |
22,856 |
104.15 |
$2,381 |
$2 |
|||||
| Property Account Status/Adjustments/Exemptions | ||
|---|---|---|
| Account # | Exemption Description | Amount |
|
R189551050 |
5% Capped Account |
0 |
| Property Deed Transaction History (Recorded in the County Clerk's Office) | ||||||||||
|---|---|---|---|---|---|---|---|---|---|---|
| Date | Type | Book | Page | Price | Grantor | Grantee | ||||
|
12/28/2012 |
|
Hmstd Off & |
$0 |
KMGE PROPERTIES LLC |
KMGE PROPERTIES LLC |
|||||
|
12/28/2012 |
|
Hmstd Off & |
$0 |
RAFF MICHAEL P NEWBY CHRISTOPHER WHITFIELD |
KMGE PROPERTIES LLC |
|||||
|
8/5/2008 |
|
Hmstd Off & |
$0 |
NEWBY SARAH K & CHRISTOPHER W |
KMGE PROPERTIES LLC |
|||||
|
7/16/2008 |
|
Hmstd Off & |
$0 |
RAFF MICHAEL PATRICK NEWBY SARAH KATHLEEN |
KMGE PROPERTIES LLC |
|||||
|
2/20/2007 |
|
Deeds |
$0 |
RAFF KATHLEEN M |
RAFF MICHAEL PATRICK NEWBY SARAH KATHLEEN |
|||||
| Last Mailed Notice of Value (N.O.V.) Information/History | ||||||||
|---|---|---|---|---|---|---|---|---|
| Year | Date | Market Value | Taxable Market Value | Gross Assessed | Exemption | Net Assessed | ||
|
2026 |
02/06/2026 |
282,000 |
265,199 |
29,171 |
0 |
29,171 |
||
|
2025 |
01/31/2025 |
279,500 |
252,571 |
27,781 |
0 |
27,781 |
||
|
2024 |
01/22/2024 |
277,000 |
240,544 |
26,458 |
0 |
26,458 |
||
|
2023 |
01/23/2023 |
272,000 |
229,090 |
25,198 |
0 |
25,198 |
||
|
2022 |
02/22/2022 |
236,000 |
218,181 |
23,998 |
0 |
23,998 |
||
| Property Building Permit History | ||||||
|---|---|---|---|---|---|---|
| Issued | Permit # | Provided by | Bldg # | Description | Est Construction Cost | Status |
|
5/3/1995 |
10261431 |
EDMOND |
1 |
Burn - Trip |
0 |
Inactive |
| Click button on building number to access detailed information: | ||||||
|---|---|---|---|---|---|---|
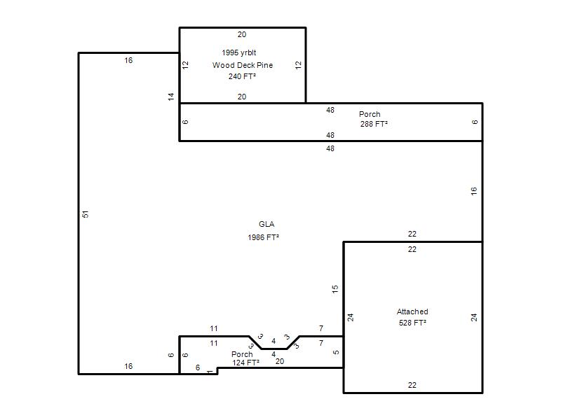
| Bldg # | Vacant/Improved Land | Bldg Description | Year Built | SqFt | # Stories | |
|
1 |
Improved |
Ranch 1 Story |
1981 |
1,986 |
1 Stories |
|