|
|
|
| Larry Stein Oklahoma County Assessor (405) 713-1200 - Public Access System |
|
|
|
|
|
|
| Real Property Display - Screen Produced 3/20/2026 11:36:26 PM | ||||
|---|---|---|---|---|
| Account: R189551550 | Type: Residential | Location: |
1604 WASHINGTON ST |
|
| Building Name/Occupant: |
|
EDMOND |
||
| Owner Name 1: | BURDINA MARIYA I |
Parcel PIN#: |
4695-18-955-1550 |
|
| Owner Name 2: | 1/4 section #: |
4695 |
||
| Owner Name 3: | Parent Acct: |
|
||
| Billing Address: | 1604 WASHINGTON ST | Tax District: |
|
|
| City, State, Zip | EDMOND , OK 73034-4907 | School System: |
Edmond #12 |
|
|
Country: (If noted) |
Land Size: |
0.4436 Acres |
||
|
Land Value: 72,268 |
|
|||
|
Sect 24-T14N-R3W Qtr SW |
TIMBER RIDGE 2ND
Block
011
Lot
010
|
|||
| Full Legal Description: TIMBER RIDGE 2ND 011 010 |
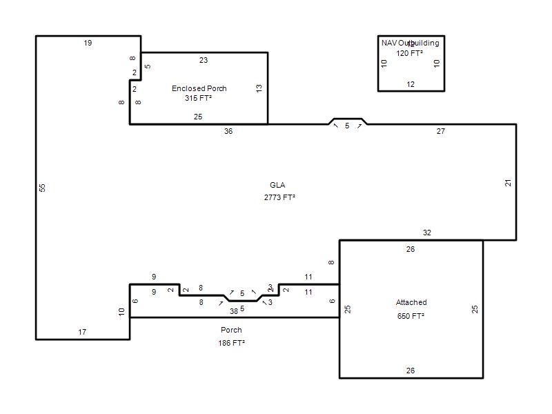
| Photo & Sketch (if available) | Comp Sales (ordered by relevancy) |
|
||||||||||||||||||
|
||||||||||||||||||||
| Value History (*The County Treasurer 405-713-1300 posts & collects actual tax amounts. Contact information HERE) | |||||||||||||
|---|---|---|---|---|---|---|---|---|---|---|---|---|---|
| Year | Market Value | Taxable Mkt Value | Gross Assessed | Exemption | Net Assessed | Millage | Est. Tax | Tax Savings | |||||
|
2025 |
379,500 |
334,870 |
36,835 |
0 |
36,835 |
105.16 |
$3,874 |
$516 |
|||||
|
2024 |
371,000 |
318,924 |
35,081 |
0 |
35,081 |
105.03 |
$3,685 |
$602 |
|||||
|
2023 |
367,000 |
303,738 |
33,411 |
0 |
33,411 |
104.24 |
$3,483 |
$725 |
|||||
|
2022 |
316,500 |
289,275 |
31,820 |
0 |
31,820 |
104.64 |
$3,330 |
$313 |
|||||
|
2021 |
275,500 |
275,500 |
30,305 |
0 |
30,305 |
104.15 |
$3,156 |
$0 |
|||||
| Property Account Status/Adjustments/Exemptions | ||
|---|---|---|
| Account # | Exemption Description | Amount |
|
R189551550 |
5% Capped Account |
0 |
| Property Deed Transaction History (Recorded in the County Clerk's Office) | ||||||||||
|---|---|---|---|---|---|---|---|---|---|---|
| Date | Type | Book | Page | Price | Grantor | Grantee | ||||
|
7/23/2020 |
|
Hmstd Off & |
$0 |
METZ NEIL E |
BURDINA MARIYA I |
|||||
|
7/21/2014 |
|
Deeds |
$260,000 |
HOWELL JAMES R HOWELL ELIZABETH A |
METZ NEIL E |
|||||
|
3/26/1996 |
|
Historical |
$152,000 |
LOWE ROBERT W & CHERYL L |
HOWELL JAMES R |
|||||
|
9/2/1993 |
|
Historical |
$135,000 |
EDWARDS RODNEY C |
LOWE ROBERT W & CHERYL L |
|||||
|
7/5/1990 |
|
Historical |
$137,000 |
KEMP PHILIP W & BARBARA A |
EDWARDS RODNEY C |
|||||
| Last Mailed Notice of Value (N.O.V.) Information/History | ||||||||
|---|---|---|---|---|---|---|---|---|
| Year | Date | Market Value | Taxable Market Value | Gross Assessed | Exemption | Net Assessed | ||
|
2026 |
02/06/2026 |
384,500 |
351,613 |
38,676 |
0 |
38,676 |
||
|
2025 |
01/31/2025 |
379,500 |
334,870 |
36,835 |
0 |
36,835 |
||
|
2024 |
01/22/2024 |
371,000 |
318,924 |
35,081 |
0 |
35,081 |
||
|
2023 |
01/23/2023 |
367,000 |
303,738 |
33,411 |
0 |
33,411 |
||
|
2022 |
02/22/2022 |
316,500 |
289,275 |
31,820 |
0 |
31,820 |
||
| Property Building Permit History | |||||||||||
|---|---|---|---|---|---|---|---|---|---|---|---|
| Issued | Permit # | Provided by | Bldg # | Description | Est Construction Cost | Status | |||||
| No Building Permit records returned. | |||||||||||
| Click button on building number to access detailed information: | ||||||
|---|---|---|---|---|---|---|
| Bldg # | Vacant/Improved Land | Bldg Description | Year Built | SqFt | # Stories | |
|
1 |
Improved |
Ranch 1 Story |
1976 |
2,773 |
1 Stories |
|