|
|
|
| Larry Stein Oklahoma County Assessor (405) 713-1200 - Public Access System |
|
|
|
|
|
|
| Real Property Display - Screen Produced 3/20/2026 11:40:07 PM | ||||
|---|---|---|---|---|
| Account: R189551600 | Type: Residential | Location: |
700 TIMBER RIDGE RD |
|
| Building Name/Occupant: |
|
EDMOND |
||
| Owner Name 1: | BERNARD RICHARD M & TERRY L |
Parcel PIN#: |
4695-18-955-1600 |
|
| Owner Name 2: | 1/4 section #: |
4695 |
||
| Owner Name 3: | Parent Acct: |
|
||
| Billing Address: | 700 TIMBER RIDGE RD | Tax District: |
|
|
| City, State, Zip | EDMOND, OK 73034-4915 | School System: |
Edmond #12 |
|
|
Country: (If noted) |
Land Size: |
0.5000 Acres |
||
|
Land Value: 52,440 |
|
|||
|
Sect 24-T14N-R3W Qtr SW |
TIMBER RIDGE 2ND
Block
013
Lot
000
|
|||
| Full Legal Description: TIMBER RIDGE 2ND 013 000 LOT 2 EX E102.56FT & EX BEG SW/C TH E132.53FT N10FT W127.81FT SW11.04FT TO BEG. |
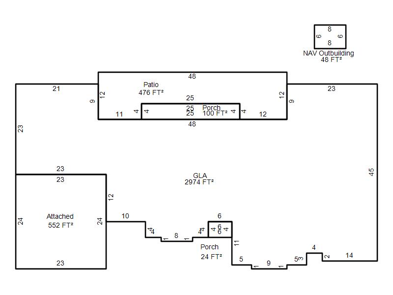
| Photo & Sketch (if available) | Comp Sales (ordered by relevancy) |
|
||||||||||||||||||
|
||||||||||||||||||||
| Value History (*The County Treasurer 405-713-1300 posts & collects actual tax amounts. Contact information HERE) | |||||||||||||
|---|---|---|---|---|---|---|---|---|---|---|---|---|---|
| Year | Market Value | Taxable Mkt Value | Gross Assessed | Exemption | Net Assessed | Millage | Est. Tax | Tax Savings | |||||
|
2025 |
383,000 |
316,074 |
34,767 |
1,000 |
33,767 |
105.16 |
$3,551 |
$879 |
|||||
|
2024 |
383,500 |
306,868 |
33,755 |
1,000 |
32,755 |
105.03 |
$3,440 |
$990 |
|||||
|
2023 |
380,500 |
297,931 |
32,771 |
1,000 |
31,771 |
104.24 |
$3,312 |
$1,051 |
|||||
|
2022 |
328,000 |
289,254 |
31,817 |
1,000 |
30,817 |
104.64 |
$3,225 |
$551 |
|||||
|
2021 |
292,000 |
280,830 |
30,890 |
1,000 |
29,890 |
104.15 |
$3,113 |
$232 |
|||||
| Property Account Status/Adjustments/Exemptions | ||
|---|---|---|
| Account # | Exemption Description | Amount |
|
R189551600 |
3% Cap Homestead |
0 |
|
R189551600 |
Homestead |
1,000 |
| Property Deed Transaction History (Recorded in the County Clerk's Office) | |||||||
|---|---|---|---|---|---|---|---|
| Date | Type | Book | Page | Price | Grantor | Grantee | |
|
3/12/2008 |
|
Deeds |
$210,000 |
MONKS TERRELL |
BERNARD RICHARD M & TERRY L |
||
|
10/5/2005 |
|
Deeds |
$191,000 |
MCLISH RUTH L & CALVIN C TRS MCLISH RUTH L 1996 REV TRUST |
MONKS TERRELL |
||
|
5/31/1996 |
|
Historical |
$0 |
MCLISH CALVIN C & RUTH L |
MCLISH RUTH L & CALVIN C TRS |
||
|
8/1/1983 |
|
Historical |
$0 |
|
MCLISH CALVIN C & RUTH L |
||
| Last Mailed Notice of Value (N.O.V.) Information/History | ||||||||
|---|---|---|---|---|---|---|---|---|
| Year | Date | Market Value | Taxable Market Value | Gross Assessed | Exemption | Net Assessed | ||
|
2026 |
02/06/2026 |
390,000 |
325,556 |
35,811 |
1,000 |
34,811 |
||
|
2025 |
01/31/2025 |
383,000 |
316,074 |
34,767 |
1,000 |
33,767 |
||
|
2024 |
01/22/2024 |
383,500 |
306,868 |
33,755 |
1,000 |
32,755 |
||
|
2023 |
01/23/2023 |
380,500 |
297,931 |
32,771 |
1,000 |
31,771 |
||
|
2022 |
02/22/2022 |
328,000 |
289,254 |
31,816 |
1,000 |
30,816 |
||
| Property Building Permit History | |||||||||||
|---|---|---|---|---|---|---|---|---|---|---|---|
| Issued | Permit # | Provided by | Bldg # | Description | Est Construction Cost | Status | |||||
| No Building Permit records returned. | |||||||||||
| Click button on building number to access detailed information: | ||||||
|---|---|---|---|---|---|---|
| Bldg # | Vacant/Improved Land | Bldg Description | Year Built | SqFt | # Stories | |
|
1 |
Improved |
Ranch 1 Story |
1983 |
2,974 |
1 Stories |
|