|
|
|
| Larry Stein Oklahoma County Assessor (405) 713-1200 - Public Access System |
|
|
|
|
|
|
| Real Property Display - Screen Produced 3/20/2026 11:33:15 PM | ||||
|---|---|---|---|---|
| Account: R189551820 | Type: Residential | Location: |
605 HOLLY DR |
|
| Building Name/Occupant: |
|
EDMOND |
||
| Owner Name 1: | DUFF MICHAEL COLIN & CHELSIE DIANNE |
Parcel PIN#: |
4695-18-955-1820 |
|
| Owner Name 2: | 1/4 section #: |
4695 |
||
| Owner Name 3: | Parent Acct: |
|
||
| Billing Address: | 605 HOLLY DR | Tax District: |
|
|
| City, State, Zip | EDMOND, OK 73034-4923 | School System: |
Edmond #12 |
|
|
Country: (If noted) |
Land Size: |
0.4021 Acres |
||
|
Land Value: 52,440 |
|
|||
|
Sect 24-T14N-R3W Qtr SW |
TIMBER RIDGE 2ND
Block
015
Lot
004
|
|||
| Full Legal Description: TIMBER RIDGE 2ND 015 004 |
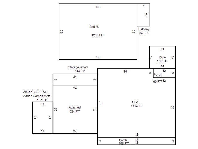
| Photo & Sketch (if available) | Comp Sales (ordered by relevancy) |
|
||||||||||||||||||
|
||||||||||||||||||||
| Value History (*The County Treasurer 405-713-1300 posts & collects actual tax amounts. Contact information HERE) | |||||||||||||
|---|---|---|---|---|---|---|---|---|---|---|---|---|---|
| Year | Market Value | Taxable Mkt Value | Gross Assessed | Exemption | Net Assessed | Millage | Est. Tax | Tax Savings | |||||
|
2025 |
369,500 |
295,719 |
32,528 |
1,000 |
31,528 |
105.16 |
$3,316 |
$959 |
|||||
|
2024 |
362,000 |
287,106 |
31,580 |
1,000 |
30,580 |
105.03 |
$3,212 |
$970 |
|||||
|
2023 |
356,500 |
278,744 |
30,661 |
1,000 |
29,661 |
104.24 |
$3,092 |
$996 |
|||||
|
2022 |
307,000 |
270,626 |
29,768 |
1,000 |
28,768 |
104.64 |
$3,010 |
$523 |
|||||
|
2021 |
273,500 |
262,744 |
28,901 |
1,000 |
27,901 |
104.15 |
$2,906 |
$227 |
|||||
| Property Account Status/Adjustments/Exemptions | ||
|---|---|---|
| Account # | Exemption Description | Amount |
|
R189551820 |
Homestead |
1,000 |
| Property Deed Transaction History (Recorded in the County Clerk's Office) | |||||||
|---|---|---|---|---|---|---|---|
| Date | Type | Book | Page | Price | Grantor | Grantee | |
|
4/29/2025 |
|
Deeds |
$418,000 |
GARDELLA PAUL J & LAHONDA K |
DUFF MICHAEL COLIN & CHELSIE DIANNE |
||
|
8/20/1991 |
|
Historical |
$117,500 |
LAFORGE PAUL E |
GARDELLA PAUL J & LAHONDA K |
||
|
1/18/1991 |
|
Historical |
$0 |
LAFORCE PAUL E & LINDA J |
LAFORGE PAUL E |
||
|
6/1/1983 |
|
Historical |
$0 |
|
LAFORCE PAUL E & LINDA J |
||
| Last Mailed Notice of Value (N.O.V.) Information/History | ||||||||
|---|---|---|---|---|---|---|---|---|
| Year | Date | Market Value | Taxable Market Value | Gross Assessed | Exemption | Net Assessed | ||
|
2026 |
02/06/2026 |
376,000 |
376,000 |
41,360 |
0 |
41,360 |
||
|
2025 |
01/31/2025 |
369,500 |
295,719 |
32,528 |
1,000 |
31,528 |
||
|
2024 |
01/22/2024 |
362,000 |
287,106 |
31,580 |
1,000 |
30,580 |
||
|
2023 |
01/23/2023 |
356,500 |
278,744 |
30,661 |
1,000 |
29,661 |
||
|
2022 |
02/22/2022 |
307,000 |
270,626 |
29,768 |
1,000 |
28,768 |
||
| Property Building Permit History | |||||||||||
|---|---|---|---|---|---|---|---|---|---|---|---|
| Issued | Permit # | Provided by | Bldg # | Description | Est Construction Cost | Status | |||||
| No Building Permit records returned. | |||||||||||
| Click button on building number to access detailed information: | ||||||
|---|---|---|---|---|---|---|
| Bldg # | Vacant/Improved Land | Bldg Description | Year Built | SqFt | # Stories | |
|
1 |
Improved |
2 Story |
1974 |
2,754 |
2 Stories |
|