|
|
|
| Larry Stein Oklahoma County Assessor (405) 713-1200 - Public Access System |
|
|
|
|
|
|
| Real Property Display - Screen Produced 3/20/2026 11:41:58 PM | ||||
|---|---|---|---|---|
| Account: R189551875 | Type: Residential | Location: |
608 TIMBER RIDGE RD |
|
| Building Name/Occupant: |
|
EDMOND |
||
| Owner Name 1: | WENNERSTEN PHILIP J & CHAVON H |
Parcel PIN#: |
4695-18-955-1875 |
|
| Owner Name 2: | 1/4 section #: |
4695 |
||
| Owner Name 3: | Parent Acct: |
|
||
| Billing Address: | 608 TIMBER RIDGE RD | Tax District: |
|
|
| City, State, Zip | EDMOND, OK 73034-4303 | School System: |
Edmond #12 |
|
|
Country: (If noted) |
Land Size: |
0.3099 Acres |
||
|
Land Value: 50,490 |
|
|||
|
Sect 24-T14N-R3W Qtr SW |
TIMBER RIDGE 2ND
Block
016
Lot
000
|
|||
| Full Legal Description: TIMBER RIDGE 2ND 016 000 W100FT OF LOT 1 |
| Photo & Sketch (if available) | Comp Sales (ordered by relevancy) |
|
||||||||||||||||||
|
||||||||||||||||||||
| Value History (*The County Treasurer 405-713-1300 posts & collects actual tax amounts. Contact information HERE) | |||||||||||||
|---|---|---|---|---|---|---|---|---|---|---|---|---|---|
| Year | Market Value | Taxable Mkt Value | Gross Assessed | Exemption | Net Assessed | Millage | Est. Tax | Tax Savings | |||||
|
2025 |
336,000 |
276,719 |
30,438 |
1,000 |
29,438 |
105.16 |
$3,096 |
$791 |
|||||
|
2024 |
339,000 |
268,660 |
29,551 |
1,000 |
28,551 |
105.03 |
$2,999 |
$918 |
|||||
|
2023 |
335,000 |
260,835 |
28,691 |
1,000 |
27,691 |
104.24 |
$2,887 |
$955 |
|||||
|
2022 |
290,000 |
253,238 |
27,855 |
1,000 |
26,855 |
104.64 |
$2,810 |
$528 |
|||||
|
2021 |
256,500 |
245,863 |
27,044 |
1,000 |
26,044 |
104.15 |
$2,713 |
$226 |
|||||
| Property Account Status/Adjustments/Exemptions | ||
|---|---|---|
| Account # | Exemption Description | Amount |
|
R189551875 |
3% Cap Homestead |
0 |
|
R189551875 |
Homestead |
1,000 |
| Property Deed Transaction History (Recorded in the County Clerk's Office) | |||||||
|---|---|---|---|---|---|---|---|
| Date | Type | Book | Page | Price | Grantor | Grantee | |
|
5/17/2007 |
|
Deeds |
$230,000 |
PEARSON THOMAS C JR & CYNTHIA A |
WENNERSTEN PHILIP J & CHAVON H |
||
|
9/24/2000 |
|
Deeds |
$163,500 |
WALDING HENRY GEORGE PATTERSON BEVERLY J |
PEARSON THOMAS C JR & CYNTHIA A |
||
|
3/30/1993 |
|
Historical |
$125,000 |
ANDERSON ERIC R & SUSAN H |
WALDING HENRY GEORGE |
||
|
12/1/1978 |
|
Historical |
$0 |
|
ANDERSON ERIC R & SUSAN H |
||
| Last Mailed Notice of Value (N.O.V.) Information/History | ||||||||
|---|---|---|---|---|---|---|---|---|
| Year | Date | Market Value | Taxable Market Value | Gross Assessed | Exemption | Net Assessed | ||
|
2026 |
02/06/2026 |
340,500 |
285,020 |
31,352 |
1,000 |
30,352 |
||
|
2025 |
01/31/2025 |
336,000 |
276,719 |
30,438 |
1,000 |
29,438 |
||
|
2024 |
01/22/2024 |
339,000 |
268,660 |
29,551 |
1,000 |
28,551 |
||
|
2023 |
01/23/2023 |
335,000 |
260,835 |
28,691 |
1,000 |
27,691 |
||
|
2022 |
02/22/2022 |
290,000 |
253,238 |
27,855 |
1,000 |
26,855 |
||
| Property Building Permit History | |||||||||||
|---|---|---|---|---|---|---|---|---|---|---|---|
| Issued | Permit # | Provided by | Bldg # | Description | Est Construction Cost | Status | |||||
| No Building Permit records returned. | |||||||||||
| Click button on building number to access detailed information: | ||||||
|---|---|---|---|---|---|---|
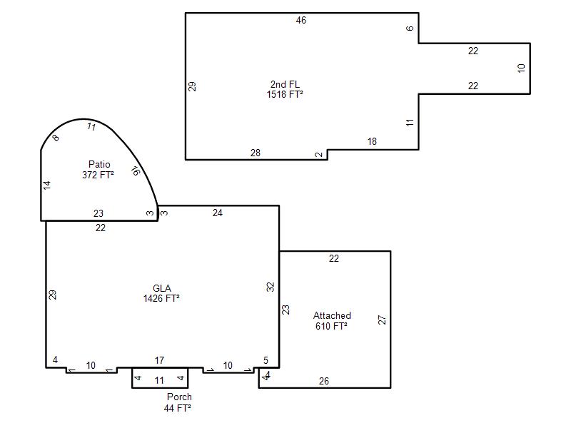
| Bldg # | Vacant/Improved Land | Bldg Description | Year Built | SqFt | # Stories | |
|
1 |
Improved |
2 Story |
1975 |
2,944 |
2 Stories |
|