|
|
|
| Larry Stein Oklahoma County Assessor (405) 713-1200 - Public Access System |
|
|
|
|
|
|
| Real Property Display - Screen Produced 3/20/2026 1:48:59 PM | ||||
|---|---|---|---|---|
| Account: R183432530 | Type: Residential | Location: |
1009 E EDWARDS ST |
|
| Building Name/Occupant: |
|
EDMOND |
||
| Owner Name 1: | MOORE WEIN LLC |
Parcel PIN#: |
4698-18-343-2530 |
|
| Owner Name 2: | 1/4 section #: |
4698 |
||
| Owner Name 3: | Parent Acct: |
|
||
| Billing Address: | 3604 E 32ND ST | Tax District: |
|
|
| City, State, Zip | EDMOND, OK 73013-7925 | School System: |
Edmond #12 |
|
|
Country: (If noted) |
Land Size: |
0.1607 Acres |
||
|
Land Value: 27,020 |
|
|||
|
Sect 25-T14N-R3W Qtr SE |
HIGHLAND PARK ADD
Block
009
Lot
000
|
|||
| Full Legal Description: HIGHLAND PARK ADD 009 000 LOTS 17 & 18 |
| No comparable sales report available. | ||||||||||||||||||||||
|
||||||||||||||||||||||
| Value History (*The County Treasurer 405-713-1300 posts & collects actual tax amounts. Contact information HERE) | |||||||||||||
|---|---|---|---|---|---|---|---|---|---|---|---|---|---|
| Year | Market Value | Taxable Mkt Value | Gross Assessed | Exemption | Net Assessed | Millage | Est. Tax | Tax Savings | |||||
|
2025 |
304,901 |
272,743 |
30,001 |
0 |
30,001 |
105.16 |
$3,155 |
$372 |
|||||
|
2024 |
259,756 |
259,756 |
28,573 |
0 |
28,573 |
105.03 |
$3,001 |
$0 |
|||||
|
2023 |
261,049 |
250,599 |
27,565 |
0 |
27,565 |
104.24 |
$2,873 |
$120 |
|||||
|
2022 |
256,487 |
238,666 |
26,253 |
0 |
26,253 |
104.64 |
$2,747 |
$205 |
|||||
|
2021 |
237,976 |
227,301 |
25,002 |
0 |
25,002 |
104.15 |
$2,604 |
$122 |
|||||
| Property Account Status/Adjustments/Exemptions | ||
|---|---|---|
| Account # | Exemption Description | Amount |
|
R183432530 |
5% Capped Account |
0 |
| Property Deed Transaction History (Recorded in the County Clerk's Office) | |||||||
|---|---|---|---|---|---|---|---|
| Date | Type | Book | Page | Price | Grantor | Grantee | |
|
12/29/2012 |
|
Mult Parcel |
$230,000 |
G O FARMS LLC |
MOORE WEIN LLC |
||
|
7/17/2002 |
|
|
$0 |
OPLOTNIK GREGORY A |
G O FARMS LLC |
||
|
9/17/1999 |
|
Deeds |
$46,500 |
KIDWELL SHAWN M |
OPLOTNIK GREGORY A |
||
|
9/6/1996 |
|
Historical |
$41,500 |
SCHMIDT CARL W |
KIDWELL SHAWN M |
||
|
4/1/1986 |
|
Historical |
$45,000 |
|
SCHMIDT CARL W |
||
| Last Mailed Notice of Value (N.O.V.) Information/History | ||||||||
|---|---|---|---|---|---|---|---|---|
| Year | Date | Market Value | Taxable Market Value | Gross Assessed | Exemption | Net Assessed | ||
|
2026 |
02/06/2026 |
352,261 |
286,380 |
31,501 |
0 |
31,501 |
||
|
2025 |
01/31/2025 |
304,901 |
272,743 |
30,001 |
0 |
30,001 |
||
|
2024 |
01/22/2024 |
259,756 |
259,756 |
28,573 |
0 |
28,573 |
||
|
2023 |
01/23/2023 |
261,049 |
250,599 |
27,565 |
0 |
27,565 |
||
|
2022 |
02/22/2022 |
256,487 |
238,666 |
26,252 |
0 |
26,252 |
||
| Property Building Permit History | ||||||
|---|---|---|---|---|---|---|
| Issued | Permit # | Provided by | Bldg # | Description | Est Construction Cost | Status |
|
11/18/2015 |
10478208 |
EDMOND |
1 |
Main Dwellin |
125,000 |
Inactive |
| Click button on building number to access detailed information: | ||||||
|---|---|---|---|---|---|---|
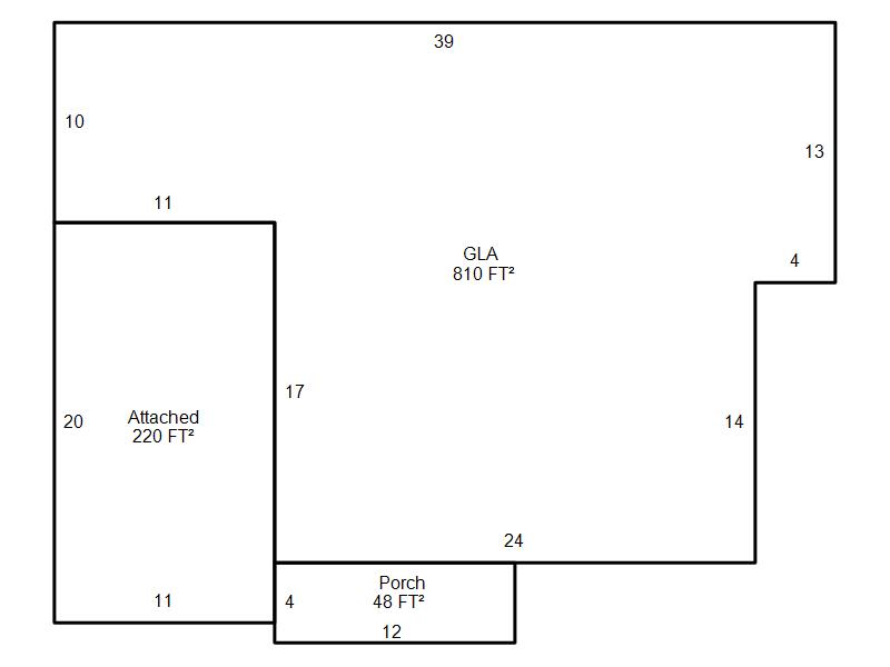
| Bldg # | Vacant/Improved Land | Bldg Description | Year Built | SqFt | # Stories | |
|
1 |
Improved |
Ranch 1 Story |
1948 |
810 |
1 Stories |
|
|
2 |
Improved |
Ranch 1 Story |
2016 |
1,190 |
1 Stories |
|