|
|
|
| Larry Stein Oklahoma County Assessor (405) 713-1200 - Public Access System |
|
|
|
|
|
|
| Real Property Display - Screen Produced 3/20/2026 1:49:01 PM | ||||
|---|---|---|---|---|
| Account: R183438045 | Type: Residential | Location: |
1013 E MAIN ST |
|
| Building Name/Occupant: |
|
EDMOND |
||
| Owner Name 1: | MODERN HOMESTEAD PROPERTIES LLC |
Parcel PIN#: |
4698-18-343-8045 |
|
| Owner Name 2: | 1/4 section #: |
4698 |
||
| Owner Name 3: | Parent Acct: |
|
||
| Billing Address: | 1912 WESTRIDGE DR | Tax District: |
|
|
| City, State, Zip | EDMOND, OK 73013 | School System: |
Edmond #12 |
|
|
Country: (If noted) |
Land Size: |
0.3214 Acres |
||
|
Land Value: 54,040 |
|
|||
|
Sect 25-T14N-R3W Qtr SE |
HIGHLAND PARK ADD
Block
026
Lot
000
|
|||
| Full Legal Description: HIGHLAND PARK ADD 026 000 LOTS 21 THRU 24 |
| No comparable sales report available. | ||||||||||||||||||||||
|
||||||||||||||||||||||
| Value History (*The County Treasurer 405-713-1300 posts & collects actual tax amounts. Contact information HERE) | |||||||||||||
|---|---|---|---|---|---|---|---|---|---|---|---|---|---|
| Year | Market Value | Taxable Mkt Value | Gross Assessed | Exemption | Net Assessed | Millage | Est. Tax | Tax Savings | |||||
|
2025 |
242,287 |
242,287 |
26,651 |
0 |
26,651 |
105.16 |
$2,803 |
$0 |
|||||
|
2024 |
235,002 |
235,002 |
25,850 |
0 |
25,850 |
105.03 |
$2,715 |
$0 |
|||||
|
2023 |
235,002 |
235,002 |
25,850 |
0 |
25,850 |
104.24 |
$2,695 |
$0 |
|||||
|
2022 |
232,670 |
232,670 |
25,593 |
0 |
25,593 |
104.64 |
$2,678 |
$0 |
|||||
|
2021 |
241,761 |
241,761 |
26,593 |
0 |
26,593 |
104.15 |
$2,770 |
$0 |
|||||
| Property Account Status/Adjustments/Exemptions | ||||||
|---|---|---|---|---|---|---|
| Account # | Exemption Description | Amount | ||||
| No adjustment/exemption records returned. | ||||||
| Property Deed Transaction History (Recorded in the County Clerk's Office) | |||||||
|---|---|---|---|---|---|---|---|
| Date | Type | Book | Page | Price | Grantor | Grantee | |
|
12/23/2020 |
|
Mult Parcel |
$793,000 |
GOODWIN CECILIA WOOLLEY LIV TRUST |
MODERN HOMESTEAD PROPERTIES LLC |
||
|
8/13/2020 |
|
Hmstd Off & |
$0 |
GOODWIN CECILIA W |
GOODWIN CECILIA WOOLLEY LIV TRUST |
||
|
4/24/2003 |
|
Deeds |
$0 |
GOODWIN TOM W |
GOODWIN CECILIA W |
||
|
5/1/1979 |
|
Historical |
$0 |
|
GOODWIN TOM W & CECILIA W |
||
| Last Mailed Notice of Value (N.O.V.) Information/History | ||||||||
|---|---|---|---|---|---|---|---|---|
| Year | Date | Market Value | Taxable Market Value | Gross Assessed | Exemption | Net Assessed | ||
|
2025 |
01/31/2025 |
242,287 |
242,287 |
26,651 |
0 |
26,651 |
||
|
2023 |
01/23/2023 |
235,002 |
235,002 |
25,850 |
0 |
25,850 |
||
|
2021 |
02/24/2021 |
241,761 |
182,570 |
20,082 |
0 |
20,082 |
||
|
2020 |
02/21/2020 |
233,922 |
173,877 |
19,126 |
0 |
19,126 |
||
|
2019 |
02/26/2019 |
218,848 |
165,599 |
18,216 |
0 |
18,216 |
||
| Property Building Permit History | |||||||||||
|---|---|---|---|---|---|---|---|---|---|---|---|
| Issued | Permit # | Provided by | Bldg # | Description | Est Construction Cost | Status | |||||
| No Building Permit records returned. | |||||||||||
| Click button on building number to access detailed information: | ||||||
|---|---|---|---|---|---|---|
| Bldg # | Vacant/Improved Land | Bldg Description | Year Built | SqFt | # Stories | |
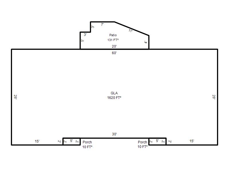
|
1 |
Improved |
Duplex One Story |
1963 |
1,620 |
1 Stories |
|
|
2 |
Improved |
Duplex One Story |
1963 |
1,620 |
1 Stories |
|