|
|
|
| Larry Stein Oklahoma County Assessor (405) 713-1200 - Public Access System |
|
|
|
|
|
|
| Real Property Display - Screen Produced 3/20/2026 6:30:00 PM | ||||
|---|---|---|---|---|
| Account: R184851000 | Type: Residential | Location: |
1221 WASHINGTON ST |
|
| Building Name/Occupant: |
|
EDMOND |
||
| Owner Name 1: | SHADID RANDEL C REV TRUST |
Parcel PIN#: |
4700-18-485-1000 |
|
| Owner Name 2: | SHADID MITZIE J | 1/4 section #: |
4700 |
|
| Owner Name 3: | Parent Acct: |
|
||
| Billing Address: | PO BOX 1217 | Tax District: |
|
|
| City, State, Zip | EDMOND, OK 73083-1217 | School System: |
Edmond #12 |
|
|
Country: (If noted) |
Land Size: |
0.2690 Acres |
||
|
Land Value: 37,263 |
|
|||
|
Sect 25-T14N-R3W Qtr NW |
COLLEGE VIEW SEC 1
Block
001
Lot
001
|
|||
| Full Legal Description: COLLEGE VIEW SEC 1 001 001 |
| Photo & Sketch (if available) | Comp Sales (ordered by relevancy) |
|
||||||||||||||||||
|
||||||||||||||||||||
| Value History (*The County Treasurer 405-713-1300 posts & collects actual tax amounts. Contact information HERE) | |||||||||||||
|---|---|---|---|---|---|---|---|---|---|---|---|---|---|
| Year | Market Value | Taxable Mkt Value | Gross Assessed | Exemption | Net Assessed | Millage | Est. Tax | Tax Savings | |||||
|
2025 |
177,000 |
155,066 |
17,057 |
0 |
17,057 |
105.16 |
$1,794 |
$254 |
|||||
|
2024 |
176,500 |
147,682 |
16,244 |
0 |
16,244 |
105.03 |
$1,706 |
$333 |
|||||
|
2023 |
161,000 |
140,650 |
15,470 |
0 |
15,470 |
104.24 |
$1,613 |
$233 |
|||||
|
2022 |
148,000 |
133,953 |
14,734 |
0 |
14,734 |
104.64 |
$1,542 |
$162 |
|||||
|
2021 |
129,000 |
127,575 |
14,033 |
0 |
14,033 |
104.15 |
$1,462 |
$16 |
|||||
| Property Account Status/Adjustments/Exemptions | ||
|---|---|---|
| Account # | Exemption Description | Amount |
|
R184851000 |
5% Capped Account |
0 |
| Property Deed Transaction History (Recorded in the County Clerk's Office) | |||||||
|---|---|---|---|---|---|---|---|
| Date | Type | Book | Page | Price | Grantor | Grantee | |
|
2/12/2007 |
|
Deeds |
$0 |
SHADID RANDEL C & MITZIE J |
SHADID RANDEL C REV TRUST |
||
|
6/1/1975 |
|
Historical |
$0 |
|
SHADID RANDEL C & MITZIE J |
||
| Last Mailed Notice of Value (N.O.V.) Information/History | ||||||||
|---|---|---|---|---|---|---|---|---|
| Year | Date | Market Value | Taxable Market Value | Gross Assessed | Exemption | Net Assessed | ||
|
2026 |
02/06/2026 |
181,000 |
162,819 |
17,909 |
0 |
17,909 |
||
|
2025 |
01/31/2025 |
177,000 |
155,066 |
17,057 |
0 |
17,057 |
||
|
2024 |
01/22/2024 |
176,500 |
147,682 |
16,244 |
0 |
16,244 |
||
|
2023 |
01/23/2023 |
161,000 |
140,650 |
15,470 |
0 |
15,470 |
||
|
2022 |
02/22/2022 |
148,000 |
133,953 |
14,734 |
0 |
14,734 |
||
| Property Building Permit History | |||||||||||
|---|---|---|---|---|---|---|---|---|---|---|---|
| Issued | Permit # | Provided by | Bldg # | Description | Est Construction Cost | Status | |||||
| No Building Permit records returned. | |||||||||||
| Click button on building number to access detailed information: | ||||||
|---|---|---|---|---|---|---|
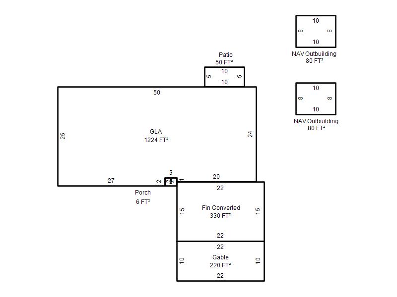
| Bldg # | Vacant/Improved Land | Bldg Description | Year Built | SqFt | # Stories | |
|
1 |
Improved |
Ranch 1 Story |
1967 |
1,224 |
1 Stories |
|