|
|
|
| Larry Stein Oklahoma County Assessor (405) 713-1200 - Public Access System |
|
|
|
|
|
|
| Real Property Display - Screen Produced 3/20/2026 6:32:37 PM | ||||
|---|---|---|---|---|
| Account: R184851470 | Type: Residential | Location: |
1008 JEFFERSON ST |
|
| Building Name/Occupant: |
|
EDMOND |
||
| Owner Name 1: | KAVANAUGH MIKE & JENNIFER TRS |
Parcel PIN#: |
4700-18-485-1470 |
|
| Owner Name 2: | KAVANAUGH MIKE & JENNIFER TRUST | 1/4 section #: |
4700 |
|
| Owner Name 3: | Parent Acct: |
|
||
| Billing Address: | 1008 JEFFERSON ST, Unit B | Tax District: |
|
|
| City, State, Zip | EDMOND, OK 73034-5094 | School System: |
Edmond #12 |
|
|
Country: (If noted) |
Land Size: |
0.2716 Acres |
||
|
Land Value: 37,619 |
|
|||
|
Sect 25-T14N-R3W Qtr NW |
COLLEGE VIEW SEC 1
Block
003
Lot
010
|
|||
| Full Legal Description: COLLEGE VIEW SEC 1 003 010 |
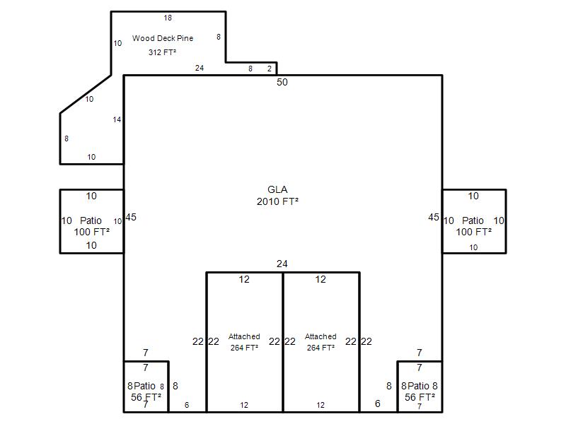
| Photo & Sketch (if available) | Comp Sales (ordered by relevancy) |
|
||||||||||||||||||
|
||||||||||||||||||||
| Value History (*The County Treasurer 405-713-1300 posts & collects actual tax amounts. Contact information HERE) | |||||||||||||
|---|---|---|---|---|---|---|---|---|---|---|---|---|---|
| Year | Market Value | Taxable Mkt Value | Gross Assessed | Exemption | Net Assessed | Millage | Est. Tax | Tax Savings | |||||
|
2025 |
231,500 |
109,525 |
12,046 |
1,000 |
11,046 |
105.16 |
$1,162 |
$1,516 |
|||||
|
2024 |
224,500 |
106,335 |
11,696 |
1,000 |
10,696 |
105.03 |
$1,123 |
$1,470 |
|||||
|
2023 |
151,500 |
103,238 |
11,355 |
1,000 |
10,355 |
104.24 |
$1,080 |
$658 |
|||||
|
2022 |
142,000 |
100,232 |
11,025 |
1,000 |
10,025 |
104.64 |
$1,049 |
$585 |
|||||
|
2021 |
142,500 |
97,313 |
10,703 |
1,000 |
9,703 |
104.15 |
$1,011 |
$622 |
|||||
| Property Account Status/Adjustments/Exemptions | ||
|---|---|---|
| Account # | Exemption Description | Amount |
|
R184851470 |
3% Cap Homestead |
0 |
|
R184851470 |
Homestead |
1,000 |
| Property Deed Transaction History (Recorded in the County Clerk's Office) | |||||||
|---|---|---|---|---|---|---|---|
| Date | Type | Book | Page | Price | Grantor | Grantee | |
|
2/15/2024 |
|
Deeds |
$0 |
KAVANAUGH CHRISTOPHER M & J A |
KAVANAUGH MIKE & JENNIFER TRS |
||
|
4/1/1983 |
|
Historical |
$0 |
|
KAVANAUGH CHRISTOPHER M & J A |
||
| Last Mailed Notice of Value (N.O.V.) Information/History | ||||||||
|---|---|---|---|---|---|---|---|---|
| Year | Date | Market Value | Taxable Market Value | Gross Assessed | Exemption | Net Assessed | ||
|
2026 |
02/06/2026 |
229,500 |
112,810 |
12,408 |
1,000 |
11,408 |
||
|
2025 |
01/31/2025 |
231,500 |
109,525 |
12,046 |
1,000 |
11,046 |
||
|
2024 |
01/22/2024 |
224,500 |
106,335 |
11,696 |
1,000 |
10,696 |
||
|
2024 |
03/01/2024 |
224,500 |
106,335 |
11,696 |
1,000 |
10,696 |
||
|
2023 |
01/23/2023 |
151,500 |
103,238 |
11,355 |
1,000 |
10,355 |
||
| Property Building Permit History | |||||||||||
|---|---|---|---|---|---|---|---|---|---|---|---|
| Issued | Permit # | Provided by | Bldg # | Description | Est Construction Cost | Status | |||||
| No Building Permit records returned. | |||||||||||
| Click button on building number to access detailed information: | ||||||
|---|---|---|---|---|---|---|
| Bldg # | Vacant/Improved Land | Bldg Description | Year Built | SqFt | # Stories | |
|
1 |
Improved |
Duplex One Story |
1983 |
2,010 |
1 Stories |
|