|
|
|
| Larry Stein Oklahoma County Assessor (405) 713-1200 - Public Access System |
|
|
|
|
|
|
| Real Property Display - Screen Produced 4/2/2026 8:10:38 PM | ||||
|---|---|---|---|---|
| Account: R182173040 | Type: Residential | Location: |
7 W COLCORD AVE |
|
| Building Name/Occupant: |
|
EDMOND |
||
| Owner Name 1: | HAGAR JIMMY E & JANEAN A |
Parcel PIN#: |
4701-18-217-3040 |
|
| Owner Name 2: | 1/4 section #: |
4701 |
||
| Owner Name 3: | Parent Acct: |
|
||
| Billing Address: | 7 W COLCORD AVE | Tax District: |
|
|
| City, State, Zip | EDMOND, OK 73003-5262 | School System: |
Edmond #12 |
|
|
Country: (If noted) |
Land Size: |
0.1607 Acres |
||
|
Land Value: 19,950 |
|
|||
|
Sect 26-T14N-R3W Qtr NE |
ROSSMORE ADDITION EDMOND
Block
006
Lot
000
|
|||
| Full Legal Description: ROSSMORE ADDITION EDMOND 006 000 LOTS 23 & 24 |
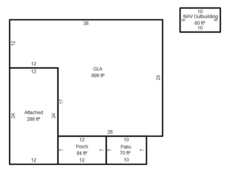
| Photo & Sketch (if available) | Comp Sales (ordered by relevancy) |
|
||||||||||||||||||
|
||||||||||||||||||||
| Value History (*The County Treasurer 405-713-1300 posts & collects actual tax amounts. Contact information HERE) | |||||||||||||
|---|---|---|---|---|---|---|---|---|---|---|---|---|---|
| Year | Market Value | Taxable Mkt Value | Gross Assessed | Exemption | Net Assessed | Millage | Est. Tax | Tax Savings | |||||
|
2026 |
135,000 |
88,638 |
9,749 |
1,000 |
8,749 |
105.16 |
$920 |
$641 |
|||||
|
2025 |
133,500 |
86,057 |
9,465 |
1,000 |
8,465 |
105.16 |
$890 |
$654 |
|||||
|
2024 |
140,000 |
83,551 |
9,189 |
1,000 |
8,189 |
105.03 |
$860 |
$757 |
|||||
|
2023 |
122,500 |
81,118 |
8,922 |
1,000 |
7,922 |
104.24 |
$826 |
$579 |
|||||
|
2022 |
113,500 |
78,756 |
8,662 |
1,000 |
7,662 |
104.64 |
$802 |
$505 |
|||||
| Property Account Status/Adjustments/Exemptions | ||
|---|---|---|
| Account # | Exemption Description | Amount |
|
R182173040 |
3% Cap Homestead |
0 |
|
R182173040 |
Homestead |
1,000 |
| Property Deed Transaction History (Recorded in the County Clerk's Office) | |||||||
|---|---|---|---|---|---|---|---|
| Date | Type | Book | Page | Price | Grantor | Grantee | |
|
11/11/1911 |
|
Historical |
$0 |
|
HAGAR JIMMY E & JANEAN A |
||
| Last Mailed Notice of Value (N.O.V.) Information/History | ||||||||
|---|---|---|---|---|---|---|---|---|
| Year | Date | Market Value | Taxable Market Value | Gross Assessed | Exemption | Net Assessed | ||
|
2026 |
02/06/2026 |
135,000 |
88,638 |
9,749 |
1,000 |
8,749 |
||
|
2025 |
01/31/2025 |
133,500 |
86,057 |
9,465 |
1,000 |
8,465 |
||
|
2024 |
01/22/2024 |
140,000 |
83,551 |
9,189 |
1,000 |
8,189 |
||
|
2023 |
01/23/2023 |
122,500 |
81,118 |
8,922 |
1,000 |
7,922 |
||
|
2022 |
02/22/2022 |
113,500 |
78,756 |
8,661 |
1,000 |
7,661 |
||
| Property Building Permit History | |||||||||||
|---|---|---|---|---|---|---|---|---|---|---|---|
| Issued | Permit # | Provided by | Bldg # | Description | Est Construction Cost | Status | |||||
| No Building Permit records returned. | |||||||||||
| Click button on building number to access detailed information: | ||||||
|---|---|---|---|---|---|---|
| Bldg # | Vacant/Improved Land | Bldg Description | Year Built | SqFt | # Stories | |
|
1 |
Improved |
Ranch 1 Story |
1959 |
898 |
1 Stories |
|