|
|
|
| Larry Stein Oklahoma County Assessor (405) 713-1200 - Public Access System |
|
|
|
|
|
|
| Real Property Display - Screen Produced 3/20/2026 6:25:09 PM | ||||
|---|---|---|---|---|
| Account: R180261040 | Type: Residential | Location: |
504 SUNNYSIDE PL |
|
| Building Name/Occupant: |
|
EDMOND |
||
| Owner Name 1: | FRAZIER TRICIA J |
Parcel PIN#: |
4704-18-026-1040 |
|
| Owner Name 2: | 1/4 section #: |
4704 |
||
| Owner Name 3: | Parent Acct: |
|
||
| Billing Address: | 504 SUNNYSIDE PL | Tax District: |
|
|
| City, State, Zip | EDMOND, OK 73003-5136 | School System: |
Edmond #12 |
|
|
Country: (If noted) |
Land Size: |
0.1313 Acres |
||
|
Land Value: 21,736 |
|
|||
|
Sect 26-T14N-R3W Qtr NW |
MEADOW LAKES ADD SEC 2
Block
006
Lot
005
|
|||
| Full Legal Description: MEADOW LAKES ADD SEC 2 006 005 |
| Photo & Sketch (if available) | Comp Sales (ordered by relevancy) |
|
||||||||||||||||||
|
||||||||||||||||||||
| Value History (*The County Treasurer 405-713-1300 posts & collects actual tax amounts. Contact information HERE) | |||||||||||||
|---|---|---|---|---|---|---|---|---|---|---|---|---|---|
| Year | Market Value | Taxable Mkt Value | Gross Assessed | Exemption | Net Assessed | Millage | Est. Tax | Tax Savings | |||||
|
2025 |
157,500 |
134,008 |
14,739 |
0 |
14,739 |
105.16 |
$1,550 |
$272 |
|||||
|
2024 |
154,500 |
127,627 |
14,038 |
0 |
14,038 |
105.03 |
$1,475 |
$310 |
|||||
|
2023 |
146,000 |
121,550 |
13,369 |
0 |
13,369 |
104.24 |
$1,394 |
$280 |
|||||
|
2022 |
129,000 |
115,762 |
12,733 |
0 |
12,733 |
104.64 |
$1,332 |
$152 |
|||||
|
2021 |
113,000 |
110,250 |
12,127 |
0 |
12,127 |
104.15 |
$1,263 |
$32 |
|||||
| Property Account Status/Adjustments/Exemptions | ||
|---|---|---|
| Account # | Exemption Description | Amount |
|
R180261040 |
5% Capped Account |
0 |
| Property Deed Transaction History (Recorded in the County Clerk's Office) | ||||||||||
|---|---|---|---|---|---|---|---|---|---|---|
| Date | Type | Book | Page | Price | Grantor | Grantee | ||||
|
8/3/2016 |
|
Deeds |
$0 |
FRAZIER THERMAN EUGENE |
FRAZIER TRICIA J |
|||||
|
2/27/2007 |
|
Deeds |
$0 |
FRAZIER THERMAN E & BEVERLY J |
FRAZIER BEVERLY J |
|||||
|
2/27/2007 |
|
Hmstd Off & |
$0 |
FRAZIER BEVERLY J |
FRAZIER TRICIA J |
|||||
|
12/4/2000 |
|
Deeds |
$47,000 |
RAETZ LOWELL G TRS RAETZ LOWELL G TRUST |
FRAZIER THERMAN E & BEVERLY J |
|||||
|
9/23/1992 |
|
Historical |
$0 |
RAETZ LOWELL G TRS |
RAETZ LOWELL G TRS |
|||||
| Last Mailed Notice of Value (N.O.V.) Information/History | ||||||||
|---|---|---|---|---|---|---|---|---|
| Year | Date | Market Value | Taxable Market Value | Gross Assessed | Exemption | Net Assessed | ||
|
2026 |
02/06/2026 |
160,000 |
140,708 |
15,477 |
0 |
15,477 |
||
|
2025 |
01/31/2025 |
157,500 |
134,008 |
14,739 |
0 |
14,739 |
||
|
2024 |
01/22/2024 |
154,500 |
127,627 |
14,038 |
0 |
14,038 |
||
|
2023 |
01/23/2023 |
146,000 |
121,550 |
13,369 |
0 |
13,369 |
||
|
2022 |
02/22/2022 |
129,000 |
115,762 |
12,733 |
0 |
12,733 |
||
| Property Building Permit History | |||||||||||
|---|---|---|---|---|---|---|---|---|---|---|---|
| Issued | Permit # | Provided by | Bldg # | Description | Est Construction Cost | Status | |||||
| No Building Permit records returned. | |||||||||||
| Click button on building number to access detailed information: | ||||||
|---|---|---|---|---|---|---|
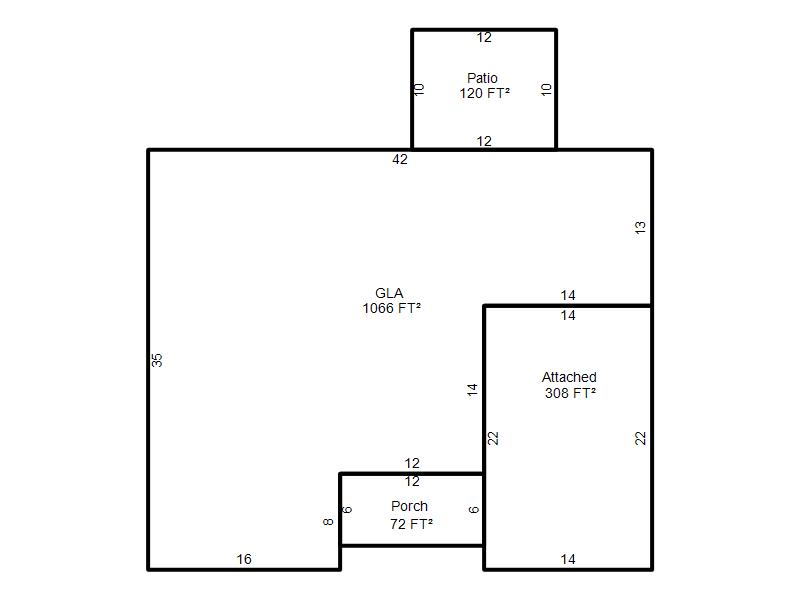
| Bldg # | Vacant/Improved Land | Bldg Description | Year Built | SqFt | # Stories | |
|
1 |
Improved |
Ranch 1 Story |
1970 |
1,066 |
1 Stories |
|