|
|
|
| Larry Stein Oklahoma County Assessor (405) 713-1200 - Public Access System |
|
|
|
|
|
|
| Real Property Display - Screen Produced 3/20/2026 6:32:37 PM | ||||
|---|---|---|---|---|
| Account: R180261120 | Type: Residential | Location: |
318 SUNNYSIDE PL |
|
| Building Name/Occupant: |
|
EDMOND |
||
| Owner Name 1: | CLAY BILLY R & MARIA E |
Parcel PIN#: |
4704-18-026-1120 |
|
| Owner Name 2: | 1/4 section #: |
4704 |
||
| Owner Name 3: | Parent Acct: |
|
||
| Billing Address: | PO BOX 367 | Tax District: |
|
|
| City, State, Zip | STILLWATER, OK 74076-0367 | School System: |
Edmond #12 |
|
|
Country: (If noted) |
Land Size: |
0.1337 Acres |
||
|
Land Value: 22,131 |
|
|||
|
Sect 26-T14N-R3W Qtr NW |
MEADOW LAKES ADD SEC 2
Block
006
Lot
013
|
|||
| Full Legal Description: MEADOW LAKES ADD SEC 2 006 013 |
| Photo & Sketch (if available) | Comp Sales (ordered by relevancy) |
|
||||||||||||||||||
|
||||||||||||||||||||
| Value History (*The County Treasurer 405-713-1300 posts & collects actual tax amounts. Contact information HERE) | |||||||||||||
|---|---|---|---|---|---|---|---|---|---|---|---|---|---|
| Year | Market Value | Taxable Mkt Value | Gross Assessed | Exemption | Net Assessed | Millage | Est. Tax | Tax Savings | |||||
|
2025 |
144,000 |
122,522 |
13,476 |
0 |
13,476 |
105.16 |
$1,417 |
$248 |
|||||
|
2024 |
141,500 |
116,688 |
12,835 |
0 |
12,835 |
105.03 |
$1,348 |
$287 |
|||||
|
2023 |
134,000 |
111,132 |
12,224 |
0 |
12,224 |
104.24 |
$1,274 |
$262 |
|||||
|
2022 |
118,500 |
105,840 |
11,642 |
0 |
11,642 |
104.64 |
$1,218 |
$146 |
|||||
|
2021 |
103,500 |
100,800 |
11,088 |
0 |
11,088 |
104.15 |
$1,155 |
$31 |
|||||
| Property Account Status/Adjustments/Exemptions | ||
|---|---|---|
| Account # | Exemption Description | Amount |
|
R180261120 |
5% Capped Account |
0 |
| Property Deed Transaction History (Recorded in the County Clerk's Office) | ||||||||||
|---|---|---|---|---|---|---|---|---|---|---|
| Date | Type | Book | Page | Price | Grantor | Grantee | ||||
|
4/29/2003 |
|
Deeds |
$64,700 |
BETTEN JOHN D & ANGELA R |
CLAY BILLY R & MARIA E |
|||||
|
4/30/1999 |
|
Deeds |
$55,000 |
KRAUSSE JEFFREY W & SHANDA R |
BETTEN JOHN D & ANGELA R |
|||||
|
10/15/1996 |
|
Historical |
$0 |
KRAUSSE JEFFREY W |
KRAUSSE JEFFREY W & SHANDA R |
|||||
|
8/14/1996 |
|
Historical |
$46,500 |
GOODWIN MICHAEL G |
KRAUSSE JEFFREY W |
|||||
|
6/3/1996 |
|
Historical |
$0 |
SECRETARY OF HOUSING |
GOODWIN MICHAEL G |
|||||
| Last Mailed Notice of Value (N.O.V.) Information/History | ||||||||
|---|---|---|---|---|---|---|---|---|
| Year | Date | Market Value | Taxable Market Value | Gross Assessed | Exemption | Net Assessed | ||
|
2026 |
02/06/2026 |
146,000 |
128,648 |
14,150 |
0 |
14,150 |
||
|
2025 |
01/31/2025 |
144,000 |
122,522 |
13,476 |
0 |
13,476 |
||
|
2024 |
01/22/2024 |
141,500 |
116,688 |
12,835 |
0 |
12,835 |
||
|
2023 |
01/23/2023 |
134,000 |
111,132 |
12,224 |
0 |
12,224 |
||
|
2022 |
02/22/2022 |
118,500 |
105,840 |
11,642 |
0 |
11,642 |
||
| Property Building Permit History | |||||||||||
|---|---|---|---|---|---|---|---|---|---|---|---|
| Issued | Permit # | Provided by | Bldg # | Description | Est Construction Cost | Status | |||||
| No Building Permit records returned. | |||||||||||
| Click button on building number to access detailed information: | ||||||
|---|---|---|---|---|---|---|
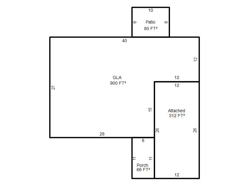
| Bldg # | Vacant/Improved Land | Bldg Description | Year Built | SqFt | # Stories | |
|
1 |
Improved |
Ranch 1 Story |
1971 |
900 |
1 Stories |
|