|
|
|
| Larry Stein Oklahoma County Assessor (405) 713-1200 - Public Access System |
|
|
|
|
|
|
| Real Property Display - Screen Produced 3/20/2026 6:30:00 PM | ||||
|---|---|---|---|---|
| Account: R180261480 | Type: Residential | Location: |
513 SUNNYSIDE PL |
|
| Building Name/Occupant: |
|
EDMOND |
||
| Owner Name 1: | SUNNYSIDE HOMES LLC |
Parcel PIN#: |
4704-18-026-1480 |
|
| Owner Name 2: | 1/4 section #: |
4704 |
||
| Owner Name 3: | Parent Acct: |
|
||
| Billing Address: | 15208 WILFORD WAY | Tax District: |
|
|
| City, State, Zip | EDMOND, OK 73013-2651 | School System: |
Edmond #12 |
|
|
Country: (If noted) |
Land Size: |
0.1338 Acres |
||
|
Land Value: 22,154 |
|
|||
|
Sect 26-T14N-R3W Qtr NW |
MEADOW LAKES ADD SEC 2
Block
007
Lot
015
|
|||
| Full Legal Description: MEADOW LAKES ADD SEC 2 007 015 |
| Photo & Sketch (if available) | Comp Sales (ordered by relevancy) |
|
||||||||||||||||||
|
||||||||||||||||||||
| Value History (*The County Treasurer 405-713-1300 posts & collects actual tax amounts. Contact information HERE) | |||||||||||||
|---|---|---|---|---|---|---|---|---|---|---|---|---|---|
| Year | Market Value | Taxable Mkt Value | Gross Assessed | Exemption | Net Assessed | Millage | Est. Tax | Tax Savings | |||||
|
2025 |
188,000 |
163,224 |
17,953 |
0 |
17,953 |
105.16 |
$1,888 |
$287 |
|||||
|
2024 |
185,500 |
155,452 |
17,099 |
0 |
17,099 |
105.03 |
$1,796 |
$347 |
|||||
|
2023 |
173,500 |
148,050 |
16,285 |
0 |
16,285 |
104.24 |
$1,698 |
$292 |
|||||
|
2022 |
141,000 |
141,000 |
15,510 |
0 |
15,510 |
104.64 |
$1,623 |
$0 |
|||||
|
2021 |
120,000 |
117,075 |
12,878 |
0 |
12,878 |
104.15 |
$1,341 |
$34 |
|||||
| Property Account Status/Adjustments/Exemptions | ||
|---|---|---|
| Account # | Exemption Description | Amount |
|
R180261480 |
5% Capped Account |
0 |
| Property Deed Transaction History (Recorded in the County Clerk's Office) | ||||||||||
|---|---|---|---|---|---|---|---|---|---|---|
| Date | Type | Book | Page | Price | Grantor | Grantee | ||||
|
6/22/2023 |
|
Hmstd Off & |
$0 |
LIU MEIOU |
SUNNYSIDE HOMES LLC |
|||||
|
7/30/2021 |
|
Deeds |
$134,500 |
MOORE MITCHELL P & AMANDA B |
LIU MEIOU |
|||||
|
6/16/2009 |
|
Deeds |
$97,000 |
MARSHALL JASON EDWARD |
MOORE MITCHELL P & AMANDA B |
|||||
|
7/15/2004 |
|
Deeds |
$62,500 |
GERIH MICHAEL JON |
MARSHALL JASON EDWARD |
|||||
|
3/2/1995 |
|
Historical |
$46,000 |
RIGGS J H & YVONNE B |
GERIH MICHAEL JON |
|||||
| Last Mailed Notice of Value (N.O.V.) Information/History | ||||||||
|---|---|---|---|---|---|---|---|---|
| Year | Date | Market Value | Taxable Market Value | Gross Assessed | Exemption | Net Assessed | ||
|
2026 |
02/06/2026 |
191,500 |
171,385 |
18,851 |
0 |
18,851 |
||
|
2025 |
01/31/2025 |
188,000 |
163,224 |
17,953 |
0 |
17,953 |
||
|
2024 |
01/22/2024 |
185,500 |
155,452 |
17,099 |
0 |
17,099 |
||
|
2023 |
01/23/2023 |
173,500 |
148,050 |
16,285 |
0 |
16,285 |
||
|
2022 |
02/22/2022 |
141,000 |
141,000 |
15,510 |
0 |
15,510 |
||
| Property Building Permit History | |||||||||||
|---|---|---|---|---|---|---|---|---|---|---|---|
| Issued | Permit # | Provided by | Bldg # | Description | Est Construction Cost | Status | |||||
| No Building Permit records returned. | |||||||||||
| Click button on building number to access detailed information: | ||||||
|---|---|---|---|---|---|---|
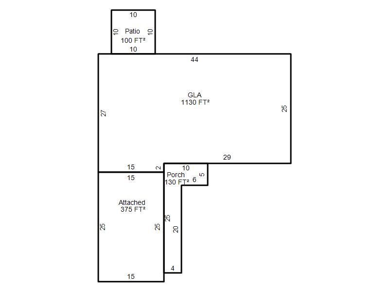
| Bldg # | Vacant/Improved Land | Bldg Description | Year Built | SqFt | # Stories | |
|
1 |
Improved |
Ranch 1 Story |
1971 |
1,130 |
1 Stories |
|