|
|
|
| Larry Stein Oklahoma County Assessor (405) 713-1200 - Public Access System |
|
|
|
|
|
|
| Real Property Display - Screen Produced 3/20/2026 6:32:36 PM | ||||
|---|---|---|---|---|
| Account: R180261510 | Type: Residential | Location: |
501 SUNNYSIDE PL |
|
| Building Name/Occupant: |
|
EDMOND |
||
| Owner Name 1: | STIFFLER DARIN & TAMARA L |
Parcel PIN#: |
4704-18-026-1510 |
|
| Owner Name 2: | 1/4 section #: |
4704 |
||
| Owner Name 3: | Parent Acct: |
|
||
| Billing Address: | 501 SUNNYSIDE PL | Tax District: |
|
|
| City, State, Zip | EDMOND, OK 73003-5137 | School System: |
Edmond #12 |
|
|
Country: (If noted) |
Land Size: |
0.1313 Acres |
||
|
Land Value: 21,736 |
|
|||
|
Sect 26-T14N-R3W Qtr NW |
MEADOW LAKES ADD SEC 2
Block
007
Lot
018
|
|||
| Full Legal Description: MEADOW LAKES ADD SEC 2 007 018 |
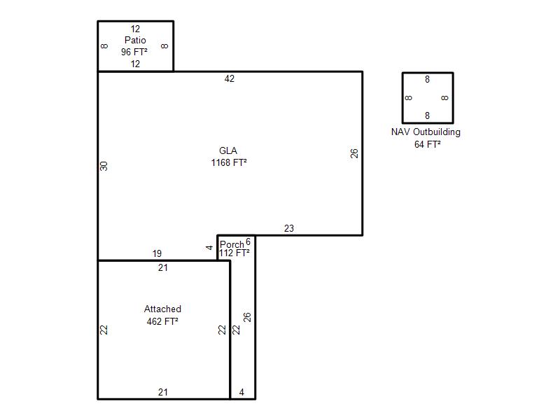
| Photo & Sketch (if available) | Comp Sales (ordered by relevancy) |
|
||||||||||||||||||
|
||||||||||||||||||||
| Value History (*The County Treasurer 405-713-1300 posts & collects actual tax amounts. Contact information HERE) | |||||||||||||
|---|---|---|---|---|---|---|---|---|---|---|---|---|---|
| Year | Market Value | Taxable Mkt Value | Gross Assessed | Exemption | Net Assessed | Millage | Est. Tax | Tax Savings | |||||
|
2025 |
171,500 |
130,364 |
14,339 |
1,000 |
13,339 |
105.16 |
$1,403 |
$581 |
|||||
|
2024 |
167,500 |
126,567 |
13,921 |
1,000 |
12,921 |
105.03 |
$1,357 |
$578 |
|||||
|
2023 |
158,000 |
122,881 |
13,516 |
1,000 |
12,516 |
104.24 |
$1,305 |
$507 |
|||||
|
2022 |
139,500 |
119,302 |
13,123 |
1,000 |
12,123 |
104.64 |
$1,269 |
$337 |
|||||
|
2021 |
122,000 |
115,828 |
12,741 |
1,000 |
11,741 |
104.15 |
$1,223 |
$175 |
|||||
| Property Account Status/Adjustments/Exemptions | ||
|---|---|---|
| Account # | Exemption Description | Amount |
|
R180261510 |
3% Cap Homestead |
0 |
|
R180261510 |
Homestead |
1,000 |
| Property Deed Transaction History (Recorded in the County Clerk's Office) | |||||||
|---|---|---|---|---|---|---|---|
| Date | Type | Book | Page | Price | Grantor | Grantee | |
|
6/12/1995 |
|
Historical |
$48,000 |
OMNI OIL & GAS INC |
STIFFLER DARIN & TAMARA L |
||
|
4/27/1995 |
|
Historical |
$45,000 |
ROSARIO JOEY H |
OMNI OIL & GAS INC |
||
|
5/31/1994 |
|
Historical |
$43,000 |
VORDERLAND CALVIN & CINDY |
ROSARIO JOEY H |
||
|
3/1/1978 |
|
Historical |
$0 |
|
VORDERLAND CALVIN & CINDY |
||
| Last Mailed Notice of Value (N.O.V.) Information/History | ||||||||
|---|---|---|---|---|---|---|---|---|
| Year | Date | Market Value | Taxable Market Value | Gross Assessed | Exemption | Net Assessed | ||
|
2026 |
02/06/2026 |
174,500 |
134,274 |
14,770 |
1,000 |
13,770 |
||
|
2025 |
01/31/2025 |
171,500 |
130,364 |
14,339 |
1,000 |
13,339 |
||
|
2024 |
01/22/2024 |
167,500 |
126,567 |
13,921 |
1,000 |
12,921 |
||
|
2023 |
01/23/2023 |
158,000 |
122,881 |
13,516 |
1,000 |
12,516 |
||
|
2022 |
02/22/2022 |
139,500 |
119,302 |
13,123 |
1,000 |
12,123 |
||
| Property Building Permit History | |||||||||||
|---|---|---|---|---|---|---|---|---|---|---|---|
| Issued | Permit # | Provided by | Bldg # | Description | Est Construction Cost | Status | |||||
| No Building Permit records returned. | |||||||||||
| Click button on building number to access detailed information: | ||||||
|---|---|---|---|---|---|---|
| Bldg # | Vacant/Improved Land | Bldg Description | Year Built | SqFt | # Stories | |
|
1 |
Improved |
Ranch 1 Story |
1971 |
1,168 |
1 Stories |
|