|
|
|
| Larry Stein Oklahoma County Assessor (405) 713-1200 - Public Access System |
|
|
|
|
|
|
| Real Property Display - Screen Produced 3/20/2026 6:24:00 PM | ||||
|---|---|---|---|---|
| Account: R180261540 | Type: Residential | Location: |
411 SUNNYSIDE PL |
|
| Building Name/Occupant: |
|
EDMOND |
||
| Owner Name 1: | WHITSON RODNEY L II & KATHRYN L TRS |
Parcel PIN#: |
4704-18-026-1540 |
|
| Owner Name 2: | WHITSON R L II & K L REV LIV TRUST | 1/4 section #: |
4704 |
|
| Owner Name 3: | Parent Acct: |
|
||
| Billing Address: | 3120 CARRIAGE PARK LN | Tax District: |
|
|
| City, State, Zip | EDMOND, OK 73003-2254 | School System: |
Edmond #12 |
|
|
Country: (If noted) |
Land Size: |
0.1313 Acres |
||
|
Land Value: 21,736 |
|
|||
|
Sect 26-T14N-R3W Qtr NW |
MEADOW LAKES ADD SEC 2
Block
007
Lot
021
|
|||
| Full Legal Description: MEADOW LAKES ADD SEC 2 007 021 |
| Photo & Sketch (if available) | Comp Sales (ordered by relevancy) |
|
||||||||||||||||||
|
||||||||||||||||||||
| Value History (*The County Treasurer 405-713-1300 posts & collects actual tax amounts. Contact information HERE) | |||||||||||||
|---|---|---|---|---|---|---|---|---|---|---|---|---|---|
| Year | Market Value | Taxable Mkt Value | Gross Assessed | Exemption | Net Assessed | Millage | Est. Tax | Tax Savings | |||||
|
2025 |
158,500 |
135,285 |
14,880 |
0 |
14,880 |
105.16 |
$1,565 |
$269 |
|||||
|
2024 |
155,000 |
128,843 |
14,171 |
0 |
14,171 |
105.03 |
$1,489 |
$302 |
|||||
|
2023 |
146,500 |
122,708 |
13,497 |
0 |
13,497 |
104.24 |
$1,407 |
$273 |
|||||
|
2022 |
130,000 |
116,865 |
12,855 |
0 |
12,855 |
104.64 |
$1,345 |
$151 |
|||||
|
2021 |
114,000 |
111,300 |
12,243 |
0 |
12,243 |
104.15 |
$1,275 |
$31 |
|||||
| Property Account Status/Adjustments/Exemptions | ||
|---|---|---|
| Account # | Exemption Description | Amount |
|
R180261540 |
5% Capped Account |
0 |
| Property Deed Transaction History (Recorded in the County Clerk's Office) | ||||||||||
|---|---|---|---|---|---|---|---|---|---|---|
| Date | Type | Book | Page | Price | Grantor | Grantee | ||||
|
10/31/2014 |
|
Deeds |
$0 |
WHITSON RODNEY L II & KATHRYN L |
WHITSON RODNEY L II & KATHRYN L TRS |
|||||
|
2/25/2014 |
|
Deeds |
$0 |
WHITSON RODNEY L II MCHENRY DANNY L |
WHITSON RODNEY L II MCHENRY DANNY L |
|||||
|
2/25/2014 |
|
Deeds |
$0 |
WHITSON RODNEY L II MCHENRY DANNY L |
WHITSON RODNEY L II & KATHRYN L |
|||||
|
4/15/2013 |
|
Deeds |
$0 |
WHITSON RODNEY L MCHENRY DANNY L |
WHITSON RODNEY L II MCHENRY DANNY L |
|||||
|
8/4/2011 |
|
Deeds |
$0 |
WHITSON RODNEY |
WHITSON RODNEY L MCHENRY DANNY L |
|||||
| Last Mailed Notice of Value (N.O.V.) Information/History | ||||||||
|---|---|---|---|---|---|---|---|---|
| Year | Date | Market Value | Taxable Market Value | Gross Assessed | Exemption | Net Assessed | ||
|
2026 |
02/06/2026 |
160,500 |
142,049 |
15,625 |
0 |
15,625 |
||
|
2025 |
01/31/2025 |
158,500 |
135,285 |
14,880 |
0 |
14,880 |
||
|
2024 |
01/22/2024 |
155,000 |
128,843 |
14,171 |
0 |
14,171 |
||
|
2023 |
01/23/2023 |
146,500 |
122,708 |
13,497 |
0 |
13,497 |
||
|
2022 |
02/22/2022 |
130,000 |
116,865 |
12,855 |
0 |
12,855 |
||
| Property Building Permit History | |||||||||||
|---|---|---|---|---|---|---|---|---|---|---|---|
| Issued | Permit # | Provided by | Bldg # | Description | Est Construction Cost | Status | |||||
| No Building Permit records returned. | |||||||||||
| Click button on building number to access detailed information: | ||||||
|---|---|---|---|---|---|---|
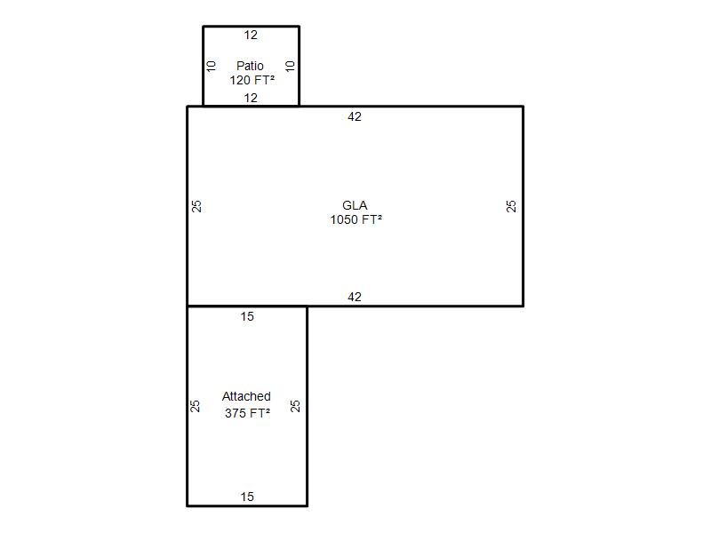
| Bldg # | Vacant/Improved Land | Bldg Description | Year Built | SqFt | # Stories | |
|
1 |
Improved |
Ranch 1 Story |
1971 |
1,050 |
1 Stories |
|