|
|
|
| Larry Stein Oklahoma County Assessor (405) 713-1200 - Public Access System |
|
|
|
|
|
|
| Real Property Display - Screen Produced 3/20/2026 10:53:54 PM | ||||
|---|---|---|---|---|
| Account: R182061340 | Type: Residential | Location: |
325 CEDAR CREST DR |
|
| Building Name/Occupant: |
|
EDMOND |
||
| Owner Name 1: | CASEY SARA E |
Parcel PIN#: |
4704-18-206-1340 |
|
| Owner Name 2: | 1/4 section #: |
4704 |
||
| Owner Name 3: | Parent Acct: |
|
||
| Billing Address: | 325 CEDAR CREST DR | Tax District: |
|
|
| City, State, Zip | EDMOND, OK 73003-5143 | School System: |
Edmond #12 |
|
|
Country: (If noted) |
Land Size: |
0.1654 Acres |
||
|
Land Value: 27,379 |
|
|||
|
Sect 26-T14N-R3W Qtr NW |
MEADOW LAKES SEC 4
Block
011
Lot
013
|
|||
| Full Legal Description: MEADOW LAKES SEC 4 011 013 |
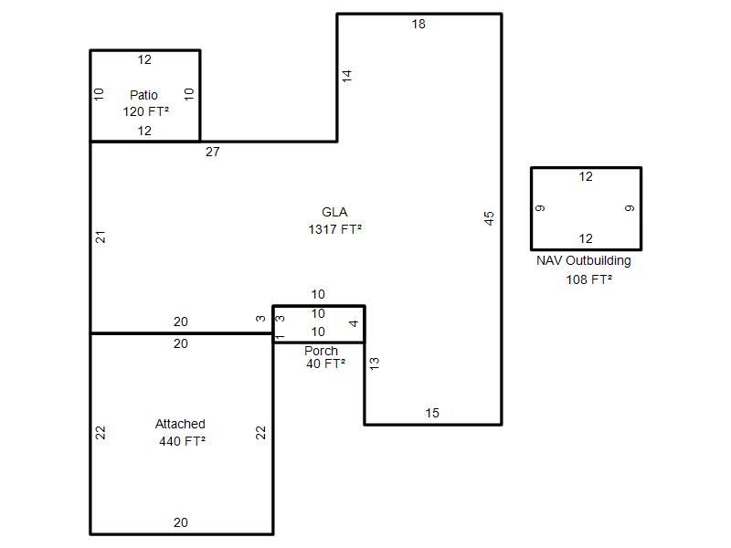
| Photo & Sketch (if available) | Comp Sales (ordered by relevancy) |
|
||||||||||||||||||
|
||||||||||||||||||||
| Value History (*The County Treasurer 405-713-1300 posts & collects actual tax amounts. Contact information HERE) | |||||||||||||
|---|---|---|---|---|---|---|---|---|---|---|---|---|---|
| Year | Market Value | Taxable Mkt Value | Gross Assessed | Exemption | Net Assessed | Millage | Est. Tax | Tax Savings | |||||
|
2025 |
190,000 |
139,279 |
15,320 |
1,000 |
14,320 |
105.16 |
$1,506 |
$692 |
|||||
|
2024 |
186,500 |
135,223 |
14,874 |
1,000 |
13,874 |
105.03 |
$1,457 |
$697 |
|||||
|
2023 |
175,500 |
131,285 |
14,440 |
1,000 |
13,440 |
104.24 |
$1,401 |
$611 |
|||||
|
2022 |
155,500 |
127,462 |
14,020 |
1,000 |
13,020 |
104.64 |
$1,362 |
$427 |
|||||
|
2021 |
136,500 |
123,750 |
13,612 |
1,000 |
12,612 |
104.15 |
$1,314 |
$250 |
|||||
| Property Account Status/Adjustments/Exemptions | ||
|---|---|---|
| Account # | Exemption Description | Amount |
|
R182061340 |
3% Cap Homestead |
0 |
|
R182061340 |
Homestead |
1,000 |
| Property Deed Transaction History (Recorded in the County Clerk's Office) | |||||||
|---|---|---|---|---|---|---|---|
| Date | Type | Book | Page | Price | Grantor | Grantee | |
|
5/17/2014 |
|
Deeds |
$0 |
CASEY ANDREW M |
CASEY SARA E |
||
|
10/10/2012 |
|
Deeds |
$0 |
CASEY SARA E & ANDREW M |
CASEY SARA E |
||
|
5/7/2010 |
|
Deeds |
$94,000 |
MARKS STEVEN W |
CASEY SARA E & ANDREW M |
||
|
5/4/2005 |
|
Deeds |
$95,000 |
FINLEY GLENN A & MARY E |
MARKS STEVEN W |
||
|
8/1/1979 |
|
Historical |
$0 |
|
FINLEY GLENN A & MARY E |
||
| Last Mailed Notice of Value (N.O.V.) Information/History | ||||||||
|---|---|---|---|---|---|---|---|---|
| Year | Date | Market Value | Taxable Market Value | Gross Assessed | Exemption | Net Assessed | ||
|
2026 |
02/06/2026 |
193,500 |
143,457 |
15,779 |
1,000 |
14,779 |
||
|
2025 |
01/31/2025 |
190,000 |
139,279 |
15,320 |
1,000 |
14,320 |
||
|
2024 |
01/22/2024 |
186,500 |
135,223 |
14,874 |
1,000 |
13,874 |
||
|
2023 |
01/23/2023 |
175,500 |
131,285 |
14,440 |
1,000 |
13,440 |
||
|
2022 |
02/22/2022 |
155,500 |
127,462 |
14,020 |
1,000 |
13,020 |
||
| Property Building Permit History | |||||||||||
|---|---|---|---|---|---|---|---|---|---|---|---|
| Issued | Permit # | Provided by | Bldg # | Description | Est Construction Cost | Status | |||||
| No Building Permit records returned. | |||||||||||
| Click button on building number to access detailed information: | ||||||
|---|---|---|---|---|---|---|
| Bldg # | Vacant/Improved Land | Bldg Description | Year Built | SqFt | # Stories | |
|
1 |
Improved |
Ranch 1 Story |
1973 |
1,317 |
1 Stories |
|