|
|
|
| Larry Stein Oklahoma County Assessor (405) 713-1200 - Public Access System |
|
|
|
|
|
|
| Real Property Display - Screen Produced 3/20/2026 10:50:12 PM | ||||
|---|---|---|---|---|
| Account: R182061470 | Type: Residential | Location: |
337 MEADOW LAKE DR |
|
| Building Name/Occupant: |
|
EDMOND |
||
| Owner Name 1: | HOOVER SUNNA J |
Parcel PIN#: |
4704-18-206-1470 |
|
| Owner Name 2: | 1/4 section #: |
4704 |
||
| Owner Name 3: | Parent Acct: |
|
||
| Billing Address: | 337 MEADOW LAKE DR | Tax District: |
|
|
| City, State, Zip | EDMOND , OK 73003 | School System: |
Edmond #12 |
|
|
Country: (If noted) |
Land Size: |
0.1531 Acres |
||
|
Land Value: 25,346 |
|
|||
|
Sect 26-T14N-R3W Qtr NW |
MEADOW LAKES SEC 4
Block
012
Lot
010
|
|||
| Full Legal Description: MEADOW LAKES SEC 4 012 010 |
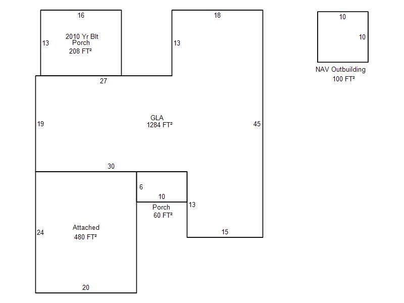
| Photo & Sketch (if available) | Comp Sales (ordered by relevancy) |
|
||||||||||||||||||
|
||||||||||||||||||||
| Value History (*The County Treasurer 405-713-1300 posts & collects actual tax amounts. Contact information HERE) | |||||||||||||
|---|---|---|---|---|---|---|---|---|---|---|---|---|---|
| Year | Market Value | Taxable Mkt Value | Gross Assessed | Exemption | Net Assessed | Millage | Est. Tax | Tax Savings | |||||
|
2025 |
220,500 |
133,500 |
14,685 |
1,000 |
13,685 |
105.16 |
$1,439 |
$1,112 |
|||||
|
2024 |
216,500 |
133,500 |
14,685 |
1,000 |
13,685 |
105.03 |
$1,437 |
$1,064 |
|||||
|
2023 |
202,000 |
133,500 |
14,685 |
1,000 |
13,685 |
104.24 |
$1,427 |
$890 |
|||||
|
2022 |
178,500 |
133,500 |
14,685 |
1,000 |
13,685 |
104.64 |
$1,432 |
$623 |
|||||
|
2021 |
133,500 |
133,500 |
14,685 |
1,000 |
13,685 |
104.15 |
$1,425 |
$104 |
|||||
| Property Account Status/Adjustments/Exemptions | ||
|---|---|---|
| Account # | Exemption Description | Amount |
|
R182061470 |
Freeze Senior Valuation |
0 |
|
R182061470 |
3% Cap Homestead |
0 |
|
R182061470 |
Homestead |
1,000 |
| Property Deed Transaction History (Recorded in the County Clerk's Office) | ||||||||||
|---|---|---|---|---|---|---|---|---|---|---|
| Date | Type | Book | Page | Price | Grantor | Grantee | ||||
|
4/9/2018 |
|
Deeds |
$0 |
HERRERA SUNNA J |
HOOVER SUNNA J |
|||||
|
3/7/2018 |
|
Deeds |
$0 |
HERRERA SUNNA J |
HERRERA SUNNA J |
|||||
|
7/6/2017 |
|
Deeds |
$133,500 |
FULLER RYAN M |
HERRERA SUNNA J |
|||||
|
8/5/2015 |
|
Deeds |
$121,500 |
LIETZ KRISTINA V |
FULLER RYAN M |
|||||
|
8/3/2006 |
|
Deeds |
$110,000 |
KALIDY DR SABIH |
LIETZ KRISTINA V |
|||||
| Last Mailed Notice of Value (N.O.V.) Information/History | ||||||||
|---|---|---|---|---|---|---|---|---|
| Year | Date | Market Value | Taxable Market Value | Gross Assessed | Exemption | Net Assessed | ||
|
2026 |
02/06/2026 |
225,000 |
133,500 |
14,685 |
1,000 |
13,685 |
||
|
2025 |
01/31/2025 |
220,500 |
133,500 |
14,685 |
1,000 |
13,685 |
||
|
2024 |
01/22/2024 |
216,500 |
133,500 |
14,685 |
1,000 |
13,685 |
||
|
2023 |
01/23/2023 |
202,000 |
133,500 |
14,685 |
1,000 |
13,685 |
||
|
2022 |
02/22/2022 |
178,500 |
133,500 |
14,685 |
1,000 |
13,685 |
||
| Property Building Permit History | |||||||||||
|---|---|---|---|---|---|---|---|---|---|---|---|
| Issued | Permit # | Provided by | Bldg # | Description | Est Construction Cost | Status | |||||
| No Building Permit records returned. | |||||||||||
| Click button on building number to access detailed information: | ||||||
|---|---|---|---|---|---|---|
| Bldg # | Vacant/Improved Land | Bldg Description | Year Built | SqFt | # Stories | |
|
1 |
Improved |
Ranch 1 Story |
1974 |
1,284 |
1 Stories |
|