|
|
|
| Larry Stein Oklahoma County Assessor (405) 713-1200 - Public Access System |
|
|
|
|
|
|
| Real Property Display - Screen Produced 3/20/2026 10:50:10 PM | ||||
|---|---|---|---|---|
| Account: R182061480 | Type: Residential | Location: |
333 MEADOW LAKE DR |
|
| Building Name/Occupant: |
|
EDMOND |
||
| Owner Name 1: | HORTON JAMES B |
Parcel PIN#: |
4704-18-206-1480 |
|
| Owner Name 2: | 1/4 section #: |
4704 |
||
| Owner Name 3: | Parent Acct: |
|
||
| Billing Address: | 333 MEADOW LAKE DR | Tax District: |
|
|
| City, State, Zip | EDMOND, OK 73003-5115 | School System: |
Edmond #12 |
|
|
Country: (If noted) |
Land Size: |
0.1664 Acres |
||
|
Land Value: 27,550 |
|
|||
|
Sect 26-T14N-R3W Qtr NW |
MEADOW LAKES SEC 4
Block
012
Lot
011
|
|||
| Full Legal Description: MEADOW LAKES SEC 4 012 011 |
| Photo & Sketch (if available) | Comp Sales (ordered by relevancy) |
|
||||||||||||||||||
|
||||||||||||||||||||
| Value History (*The County Treasurer 405-713-1300 posts & collects actual tax amounts. Contact information HERE) | |||||||||||||
|---|---|---|---|---|---|---|---|---|---|---|---|---|---|
| Year | Market Value | Taxable Mkt Value | Gross Assessed | Exemption | Net Assessed | Millage | Est. Tax | Tax Savings | |||||
|
2025 |
177,000 |
134,669 |
14,813 |
1,000 |
13,813 |
105.16 |
$1,453 |
$595 |
|||||
|
2024 |
173,500 |
130,747 |
14,381 |
1,000 |
13,381 |
105.03 |
$1,406 |
$599 |
|||||
|
2023 |
163,500 |
126,939 |
13,962 |
1,000 |
12,962 |
104.24 |
$1,351 |
$523 |
|||||
|
2022 |
145,000 |
123,242 |
13,555 |
1,000 |
12,555 |
104.64 |
$1,314 |
$355 |
|||||
|
2021 |
127,000 |
119,653 |
13,161 |
1,000 |
12,161 |
104.15 |
$1,267 |
$188 |
|||||
| Property Account Status/Adjustments/Exemptions | ||
|---|---|---|
| Account # | Exemption Description | Amount |
|
R182061480 |
Homestead |
1,000 |
|
R182061480 |
3% Cap Homestead |
0 |
| Property Deed Transaction History (Recorded in the County Clerk's Office) | ||||||||||
|---|---|---|---|---|---|---|---|---|---|---|
| Date | Type | Book | Page | Price | Grantor | Grantee | ||||
|
6/25/2004 |
|
Deeds |
$86,000 |
VINSON KELLY D & DUSTIN |
HORTON JAMES B |
|||||
|
3/28/2002 |
|
Deeds |
$73,500 |
MILLER CHAD W & ELOISE K |
VINSON KELLY D & DUSTIN |
|||||
|
3/6/2002 |
|
Deeds |
$0 |
DIRICKSON TED G & MURA E |
MILLER CHAD W & ELOISE K |
|||||
|
10/25/1999 |
|
Other |
$0 |
DIRICKSON TED G DIRICKSON MURA E |
MILLER CHAD W & ELOISE K |
|||||
|
10/25/1993 |
|
Historical |
$43,000 |
LEONARD ROBERT E II & ADRIENNE |
DIRICKSON TED G |
|||||
| Last Mailed Notice of Value (N.O.V.) Information/History | ||||||||
|---|---|---|---|---|---|---|---|---|
| Year | Date | Market Value | Taxable Market Value | Gross Assessed | Exemption | Net Assessed | ||
|
2026 |
02/06/2026 |
179,500 |
138,709 |
15,257 |
1,000 |
14,257 |
||
|
2025 |
01/31/2025 |
177,000 |
134,669 |
14,813 |
1,000 |
13,813 |
||
|
2024 |
01/22/2024 |
173,500 |
130,747 |
14,381 |
1,000 |
13,381 |
||
|
2023 |
01/23/2023 |
163,500 |
126,939 |
13,962 |
1,000 |
12,962 |
||
|
2022 |
02/22/2022 |
145,000 |
123,242 |
13,555 |
1,000 |
12,555 |
||
| Property Building Permit History | |||||||||||
|---|---|---|---|---|---|---|---|---|---|---|---|
| Issued | Permit # | Provided by | Bldg # | Description | Est Construction Cost | Status | |||||
| No Building Permit records returned. | |||||||||||
| Click button on building number to access detailed information: | ||||||
|---|---|---|---|---|---|---|
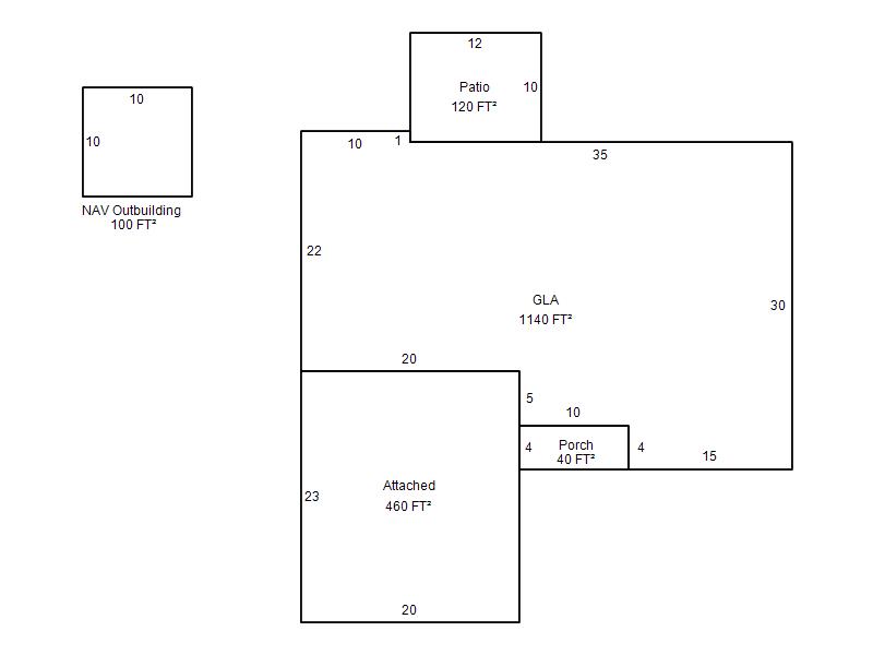
| Bldg # | Vacant/Improved Land | Bldg Description | Year Built | SqFt | # Stories | |
|
1 |
Improved |
Ranch 1 Story |
1974 |
1,140 |
1 Stories |
|