|
|
|
| Larry Stein Oklahoma County Assessor (405) 713-1200 - Public Access System |
|
|
|
|
|
|
| Real Property Display - Screen Produced 3/20/2026 10:48:31 PM | ||||
|---|---|---|---|---|
| Account: R182061580 | Type: Residential | Location: |
621 WINDING LN |
|
| Building Name/Occupant: |
|
EDMOND |
||
| Owner Name 1: | COOPER ZACHARIAH |
Parcel PIN#: |
4704-18-206-1580 |
|
| Owner Name 2: | 1/4 section #: |
4704 |
||
| Owner Name 3: | Parent Acct: |
|
||
| Billing Address: | 621 WINDING LN | Tax District: |
|
|
| City, State, Zip | EDMOND , OK 73003-5103 | School System: |
Edmond #12 |
|
|
Country: (If noted) |
Land Size: |
0.1361 Acres |
||
|
Land Value: 22,526 |
|
|||
|
Sect 26-T14N-R3W Qtr NW |
MEADOW LAKES SEC 4
Block
014
Lot
002
|
|||
| Full Legal Description: MEADOW LAKES SEC 4 014 002 |
| Photo & Sketch (if available) | Comp Sales (ordered by relevancy) |
|
||||||||||||||||||
|
||||||||||||||||||||
| Value History (*The County Treasurer 405-713-1300 posts & collects actual tax amounts. Contact information HERE) | |||||||||||||
|---|---|---|---|---|---|---|---|---|---|---|---|---|---|
| Year | Market Value | Taxable Mkt Value | Gross Assessed | Exemption | Net Assessed | Millage | Est. Tax | Tax Savings | |||||
|
2025 |
194,000 |
148,385 |
16,322 |
1,000 |
15,322 |
105.16 |
$1,611 |
$633 |
|||||
|
2024 |
190,500 |
144,064 |
15,846 |
1,000 |
14,846 |
105.03 |
$1,559 |
$642 |
|||||
|
2023 |
178,000 |
139,868 |
15,385 |
1,000 |
14,385 |
104.24 |
$1,500 |
$541 |
|||||
|
2022 |
157,500 |
135,795 |
14,937 |
1,000 |
13,937 |
104.64 |
$1,458 |
$354 |
|||||
|
2021 |
138,000 |
131,840 |
14,502 |
1,000 |
13,502 |
104.15 |
$1,406 |
$175 |
|||||
| Property Account Status/Adjustments/Exemptions | ||
|---|---|---|
| Account # | Exemption Description | Amount |
|
R182061580 |
Homestead |
1,000 |
|
R182061580 |
3% Cap Homestead |
0 |
| Property Deed Transaction History (Recorded in the County Clerk's Office) | ||||||||||
|---|---|---|---|---|---|---|---|---|---|---|
| Date | Type | Book | Page | Price | Grantor | Grantee | ||||
|
7/26/2019 |
|
Hmstd Off & |
$0 |
COOPER JANEENE |
COOPER ZACHARIAH |
|||||
|
3/30/2016 |
|
Deeds |
$0 |
COOPER JANEENE |
COOPER JANEENE |
|||||
|
7/20/2015 |
|
Deeds |
$114,000 |
SMITH MARIA D & JEREMY J |
COOPER JANEENE |
|||||
|
2/17/2010 |
|
Deeds |
$98,000 |
TAYLOR CINDY E |
SMITH MARIA D & JEREMY J |
|||||
|
5/31/1996 |
|
Historical |
$54,000 |
GRAHAM PATTY L |
TAYLOR CINDY E |
|||||
| Last Mailed Notice of Value (N.O.V.) Information/History | ||||||||
|---|---|---|---|---|---|---|---|---|
| Year | Date | Market Value | Taxable Market Value | Gross Assessed | Exemption | Net Assessed | ||
|
2026 |
02/06/2026 |
197,000 |
152,836 |
16,811 |
1,000 |
15,811 |
||
|
2025 |
01/31/2025 |
194,000 |
148,385 |
16,322 |
1,000 |
15,322 |
||
|
2024 |
01/22/2024 |
190,500 |
144,064 |
15,846 |
1,000 |
14,846 |
||
|
2023 |
01/23/2023 |
178,000 |
139,868 |
15,385 |
1,000 |
14,385 |
||
|
2022 |
02/22/2022 |
157,500 |
135,795 |
14,937 |
1,000 |
13,937 |
||
| Property Building Permit History | |||||||||||
|---|---|---|---|---|---|---|---|---|---|---|---|
| Issued | Permit # | Provided by | Bldg # | Description | Est Construction Cost | Status | |||||
| No Building Permit records returned. | |||||||||||
| Click button on building number to access detailed information: | ||||||
|---|---|---|---|---|---|---|
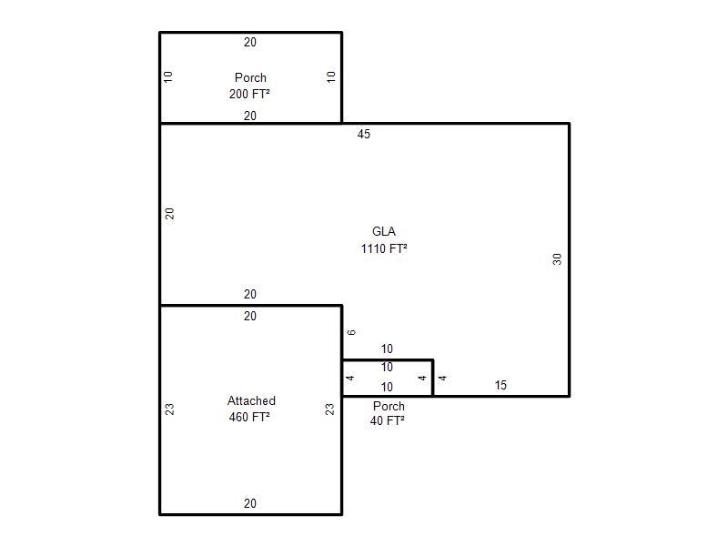
| Bldg # | Vacant/Improved Land | Bldg Description | Year Built | SqFt | # Stories | |
|
1 |
Improved |
Ranch 1 Story |
1975 |
1,110 |
1 Stories |
|