|
|
|
| Larry Stein Oklahoma County Assessor (405) 713-1200 - Public Access System |
|
|
|
|
|
|
| Real Property Display - Screen Produced 3/20/2026 10:50:13 PM | ||||
|---|---|---|---|---|
| Account: R182061710 | Type: Residential | Location: |
708 PARKHURST TER |
|
| Building Name/Occupant: |
|
EDMOND |
||
| Owner Name 1: | COX CHRISTOPHER W |
Parcel PIN#: |
4704-18-206-1710 |
|
| Owner Name 2: | COX KILEE M | 1/4 section #: |
4704 |
|
| Owner Name 3: | Parent Acct: |
|
||
| Billing Address: | 708 PARKHURST TER | Tax District: |
|
|
| City, State, Zip | EDMOND , OK 73003-5062 | School System: |
Edmond #12 |
|
|
Country: (If noted) |
Land Size: |
0.1389 Acres |
||
|
Land Value: 22,990 |
|
|||
|
Sect 26-T14N-R3W Qtr NW |
MEADOW LAKES SEC 4
Block
014
Lot
015
|
|||
| Full Legal Description: MEADOW LAKES SEC 4 014 015 |
| Photo & Sketch (if available) | Comp Sales (ordered by relevancy) |
|
||||||||||||||||||
|
||||||||||||||||||||
| Value History (*The County Treasurer 405-713-1300 posts & collects actual tax amounts. Contact information HERE) | |||||||||||||
|---|---|---|---|---|---|---|---|---|---|---|---|---|---|
| Year | Market Value | Taxable Mkt Value | Gross Assessed | Exemption | Net Assessed | Millage | Est. Tax | Tax Savings | |||||
|
2025 |
244,000 |
214,536 |
23,598 |
0 |
23,598 |
105.16 |
$2,482 |
$341 |
|||||
|
2024 |
240,000 |
204,320 |
22,475 |
0 |
22,475 |
105.03 |
$2,361 |
$412 |
|||||
|
2023 |
224,500 |
194,591 |
21,404 |
0 |
21,404 |
104.24 |
$2,231 |
$343 |
|||||
|
2022 |
199,500 |
185,325 |
20,385 |
0 |
20,385 |
104.64 |
$2,133 |
$163 |
|||||
|
2021 |
176,500 |
176,500 |
19,415 |
0 |
19,415 |
104.15 |
$2,022 |
$0 |
|||||
| Property Account Status/Adjustments/Exemptions | ||
|---|---|---|
| Account # | Exemption Description | Amount |
|
R182061710 |
5% Capped Account |
0 |
| Property Deed Transaction History (Recorded in the County Clerk's Office) | ||||||||||
|---|---|---|---|---|---|---|---|---|---|---|
| Date | Type | Book | Page | Price | Grantor | Grantee | ||||
|
7/22/2019 |
|
Deeds |
$177,000 |
WOODALL MICHAELE JOLYNNE |
COX CHRISTOPHER W |
|||||
|
8/31/2018 |
|
Deeds |
$168,000 |
BELL AUSTIN TANNER |
WOODALL MICHAELE JOLYNNE |
|||||
|
3/15/2017 |
|
Deeds |
$154,000 |
DJP PROPERTIES LLC |
BELL AUSTIN TANNER |
|||||
|
9/27/2016 |
|
Deeds |
$88,500 |
DEUTSCHE BANNK NATIONAL TRUST CO |
DJP PROPERTIES LLC |
|||||
|
2/3/2015 |
|
Hmstd Off & |
$0 |
MAGRUDER DAVID R & MARIE D |
DEUTSCHE BANNK NATIONAL TRUST CO |
|||||
| Last Mailed Notice of Value (N.O.V.) Information/History | ||||||||
|---|---|---|---|---|---|---|---|---|
| Year | Date | Market Value | Taxable Market Value | Gross Assessed | Exemption | Net Assessed | ||
|
2026 |
02/06/2026 |
249,500 |
225,262 |
24,777 |
0 |
24,777 |
||
|
2025 |
01/31/2025 |
244,000 |
214,536 |
23,598 |
0 |
23,598 |
||
|
2024 |
01/22/2024 |
240,000 |
204,320 |
22,475 |
0 |
22,475 |
||
|
2023 |
01/23/2023 |
224,500 |
194,591 |
21,404 |
0 |
21,404 |
||
|
2022 |
02/22/2022 |
199,500 |
185,325 |
20,385 |
0 |
20,385 |
||
| Property Building Permit History | |||||||||||
|---|---|---|---|---|---|---|---|---|---|---|---|
| Issued | Permit # | Provided by | Bldg # | Description | Est Construction Cost | Status | |||||
| No Building Permit records returned. | |||||||||||
| Click button on building number to access detailed information: | ||||||
|---|---|---|---|---|---|---|
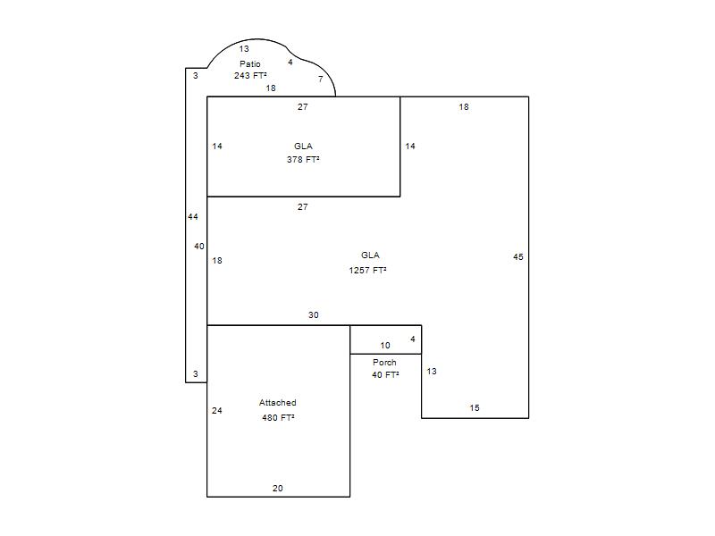
| Bldg # | Vacant/Improved Land | Bldg Description | Year Built | SqFt | # Stories | |
|
1 |
Improved |
Ranch 1 Story |
1975 |
1,635 |
1 Stories |
|