|
|
|
| Larry Stein Oklahoma County Assessor (405) 713-1200 - Public Access System |
|
|
|
|
|
|
| Real Property Display - Screen Produced 3/20/2026 10:48:31 PM | ||||
|---|---|---|---|---|
| Account: R182061810 | Type: Residential | Location: |
608 HOLLY HILL RD |
|
| Building Name/Occupant: |
|
EDMOND |
||
| Owner Name 1: | KRISCHEL JOHN |
Parcel PIN#: |
4704-18-206-1810 |
|
| Owner Name 2: | KRISCHEL LARICA | 1/4 section #: |
4704 |
|
| Owner Name 3: | Parent Acct: |
|
||
| Billing Address: | 608 HOLLY HILL RD | Tax District: |
|
|
| City, State, Zip | EDMOND, OK 73003-5032 | School System: |
Edmond #12 |
|
|
Country: (If noted) |
Land Size: |
0.1411 Acres |
||
|
Land Value: 23,362 |
|
|||
|
Sect 26-T14N-R3W Qtr NW |
MEADOW LAKES SEC 4
Block
014
Lot
000
|
|||
| Full Legal Description: MEADOW LAKES SEC 4 014 000 ALL LOT 25 EX NLY 3FT |
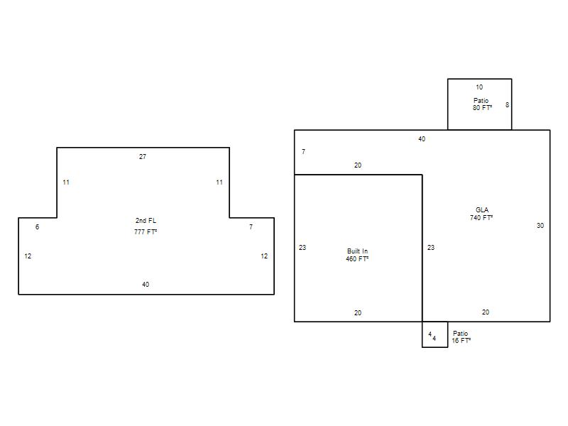
| Photo & Sketch (if available) | Comp Sales (ordered by relevancy) |
|
||||||||||||||||||
|
||||||||||||||||||||
| Value History (*The County Treasurer 405-713-1300 posts & collects actual tax amounts. Contact information HERE) | |||||||||||||
|---|---|---|---|---|---|---|---|---|---|---|---|---|---|
| Year | Market Value | Taxable Mkt Value | Gross Assessed | Exemption | Net Assessed | Millage | Est. Tax | Tax Savings | |||||
|
2025 |
214,500 |
166,030 |
18,262 |
1,000 |
17,262 |
105.16 |
$1,815 |
$666 |
|||||
|
2024 |
210,500 |
161,195 |
17,731 |
1,000 |
16,731 |
105.03 |
$1,757 |
$675 |
|||||
|
2023 |
199,500 |
156,500 |
17,214 |
1,000 |
16,214 |
104.24 |
$1,690 |
$597 |
|||||
|
2022 |
175,500 |
151,942 |
16,712 |
1,000 |
15,712 |
104.64 |
$1,644 |
$376 |
|||||
|
2021 |
154,500 |
147,517 |
16,226 |
1,000 |
15,226 |
104.15 |
$1,586 |
$184 |
|||||
| Property Account Status/Adjustments/Exemptions | ||
|---|---|---|
| Account # | Exemption Description | Amount |
|
R182061810 |
3% Cap Homestead |
0 |
|
R182061810 |
Homestead |
1,000 |
| Property Deed Transaction History (Recorded in the County Clerk's Office) | |||||||
|---|---|---|---|---|---|---|---|
| Date | Type | Book | Page | Price | Grantor | Grantee | |
|
4/19/2002 |
|
Deeds |
$89,000 |
BOYER KENNY R MANSPEAKER SHERRY R |
KRISCHEL JOHN |
||
|
9/3/1996 |
|
Historical |
$67,000 |
DEAN GLENN C & TAMARA L |
BOYER KENNY R |
||
|
12/12/1990 |
|
Historical |
$49,000 |
SMITH HAROLD L & JO ANN |
DEAN GLENN C & TAMARA L |
||
|
10/1/1977 |
|
Historical |
$0 |
|
SMITH HAROLD L & JO ANN |
||
| Last Mailed Notice of Value (N.O.V.) Information/History | ||||||||
|---|---|---|---|---|---|---|---|---|
| Year | Date | Market Value | Taxable Market Value | Gross Assessed | Exemption | Net Assessed | ||
|
2026 |
02/06/2026 |
218,000 |
171,010 |
18,810 |
1,000 |
17,810 |
||
|
2025 |
01/31/2025 |
214,500 |
166,030 |
18,262 |
1,000 |
17,262 |
||
|
2024 |
01/22/2024 |
210,500 |
161,195 |
17,731 |
1,000 |
16,731 |
||
|
2023 |
01/23/2023 |
199,500 |
156,500 |
17,214 |
1,000 |
16,214 |
||
|
2022 |
02/22/2022 |
175,500 |
151,942 |
16,712 |
1,000 |
15,712 |
||
| Property Building Permit History | ||||||
|---|---|---|---|---|---|---|
| Issued | Permit # | Provided by | Bldg # | Description | Est Construction Cost | Status |
|
11/1/1996 |
10257309 |
EDMOND |
1 |
Fire Remodel |
5,000 |
Inactive |
| Click button on building number to access detailed information: | ||||||
|---|---|---|---|---|---|---|
| Bldg # | Vacant/Improved Land | Bldg Description | Year Built | SqFt | # Stories | |
|
1 |
Improved |
2 Story |
1976 |
1,517 |
2 Stories |
|