|
|
|
| Larry Stein Oklahoma County Assessor (405) 713-1200 - Public Access System |
|
|
|
|
|
|
| Real Property Display - Screen Produced 3/20/2026 10:50:11 PM | ||||
|---|---|---|---|---|
| Account: R182061890 | Type: Residential | Location: |
604 KAY HILL LN |
|
| Building Name/Occupant: |
|
EDMOND |
||
| Owner Name 1: | BROWN GARY E & KATHRYN E |
Parcel PIN#: |
4704-18-206-1890 |
|
| Owner Name 2: | 1/4 section #: |
4704 |
||
| Owner Name 3: | Parent Acct: |
|
||
| Billing Address: | 708 ADAMS TRL | Tax District: |
|
|
| City, State, Zip | EDMOND, OK 73012-4313 | School System: |
Edmond #12 |
|
|
Country: (If noted) |
Land Size: |
0.1598 Acres |
||
|
Land Value: 26,448 |
|
|||
|
Sect 26-T14N-R3W Qtr NW |
MEADOW LAKES SEC 4
Block
015
Lot
007
|
|||
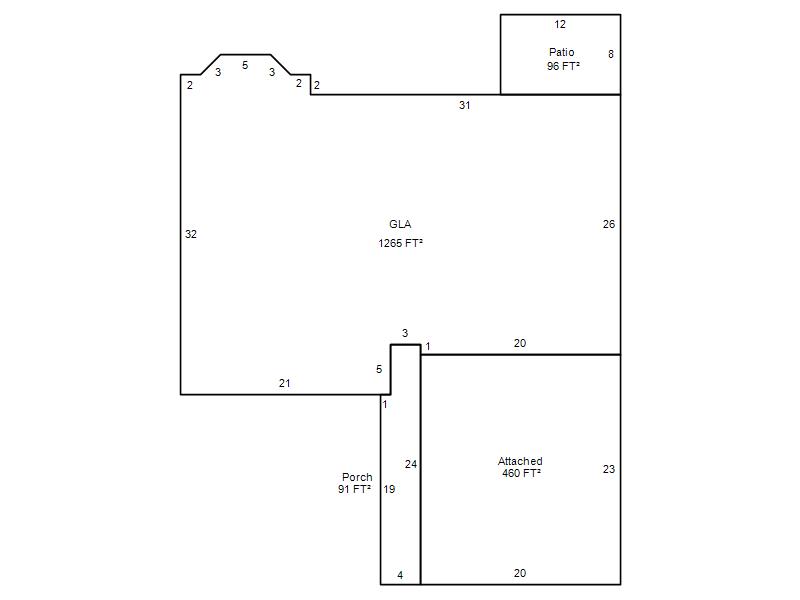
| Full Legal Description: MEADOW LAKES SEC 4 015 007 |
| Photo & Sketch (if available) | Comp Sales (ordered by relevancy) |
|
||||||||||||||||||
|
||||||||||||||||||||
| Value History (*The County Treasurer 405-713-1300 posts & collects actual tax amounts. Contact information HERE) | |||||||||||||
|---|---|---|---|---|---|---|---|---|---|---|---|---|---|
| Year | Market Value | Taxable Mkt Value | Gross Assessed | Exemption | Net Assessed | Millage | Est. Tax | Tax Savings | |||||
|
2025 |
217,500 |
186,336 |
20,496 |
0 |
20,496 |
105.16 |
$2,155 |
$360 |
|||||
|
2024 |
214,500 |
177,463 |
19,520 |
0 |
19,520 |
105.03 |
$2,050 |
$428 |
|||||
|
2023 |
201,000 |
169,013 |
18,591 |
0 |
18,591 |
104.24 |
$1,938 |
$367 |
|||||
|
2022 |
178,500 |
160,965 |
17,706 |
0 |
17,706 |
104.64 |
$1,853 |
$202 |
|||||
|
2021 |
158,000 |
153,300 |
16,863 |
0 |
16,863 |
104.15 |
$1,756 |
$54 |
|||||
| Property Account Status/Adjustments/Exemptions | ||
|---|---|---|
| Account # | Exemption Description | Amount |
|
R182061890 |
5% Capped Account |
0 |
| Property Deed Transaction History (Recorded in the County Clerk's Office) | ||||||||||
|---|---|---|---|---|---|---|---|---|---|---|
| Date | Type | Book | Page | Price | Grantor | Grantee | ||||
|
5/19/2014 |
|
Deeds |
$136,000 |
SAMS AMANDA L |
BROWN GARY E & KATHRYN E |
|||||
|
10/26/2009 |
|
Deeds |
$113,500 |
MAULDIN ALAN L & MICHELLE E |
SAMS AMANDA L |
|||||
|
2/23/1994 |
|
Historical |
$0 |
SECRETARY OF HOUSING |
MAULDIN ALAN L & MICHELLE E |
|||||
|
10/26/1993 |
|
Historical |
$0 |
SHAW CHARLES R & MARY |
SECRETARY OF HOUSING |
|||||
|
7/6/1990 |
|
Historical |
$45,000 |
WEBSTER DAVID WAYNE & CAROLYN |
SHAW CHARLES R & MARY |
|||||
| Last Mailed Notice of Value (N.O.V.) Information/History | ||||||||
|---|---|---|---|---|---|---|---|---|
| Year | Date | Market Value | Taxable Market Value | Gross Assessed | Exemption | Net Assessed | ||
|
2026 |
02/06/2026 |
221,500 |
195,652 |
21,520 |
0 |
21,520 |
||
|
2025 |
01/31/2025 |
217,500 |
186,336 |
20,496 |
0 |
20,496 |
||
|
2024 |
01/22/2024 |
214,500 |
177,463 |
19,520 |
0 |
19,520 |
||
|
2023 |
01/23/2023 |
201,000 |
169,013 |
18,591 |
0 |
18,591 |
||
|
2022 |
02/22/2022 |
178,500 |
160,965 |
17,706 |
0 |
17,706 |
||
| Property Building Permit History | |||||||||||
|---|---|---|---|---|---|---|---|---|---|---|---|
| Issued | Permit # | Provided by | Bldg # | Description | Est Construction Cost | Status | |||||
| No Building Permit records returned. | |||||||||||
| Click button on building number to access detailed information: | ||||||
|---|---|---|---|---|---|---|
| Bldg # | Vacant/Improved Land | Bldg Description | Year Built | SqFt | # Stories | |
|
1 |
Improved |
Ranch 1 Story |
1975 |
1,265 |
1 Stories |
|