|
|
|
| Larry Stein Oklahoma County Assessor (405) 713-1200 - Public Access System |
|
|
|
|
|
|
| Real Property Display - Screen Produced 3/20/2026 10:52:46 PM | ||||
|---|---|---|---|---|
| Account: R183151090 | Type: Residential | Location: |
708 ROBIN HILL RD |
|
| Building Name/Occupant: |
|
EDMOND |
||
| Owner Name 1: | GEURIN PAUL VAN |
Parcel PIN#: |
4704-18-315-1090 |
|
| Owner Name 2: | 1/4 section #: |
4704 |
||
| Owner Name 3: | Parent Acct: |
|
||
| Billing Address: | 708 ROBIN HILL RD | Tax District: |
|
|
| City, State, Zip | EDMOND, OK 73003-5110 | School System: |
Edmond #12 |
|
|
Country: (If noted) |
Land Size: |
0.1515 Acres |
||
|
Land Value: 25,080 |
|
|||
|
Sect 26-T14N-R3W Qtr NW |
MEADOW LAKES SEC 3
Block
008
Lot
010
|
|||
| Full Legal Description: MEADOW LAKES SEC 3 008 010 |
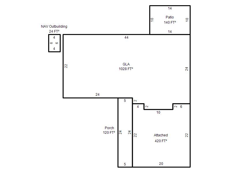
| Photo & Sketch (if available) | Comp Sales (ordered by relevancy) |
|
||||||||||||||||||
|
||||||||||||||||||||
| Value History (*The County Treasurer 405-713-1300 posts & collects actual tax amounts. Contact information HERE) | |||||||||||||
|---|---|---|---|---|---|---|---|---|---|---|---|---|---|
| Year | Market Value | Taxable Mkt Value | Gross Assessed | Exemption | Net Assessed | Millage | Est. Tax | Tax Savings | |||||
|
2025 |
168,000 |
123,600 |
13,596 |
13,596 |
0 |
105.16 |
$0 |
$1,943 |
|||||
|
2024 |
164,500 |
120,000 |
13,199 |
13,199 |
0 |
105.03 |
$0 |
$1,900 |
|||||
|
2023 |
155,000 |
116,505 |
12,815 |
12,815 |
0 |
104.24 |
$0 |
$1,777 |
|||||
|
2022 |
137,500 |
113,112 |
12,441 |
12,441 |
0 |
104.64 |
$0 |
$1,583 |
|||||
|
2021 |
120,500 |
109,818 |
12,079 |
12,079 |
0 |
104.15 |
$0 |
$1,380 |
|||||
| Property Account Status/Adjustments/Exemptions | ||
|---|---|---|
| Account # | Exemption Description | Amount |
|
R183151090 |
100% DAV Exemption |
100 |
|
R183151090 |
3% Cap Homestead |
0 |
|
R183151090 |
DAV Homestead |
0 |
| Property Deed Transaction History (Recorded in the County Clerk's Office) | ||||||||||
|---|---|---|---|---|---|---|---|---|---|---|
| Date | Type | Book | Page | Price | Grantor | Grantee | ||||
|
12/4/2007 |
|
Deeds |
$95,000 |
SOLTANI NASROLLAH & DIANNE |
GEURIN PAUL VAN |
|||||
|
8/13/2004 |
|
Deeds |
$73,500 |
JONES MATHEW G JR & SHERYL |
SOLTANI NASROLLAH & DIANNE |
|||||
|
5/22/1998 |
|
Historical |
$0 |
JONES MATHEW G JR & SHERYL |
JONES MATHEW G JR & SHERYL |
|||||
|
4/15/1998 |
|
Historical |
$0 |
RAY DONNA DIANE |
JONES MATHEW G JR & SHERYL |
|||||
|
3/2/1992 |
|
Historical |
$0 |
RAY RANDALL B & DONNA |
RAY DONNA DIANE |
|||||
| Last Mailed Notice of Value (N.O.V.) Information/History | ||||||||
|---|---|---|---|---|---|---|---|---|
| Year | Date | Market Value | Taxable Market Value | Gross Assessed | Exemption | Net Assessed | ||
|
2026 |
02/06/2026 |
170,000 |
127,308 |
14,003 |
14,003 |
0 |
||
|
2025 |
01/31/2025 |
168,000 |
123,600 |
13,596 |
13,596 |
0 |
||
|
2024 |
01/22/2024 |
164,500 |
120,000 |
13,199 |
13,199 |
0 |
||
|
2023 |
01/23/2023 |
155,000 |
116,505 |
12,815 |
12,815 |
0 |
||
|
2022 |
02/22/2022 |
137,500 |
113,112 |
12,441 |
12,441 |
0 |
||
| Property Building Permit History | |||||||||||
|---|---|---|---|---|---|---|---|---|---|---|---|
| Issued | Permit # | Provided by | Bldg # | Description | Est Construction Cost | Status | |||||
| No Building Permit records returned. | |||||||||||
| Click button on building number to access detailed information: | ||||||
|---|---|---|---|---|---|---|
| Bldg # | Vacant/Improved Land | Bldg Description | Year Built | SqFt | # Stories | |
|
1 |
Improved |
Ranch 1 Story |
1973 |
1,028 |
1 Stories |
|