|
|
|
| Larry Stein Oklahoma County Assessor (405) 713-1200 - Public Access System |
|
|
|
|
|
|
| Real Property Display - Screen Produced 3/23/2026 5:35:35 AM | ||||
|---|---|---|---|---|
| Account: R183151420 | Type: Residential | Location: |
604 WILLOW RIDGE PL |
|
| Building Name/Occupant: |
|
EDMOND |
||
| Owner Name 1: | TIPPENS LAND & CATTLE LLC |
Parcel PIN#: |
4704-18-315-1420 |
|
| Owner Name 2: | 1/4 section #: |
4704 |
||
| Owner Name 3: | Parent Acct: |
|
||
| Billing Address: | 6501 N BROADWAY | Tax District: |
|
|
| City, State, Zip | EDMOND, OK 73034-7817 | School System: |
Edmond #12 |
|
|
Country: (If noted) |
Land Size: |
0.1349 Acres |
||
|
Land Value: 22,329 |
|
|||
|
Sect 26-T14N-R3W Qtr NW |
MEADOW LAKES SEC 3
Block
009
Lot
016
|
|||
| Full Legal Description: MEADOW LAKES SEC 3 009 016 |
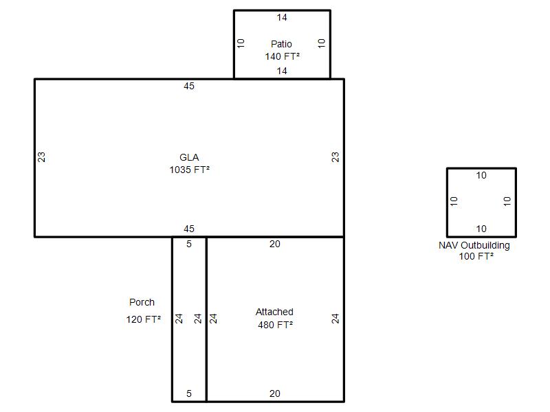
| Photo & Sketch (if available) | Comp Sales (ordered by relevancy) |
|
||||||||||||||||||
|
||||||||||||||||||||
| Value History (*The County Treasurer 405-713-1300 posts & collects actual tax amounts. Contact information HERE) | |||||||||||||
|---|---|---|---|---|---|---|---|---|---|---|---|---|---|
| Year | Market Value | Taxable Mkt Value | Gross Assessed | Exemption | Net Assessed | Millage | Est. Tax | Tax Savings | |||||
|
2025 |
148,000 |
139,750 |
15,372 |
0 |
15,372 |
105.16 |
$1,617 |
$95 |
|||||
|
2024 |
144,500 |
133,096 |
14,640 |
0 |
14,640 |
105.03 |
$1,538 |
$132 |
|||||
|
2023 |
151,500 |
126,759 |
13,942 |
0 |
13,942 |
104.24 |
$1,453 |
$284 |
|||||
|
2022 |
134,000 |
120,723 |
13,279 |
0 |
13,279 |
104.64 |
$1,390 |
$153 |
|||||
|
2021 |
117,000 |
114,975 |
12,647 |
0 |
12,647 |
104.15 |
$1,317 |
$23 |
|||||
| Property Account Status/Adjustments/Exemptions | ||
|---|---|---|
| Account # | Exemption Description | Amount |
|
R183151420 |
5% Capped Account |
0 |
| Property Deed Transaction History (Recorded in the County Clerk's Office) | |||||||
|---|---|---|---|---|---|---|---|
| Date | Type | Book | Page | Price | Grantor | Grantee | |
|
2/26/2019 |
|
Hmstd Off & |
$0 |
TIPPENS TERRY W & DONNA M |
TIPPENS LAND & CATTLE LLC |
||
|
4/24/1998 |
|
Historical |
$57,000 |
BEDFORD WILLIAM J JR |
TIPPENS TERRY W & DONNA M |
||
|
4/1/1998 |
|
Historical |
$0 |
BEDFORD WILLIAM J JR & DIANA |
BEDFORD WILLIAM J JR |
||
|
12/5/1988 |
|
Historical |
$40,500 |
HUFFER MARK W & ELAINE K |
BEDFORD WILLIAM J JR & DIANA |
||
|
4/1/1978 |
|
Historical |
$0 |
|
HUFFER MARK W & ELAINE K |
||
| Last Mailed Notice of Value (N.O.V.) Information/History | ||||||||
|---|---|---|---|---|---|---|---|---|
| Year | Date | Market Value | Taxable Market Value | Gross Assessed | Exemption | Net Assessed | ||
|
2026 |
02/06/2026 |
149,500 |
146,737 |
16,140 |
0 |
16,140 |
||
|
2025 |
01/31/2025 |
148,000 |
139,750 |
15,372 |
0 |
15,372 |
||
|
2024 |
01/22/2024 |
160,500 |
133,096 |
14,640 |
0 |
14,640 |
||
|
2023 |
01/23/2023 |
151,500 |
126,759 |
13,942 |
0 |
13,942 |
||
|
2022 |
02/22/2022 |
134,000 |
120,723 |
13,279 |
0 |
13,279 |
||
| Property Building Permit History | |||||||||||
|---|---|---|---|---|---|---|---|---|---|---|---|
| Issued | Permit # | Provided by | Bldg # | Description | Est Construction Cost | Status | |||||
| No Building Permit records returned. | |||||||||||
| Click button on building number to access detailed information: | ||||||
|---|---|---|---|---|---|---|
| Bldg # | Vacant/Improved Land | Bldg Description | Year Built | SqFt | # Stories | |
|
1 |
Improved |
Ranch 1 Story |
1972 |
1,035 |
1 Stories |
|