|
|
|
| Larry Stein Oklahoma County Assessor (405) 713-1200 - Public Access System |
|
|
|
|
|
|
| Real Property Display - Screen Produced 3/20/2026 10:52:47 PM | ||||
|---|---|---|---|---|
| Account: R183151950 | Type: Residential | Location: |
613 WINDING LN |
|
| Building Name/Occupant: |
|
EDMOND |
||
| Owner Name 1: | HOLMAN MICHAEL |
Parcel PIN#: |
4704-18-315-1950 |
|
| Owner Name 2: | 1/4 section #: |
4704 |
||
| Owner Name 3: | Parent Acct: |
|
||
| Billing Address: | 613 WINDING LN | Tax District: |
|
|
| City, State, Zip | EDMOND, OK 73003-5103 | School System: |
Edmond #12 |
|
|
Country: (If noted) |
Land Size: |
0.1389 Acres |
||
|
Land Value: 22,990 |
|
|||
|
Sect 26-T14N-R3W Qtr NW |
MEADOW LAKES SEC 3
Block
013
Lot
010
|
|||
| Full Legal Description: MEADOW LAKES SEC 3 013 010 |
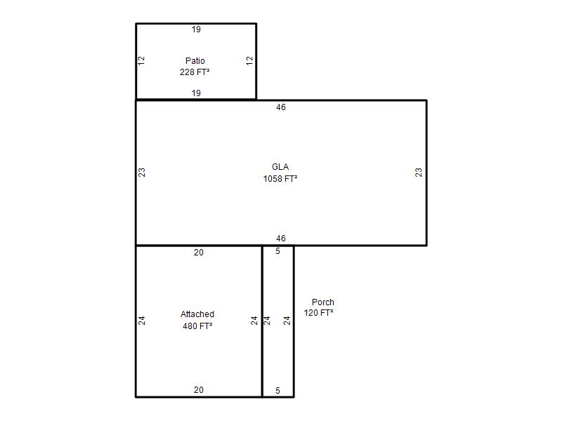
| Photo & Sketch (if available) | Comp Sales (ordered by relevancy) |
|
||||||||||||||||||
|
||||||||||||||||||||
| Value History (*The County Treasurer 405-713-1300 posts & collects actual tax amounts. Contact information HERE) | |||||||||||||
|---|---|---|---|---|---|---|---|---|---|---|---|---|---|
| Year | Market Value | Taxable Mkt Value | Gross Assessed | Exemption | Net Assessed | Millage | Est. Tax | Tax Savings | |||||
|
2025 |
168,500 |
131,767 |
14,494 |
1,000 |
13,494 |
105.16 |
$1,419 |
$530 |
|||||
|
2024 |
165,000 |
127,930 |
14,071 |
1,000 |
13,071 |
105.03 |
$1,373 |
$533 |
|||||
|
2023 |
155,500 |
124,204 |
13,661 |
1,000 |
12,661 |
104.24 |
$1,320 |
$463 |
|||||
|
2022 |
137,500 |
120,587 |
13,264 |
1,000 |
12,264 |
104.64 |
$1,283 |
$299 |
|||||
|
2021 |
120,500 |
117,075 |
12,878 |
0 |
12,878 |
104.15 |
$1,341 |
$39 |
|||||
| Property Account Status/Adjustments/Exemptions | ||
|---|---|---|
| Account # | Exemption Description | Amount |
|
R183151950 |
Homestead |
1,000 |
|
R183151950 |
3% Cap Homestead |
0 |
| Property Deed Transaction History (Recorded in the County Clerk's Office) | ||||||||||
|---|---|---|---|---|---|---|---|---|---|---|
| Date | Type | Book | Page | Price | Grantor | Grantee | ||||
|
10/17/2008 |
|
Deeds |
$104,000 |
DELUNA EDWARD |
HOLMAN MICHAEL |
|||||
|
6/22/1992 |
|
Historical |
$40,000 |
SECRETARY OF HOUSING |
DELUNA EDWARD |
|||||
|
2/4/1992 |
|
Historical |
$0 |
SMITH KATHERINE ANN |
SECRETARY OF HOUSING |
|||||
|
3/23/1988 |
|
Historical |
$0 |
SMITH DAVID D & KATHERINE ANN |
SMITH KATHERINE ANN |
|||||
|
8/1/1986 |
|
Historical |
$46,000 |
HILL LOU ANN |
SMITH DAVID D & KATHERINE ANN |
|||||
| Last Mailed Notice of Value (N.O.V.) Information/History | ||||||||
|---|---|---|---|---|---|---|---|---|
| Year | Date | Market Value | Taxable Market Value | Gross Assessed | Exemption | Net Assessed | ||
|
2026 |
02/06/2026 |
170,500 |
135,720 |
14,928 |
1,000 |
13,928 |
||
|
2025 |
01/31/2025 |
168,500 |
131,767 |
14,494 |
1,000 |
13,494 |
||
|
2024 |
01/22/2024 |
165,000 |
127,930 |
14,071 |
1,000 |
13,071 |
||
|
2023 |
01/23/2023 |
155,500 |
124,204 |
13,661 |
1,000 |
12,661 |
||
|
2022 |
02/22/2022 |
137,500 |
122,928 |
13,521 |
0 |
13,521 |
||
| Property Building Permit History | |||||||||||
|---|---|---|---|---|---|---|---|---|---|---|---|
| Issued | Permit # | Provided by | Bldg # | Description | Est Construction Cost | Status | |||||
| No Building Permit records returned. | |||||||||||
| Click button on building number to access detailed information: | ||||||
|---|---|---|---|---|---|---|
| Bldg # | Vacant/Improved Land | Bldg Description | Year Built | SqFt | # Stories | |
|
1 |
Improved |
Ranch 1 Story |
1973 |
1,058 |
1 Stories |
|