|
|
|
| Larry Stein Oklahoma County Assessor (405) 713-1200 - Public Access System |
|
|
|
|
|
|
| Real Property Display - Screen Produced 3/20/2026 11:22:13 PM | ||||
|---|---|---|---|---|
| Account: R120681660 | Type: Residential | Location: |
704 MALLARD AVE |
|
| Building Name/Occupant: |
|
EDMOND |
||
| Owner Name 1: | KARBALAI MOHAMMAD H |
Parcel PIN#: |
4705-12-068-1660 |
|
| Owner Name 2: | 1/4 section #: |
4705 |
||
| Owner Name 3: | Parent Acct: |
|
||
| Billing Address: | 704 MALLARD AVE | Tax District: |
|
|
| City, State, Zip | EDMOND, OK 73003-4843 | School System: |
Edmond #12 |
|
|
Country: (If noted) |
Land Size: |
0.1641 Acres |
||
|
Land Value: 28,243 |
|
|||
|
Sect 27-T14N-R3W Qtr NE |
SWAN LAKE TO EDMOND
Block
005
Lot
027
|
|||
| Full Legal Description: SWAN LAKE TO EDMOND 005 027 |
| Photo & Sketch (if available) | Comp Sales (ordered by relevancy) |
|
||||||||||||||||||
|
||||||||||||||||||||
| Value History (*The County Treasurer 405-713-1300 posts & collects actual tax amounts. Contact information HERE) | |||||||||||||
|---|---|---|---|---|---|---|---|---|---|---|---|---|---|
| Year | Market Value | Taxable Mkt Value | Gross Assessed | Exemption | Net Assessed | Millage | Est. Tax | Tax Savings | |||||
|
2025 |
164,000 |
148,047 |
16,284 |
0 |
16,284 |
105.16 |
$1,713 |
$185 |
|||||
|
2024 |
166,000 |
140,998 |
15,509 |
0 |
15,509 |
105.03 |
$1,629 |
$289 |
|||||
|
2023 |
159,000 |
134,284 |
14,770 |
0 |
14,770 |
104.24 |
$1,540 |
$283 |
|||||
|
2022 |
144,000 |
127,890 |
14,067 |
0 |
14,067 |
104.64 |
$1,472 |
$185 |
|||||
|
2021 |
126,000 |
121,800 |
13,398 |
0 |
13,398 |
104.15 |
$1,395 |
$48 |
|||||
| Property Account Status/Adjustments/Exemptions | ||
|---|---|---|
| Account # | Exemption Description | Amount |
|
R120681660 |
5% Capped Account |
0 |
| Property Deed Transaction History (Recorded in the County Clerk's Office) | |||||||
|---|---|---|---|---|---|---|---|
| Date | Type | Book | Page | Price | Grantor | Grantee | |
|
6/1/1984 |
|
Historical |
$0 |
|
KARBALAI MOHAMMAD H |
||
| Last Mailed Notice of Value (N.O.V.) Information/History | ||||||||
|---|---|---|---|---|---|---|---|---|
| Year | Date | Market Value | Taxable Market Value | Gross Assessed | Exemption | Net Assessed | ||
|
2026 |
02/06/2026 |
164,000 |
155,449 |
17,099 |
0 |
17,099 |
||
|
2025 |
01/31/2025 |
164,000 |
148,047 |
16,284 |
0 |
16,284 |
||
|
2024 |
01/22/2024 |
166,000 |
140,998 |
15,509 |
0 |
15,509 |
||
|
2023 |
01/23/2023 |
159,000 |
134,284 |
14,770 |
0 |
14,770 |
||
|
2022 |
02/22/2022 |
144,000 |
127,890 |
14,067 |
0 |
14,067 |
||
| Property Building Permit History | |||||||||||
|---|---|---|---|---|---|---|---|---|---|---|---|
| Issued | Permit # | Provided by | Bldg # | Description | Est Construction Cost | Status | |||||
| No Building Permit records returned. | |||||||||||
| Click button on building number to access detailed information: | ||||||
|---|---|---|---|---|---|---|
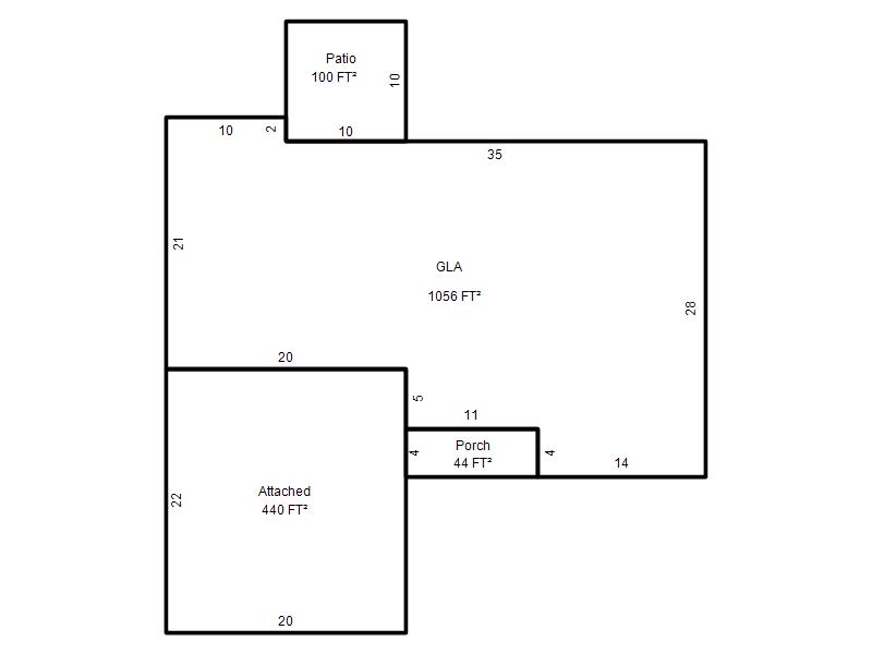
| Bldg # | Vacant/Improved Land | Bldg Description | Year Built | SqFt | # Stories | |
|
1 |
Improved |
Ranch 1 Story |
1982 |
1,056 |
1 Stories |
|